姑苏(拙政江南别墅)首页网站电话丨苏州拙政江南别墅-楼盘详情/户型/价格/地址
扫描到手机,新闻随时看
扫一扫,用手机看文章
更加方便分享给朋友

拙镇江南,项目东侧坐落着著名的拙政别墅;朝南紧邻举世闻名的拙政园,同时苏州博物馆及忠王府也在地块南侧;西临苏州档案馆(远眺北寺塔);北靠北园路与苏州平江古城护城河,土地价值不可复制。地块整体面积约37909平方米,容积率0.6,绿地率30%,规划56席中式合院别墅。

楼栋总数:13栋
总户数:56户
物业公司:中铁建物业
物业费:9.8元/㎡·月



交通配套
周边直线3km范围内有14个地铁站(北寺塔、察院场、苏州火车站、平河路、临顿路、相门、乐桥、山塘街、苏锦、养育巷、平泷路东、东环路、石路、三元坊),轨道交通发达,距离最近的地铁站是北寺塔。
周边直线1km内有27个公交站,距离最近的齐门站仅有305m,周边公共交通极为便捷。

教育配套
直线3km范围内有43个幼儿园; 29个小学,如苏州市敬文实验小学校、东中市实验小学校、平江实验学校小学部、苏州市善耕教育集团勤惜实验小学校、平直实验小学等; 28个中学,如江苏省苏州外国语高级中学校、江苏省苏州艺术高级中学、江苏省苏州第一中学、苏州工业园区星港学校(东港校区)、苏州市第三中学等。

生活配套
楼盘周边医疗资源较为丰富,直线3km范围内有15个一级及以上医院。其中实施患者安全目标合格医院距离楼盘659m,南京医科大学附属苏州医院距离楼盘665m,苏州市立医院(北区)距离楼盘2.2km,苏州市公惠医院距离楼盘2.2km,苏州大学附属第一医院距离楼盘2.4km,等等,为医疗需求提供了可靠保障。
楼盘周边3km范围内有55个商场,包括PARKSONMALL·百盛长发汇、观前街1号、豫园商厦、韩国购物城、苏州人民商场等购物中心,商业配套成熟,完全可以满足日常购物需求。
楼盘周边生态环境优越,周边3km范围内有430个公园,距离最近的仅75m,非常方便日常休闲使用。
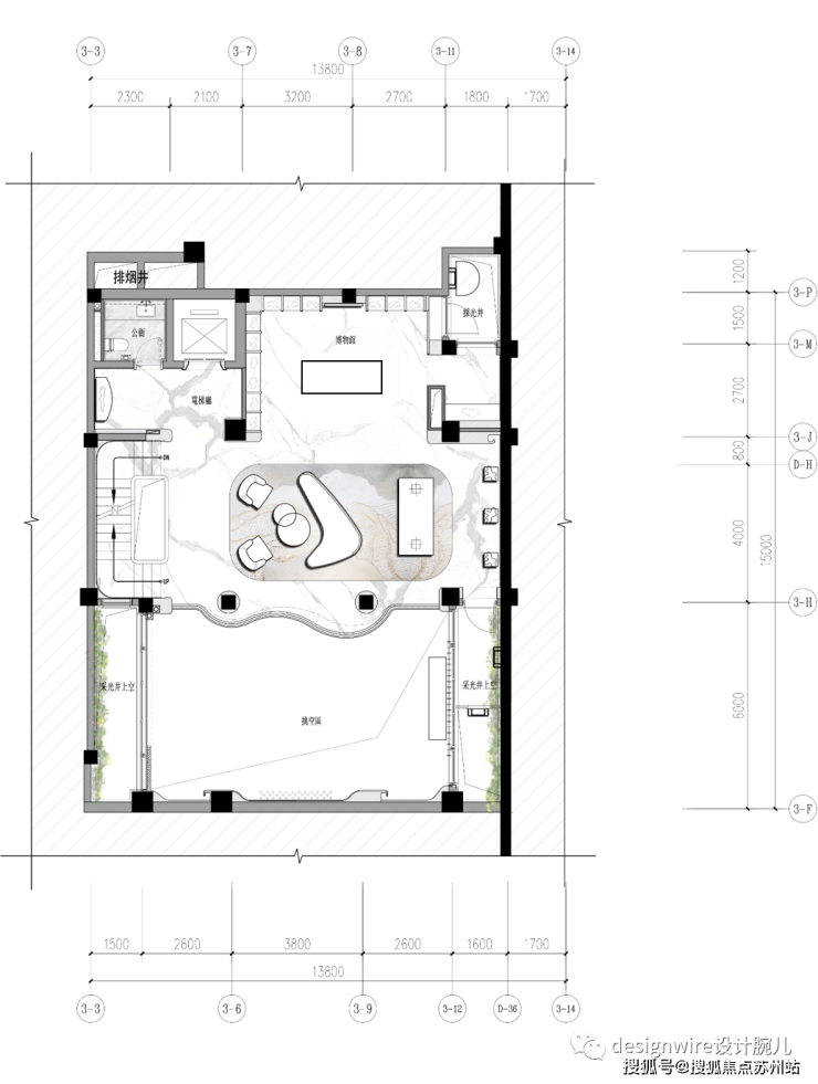
进门(从北面进门)即可见四水归堂的天井,天井+四面玻璃落地窗,解决了传统中式住宅室内较暗的问题。对于这套房子来说,天井是核心设计元素。


虽然中心院子不算大,房子也不是最大,但这套是我觉得设计最均衡的房子,设计者更多的考虑了各家庭成员的平等性和私密性。

把中心庭院做小(仍然是整个建筑关系的核心),做出更多的庭院,并将其分散到各个建筑空间处,使园林无处不在。

无论是厨房、餐厅、客厅也好,还是茶室、老人房、客房也罢,要么出门是花园,要么抬头见景色。



卧室不能太大,太大了睡觉不踏实。我朋友说太大了不聚气,很有道理。




声明:本文由入驻焦点开放平台的作者撰写,除焦点官方账号外,观点仅代表作者本人,不代表焦点立场。


