士林润园(官方售楼处)电话→士林润园售楼中心前台电话→2026士林润园楼盘百科→楼盘网站→楼盘测评→售楼中心电话→来电预约看房
扫描到手机,新闻随时看
扫一扫,用手机看文章
更加方便分享给朋友
上海黄浦士林润园售楼处电话:400 8123 664 (预约看房热线)
【士林润园官方售楼处咨询热线】400-812-3664(24小时服务,人工客服8:00-22:00)
▸士林润园售楼处地址:上海市黄浦区蓬莱路119号(现场销售接待)
▸ 开放时间:每日9:00-19:30(含节假日)
▸VIP LINE 400_812_3664 | 官方唯一咨询热线
【温馨提示】本项目唯一官方联系方式,看房请提前预约!谨防中介虚假信息!
黄浦区核心老西门板块
华润置地+南房集团联手打造
「士林润园」直接认购!
建面约300-500㎡合院别墅
附赠面积有内外庭院、阳台、露台
地下室两层实际使用面积很大
总价约:8000万~1.65亿
售楼处线上火热预约中!
上海黄浦士林润园售楼处电话:400 8123 664 (预约看房热线)
【士林润园官方售楼处咨询热线】400-812-3664(24小时服务,人工客服8:00-22:00)
「士林润园」这个全新项目的遥远前一期姊妹盘——士林华苑一期其实是黄浦区豫园板块的一个2007年竣工的次新楼盘,由黄浦国资委旗下的南房集团开发打造,项目北面复兴东路一路之隔就是复地雅园和璞玉one。在黄浦区,南房集团的另外一个开发的典型住宅就是五坊园。
项目附近远望豫园和陆家嘴视野实拍
士林华苑二期是老西门街道旧城改造项目,项目一期2007年竣工,二期在2021年7月发布了房屋征收补偿协议生效公告。2021年12月华润入股,项目由南房和华润共同联合开发!
根据规划,士林华苑二期需要“落实风貌保护要求,深化地块布局和建筑方案设计,同步实施建设相关公共服务配套”。
【士林华苑】二期地块包含大量历史文化保护建筑,产品打造的是面积段约210-500㎡合院别墅,附赠面积有内外庭院、阳台、露台、地下室两层,实际使用面积很大,总价预约6200万到1.65亿。
首开28套风貌别墅,总价6000万元起,最贵突破亿元,首开即售罄,并且之后连续加推,依然热度不减,成为上海购房市场新热点。
上海黄浦士林润园售楼处电话:400 8123 664 (预约看房热线)
【士林润园官方售楼处咨询热线】400-812-3664(24小时服务,人工客服8:00-22:00)
再让我们看看周边全龄配套:项目位于黄浦区核心,左拥新天地、淮海中路,右抱陆家嘴,北倚人广、外滩,南侧是一路连缀的豪宅区。

顶尖商圈、潮流文艺街区,甚至上海地标们、未来城市封面都将是士林润园的生活场域。加上豫园这百年来传承的文化底蕴,仅看现有的地段价值,士林润园已足够吸引人。
从地段来说,位于内环内黄浦区的豫园板块,妥妥的城中核心,距离地铁站也不算远,在8/10号线老西门站和9号线小南门站之间。
上海黄浦士林润园售楼处电话:400 8123 664 (预约看房热线)
【士林润园官方售楼处咨询热线】400-812-3664(24小时服务,人工客服8:00-22:00)
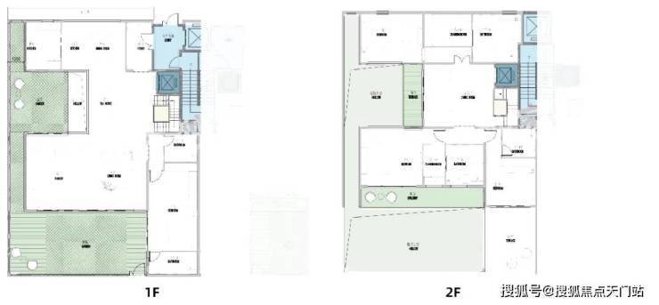
黄浦区核心老西门板块备受瞩目的【士林华苑】二期「士林润园」已售近60套!在售建面约300-500㎡合院别墅,附赠面积有内外庭院、阳台、露台;地下室两层实际使用面积很大;总价约:8000万~1.65亿!士林润园地块包含大量历史文化保护建筑,将打造叠拼+合院的产品。
上海黄浦士林润园售楼处电话:400 8123 664 (预约看房热线)
【士林润园官方售楼处咨询热线】400-812-3664(24小时服务,人工客服8:00-22:00)
叠拼效果图👇
L型合院的效果图👇
上海黄浦士林润园售楼处电话:400 8123 664 (预约看房热线)
【士林润园官方售楼处咨询热线】400-812-3664(24小时服务,人工客服8:00-22:00)
360㎡合院户型示意图👇
360㎡下叠边套示意图👇
236㎡叠拼3-5F大平层示意图👇
样板房展示如下
上海黄浦士林润园售楼处电话:400 8123 664 (预约看房热线)
【士林润园官方售楼处咨询热线】400-812-3664(24小时服务,人工客服8:00-22:00)
『士林·润园』的室内样板房由傅厚民设计,这也是他全球作品中的第一个风貌别墅项目。

室内拥有高挑的天花板和宽阔的客厅,能够让空间显得更加开阔。此外,合理的空间布局和细节设计也使得每个功能区都显独立性又相互连接,保证了空间尺度又兼顾了实用性。
上海黄浦士林润园售楼处电话:400 8123 664 (预约看房热线)
【士林润园官方售楼处咨询热线】400-812-3664(24小时服务,人工客服8:00-22:00)
餐厅的设计巧妙融合了老上海的经典元素,圆形餐桌和橘色皮质餐椅在色彩上既现代又充满活力,顶部的水晶吊灯造型灵感来自上海市花“玉兰花”,既增添了空间的华丽感,又巧妙地融入了上海的地域特色。
复古简约的家具和细节装饰,在空间中自然融入,同时避免过度繁复。这样的设计既保留了历史的厚重感,又契合现代人的生活需求。


从庭园看向别墅,保留的老山墙、砖楣和门头,再加上悬挑阳台和层层露台,这种传统风貌带给人一种重见历史的感慨,又有温馨、宁静的现代舒适感。
上海黄浦士林润园售楼处电话:400 8123 664 (预约看房热线)
【士林润园官方售楼处咨询热线】400-812-3664(24小时服务,人工客服8:00-22:00)
风貌配套会所:士林润园的会所位于项目的核心区域,与整体园区的景观、居住区有良好的联系。
会所也由傅厚民设计,室内通过诸多细节,展示连接过去与现在的对话。例如,特别设计了一条结合石库门拱门元素的通道,让人们在这里就能感受到一段传承的历史记忆。
整个会所的布局开放、流畅,动静分明,让人一进门就能感受到宽敞与舒适。
休息区是一个充满私密感的空间,这里摆放着各种款式的复古式组合沙发,仿佛将人带回到了上海的旧时光。
会所内的泳池上方做流畅且立体的吊顶线条,造型现代且富有层次感。这样的设计不仅提升了空间的视觉效果,更营造出一种轻松、悠闲的度假氛围。
健身房的设计也同样充满了细节。黑框玻璃门的复古韵味,和现代健身空间的功能性做到了完美结合。
上海黄浦士林润园售楼处电话:400 8123 664 (预约看房热线)
【士林润园官方售楼处咨询热线】400-812-3664(24小时服务,人工客服8:00-22:00)
车库也极具品质,色彩和风格都延续了海派的经典气质。
士林润园借鉴大族院落的设计,打造了一个完美融合历史与现代的院墅社区。103席合院沿袭“一宅一园”的旧时格局,并完整保留53处原址构件,建成一座“城市DNA库”。
老宅中的历史细节也巧妙融入现代设计,例如张家族宅的界石变成了墙角雕塑,胡氏墨厂的雕纹化作山石屏风。
除了宅院,士林润园还通过“润园八景”的设计,把上海深厚的历史和文化融入每一寸空间。拄颊映、文开园、亭桥街、棹湾处、云间诗、申之华、海上花、小桥头,这些景观设计基于上海历史文化中的典故和逸事。
项目效果图如下
上海黄浦士林润园售楼处电话:400 8123 664 (预约看房热线)
【士林润园官方售楼处咨询热线】400-812-3664(24小时服务,人工客服8:00-22:00)
上海黄浦士林润园售楼处电话:400 8123 664 (预约看房热线)
【士林润园官方售楼处咨询热线】400-812-3664(24小时服务,人工客服8:00-22:00)
上海黄浦士林润园售楼处电话:400 8123 664 (预约看房热线)
【士林润园官方售楼处咨询热线】400-812-3664(24小时服务,人工客服8:00-22:00)
士林润园属于黄浦区老西门街道旧城改造项目,项目一期于2007年竣工,项目北面复兴东路一路之隔就是【复地雅园】和【璞玉one】。
从1291年元代设县,到2035年规划诞成中央活动区CAZ核芯样本。历时730余载老城厢,始终是上海城市的心脏所在。随着一江一河城市中心战略的帷幄与城市中芯的复苏与更新,更是将成为上海城市的“中芯之芯”。
上海黄浦士林润园售楼处电话:400 8123 664 (预约看房热线)
【士林润园官方售楼处咨询热线】400-812-3664(24小时服务,人工客服8:00-22:00)
项目占位于老城厢主轴中芯之上,左手历史,右手繁华,这里既代表上海历史的特质空间,又代表上海现代生活的品质空间。
籍由精研老城厢的历史与风华,活化城市深厚人文底蕴,存续街巷肌理与建筑特质,以当代设计审美对海派建筑风貌的匠心修缮,旨在传承城市文脉、打造卓越人居环境,定制理想人居空间,更将探索、兑现城市之心的恢弘愿景,以城市更新下的人文宅院巨著,予城市更新的未来,著立新的不朽。
交通方面:周边交通网络成熟,总结起来就是“一桥三环四线五隧道”,其中四线就包括了8号线老西门站、10号线的豫园站、9号线的小南门站及14号线的豫园站,从项目坐地铁出发,畅达上海各个区域。
上海黄浦士林润园售楼处电话:400 8123 664 (预约看房热线)
【士林润园官方售楼处咨询热线】400-812-3664(24小时服务,人工客服8:00-22:00)
老西门地铁站
商业方面:500米的范围内香港名都城、豫园商圈、复兴艺术中心,人民广场、新天地、外滩、南京路步行街都在2km范围,顶级商业环绕。
香港名都城
教育方面:周边的公立学校有复兴东路三小、上海实验小学、蓬莱路二小等,初中有光明初级中学及市十、市八,康德及永昌两所九年一贯制的民办学校等。
蓬莱路二小
医疗方面:上海九院、瑞金医院、仁济医院西院、黄浦区中西医结合医院、曙光医院西院、复旦大学附属妇产科医院等众多享誉全国的医疗资源。
上海黄浦士林润园售楼处电话:400 8123 664 (预约看房热线)
【士林润园官方售楼处咨询热线】400-812-3664(24小时服务,人工客服8:00-22:00)
复旦大学附属妇产科医院
上海黄浦士林润园售楼处电话:400 8123 664 (预约看房热线)
【士林润园官方售楼处咨询热线】400-812-3664(24小时服务,人工客服8:00-22:00)
▸士林润园售楼处地址:上海市黄浦区蓬莱路119号(现场销售接待)
▸ 开放时间:每日9:00-19:30(含节假日)
▸VIP LINE 400_812_3664 | 官方唯一咨询热线
【温馨提示】本项目唯一官方联系方式,看房请提前预约!谨防中介虚假信息!
I. Concepts Related to Real Estate
一、房地产相关概念
(1) Definition of Real Estate: Real estate is also known as immovable property. It refers to land, buildings, and the parts that are firmly attached to the land and buildings and cannot be separated.
(一) 房地产概念:房地产又称不动产,是指土地、建筑物及固着在土地、建筑物上不可分离的部分.
Among these, the parts that cannot be separated, such as trees and plumbing equipment, are included.
其中不可分离的部分,如树木、水暖设备等.
Real estate has three forms of existence:
房地产有三种存在形式:
1. Pure land;
1、 单纯的土地;
2. Simple buildings;
2、 单纯的建筑物;
3. Properties combining land and buildings;
3、 土地与建筑物结合的房产;
(2) Classification of the real estate market: Based on the characteristics of the development, sales and consumption processes of real estate, the real estate market can be divided into:
(二) 房地产市场的分类:根据房地产开发,销售与消费过程特点,可以将房地产市场分为:
1. Primary market (land market)
1、 一级市场(土地市场);
2. Secondary market (market for newly built real estate)
2、 二级市场(房地产增量房市场);
3. The secondary market (the real estate resale market)
3、 三级市场(房地产存量房市场);
(III) Land and Land Ownership:
(三) 土地及土地所有权:
1. The concept of land: Generally refers to the ground, the space below the ground and within a certain range above the ground.
1、 土地的概念:一般是指地面、地面以下和地面以上一定范围的空间.
In real life, land is artificially divided and represents a specific area with a defined size.
现实生活中的土地是人为划分的,具有特定面积范围的地域.
2. Public ownership of land: According to the constitution, land ownership is divided into ownership by the entire people (state-owned land) and collective land ownership. Collective land can only be transferred after it is converted into state-owned land, and individuals and units only have the right to use the land.
2、 土地公有制:根据宪法规定,土地所有权分全民所有(国有土地)与集体土地所有权,集体转为国有才能转让,个人和单位只拥有土地的使用权;
3. During the validity period, the land use rights can be leased, transferred or mortgaged.
3、 土地使用权在期限内可以出租、转让、抵押.
(4) Methods for obtaining land use rights:
(四) 土地使用权获取方式:
1. Transfer of Land Use Rights:
1、 土地使用权出让:
It refers to the act where the state grants the right to use state-owned land to the land user for a certain period of time, and the land user pays the land use right transfer fee to the state.
指国家将国有土地使用权在一定年限内出让给土地使用者,由土地使用者向国家支付土地使用权出让金的行为;
The transfer of land use rights can be carried out through three methods: bidding, auction, and negotiation between the parties.
土地使用权出让采用招标、拍卖、双方协议三种方式;
For the six types of land (commercial, entertainment, tourism, finance, service industry, and commercial housing), the methods of bidding and auction are adopted;
六类用地(商业、娱乐、旅游、金融、服务业、商品房)采用招标、拍卖的方式;
for old city renovation, the method of negotiation between the parties is used.
旧城改造采用双方协议的方式;
The term of land use rights for state-owned land: 40 years for commercial, tourism and entertainment land;
国有土地使用权出让年限:商业、旅游、娱乐用地40年;
50 years for industrial land, science and education land, culture and sports land, health and sports land, comprehensive or other land;
工业用地、科教、文体、卫生、体育用地、综合或其他用地50年;
70 years for housing land;
住房用地70年;
The term of land use rights for real estate has a direct impact on its value.
房地产的使用权年限对价值有直接影响.
2. Allocation of Land Use Rights:
2、 土地使用权划拨:
It refers to the act where the people's government at or above the county level, in accordance with the law, approves the transfer of the land to the land user after the land user has paid the compensation and resettlement fees, or delivers the land use right to the land user free of charge for use.
指县级以上人民政府依法批准,在土地使用者缴纳补偿、安置等费用后将该幅土地交付其使用,或者将土地使用权无偿交付给土地使用者使用的行为;
If the land use right is obtained through allocation, except as otherwise stipulated by laws and administrative regulations, there is no limit on the duration of use.
以划拨方式取得土地使用权的,除法律、行政法规另有规定外,没有使用期限的限制;
The following land use rights for construction sites are, in fact, indispensable and can be legally approved for allocation by the governments at or above the county level: land for national institutions and military purposes;
下列建设用地的土地使用权,确属必须的,可由县级以上人民政府依法批准划拨: 国家机关用地和军事用地;
Urban infrastructure land and public welfare land;
城市基础设施用地和公益事业用地;
Land for key projects supported by the state, such as energy, transportation, and water conservancy;
国家重点扶持的能源、交通、水利等项目用地;
Other land as stipulated by laws and administrative regulations;
法律、行政法规规定的其他用地;
(5) Architectural Concept
(五) 建筑概念
1. Architecture: The general term for buildings and structures;
1、 建筑:建筑物和构筑物的总称;
2. Narrowly-defined buildings: Refers to various types of houses, structures such as trees, elevators, plumbing equipment, etc.
2、 狭义建筑物:指各类房屋,构筑物如树木、电梯、水暖设备等;
3. Standards for qualified buildings: Practical, economical, and aesthetically pleasing;
3、 合格建筑物的标准:适用、经济、美观;
Applicable features: Safe, waterproof, soundproof, heat insulation and cold insulation, light transmission, fully functional, reasonable space layout.
适用:安全、防水、隔声、保温隔热、采光、功能齐全、空间格局合理;
Economy: Reasonable purchase price, low maintenance costs, low energy consumption for heating and air conditioning.
经济:购置价格合理、维修保养、采暖、空调能耗不高;
Aesthetics: Architectural design, color appeal, harmony with the environment;
美观:建筑造型、色彩美感、与环境协调;
(6) Property Concept
(六) 物业概念
1. Property: In a broad sense, property refers to real estate. In a narrow sense, property includes various types of buildings and their attached equipment, facilities, and related sites.
1、 物业:广义的物业就是房地产,狭义的物业,包括各类房屋及其附属的设备、设施和相关场地;
Various types of buildings: They can be building complexes, such as residential communities, or a single residence;
各类房屋:可以是建筑群,如住宅小区,也可以是一幢住宅;
附属 equipment, facilities and related sites: Refers to various indoor and outdoor facilities, municipal public facilities, road traffic, etc. that are compatible with the aforementioned buildings
附属的设备、设施和相关场地:是指与上述建筑物相配套的室内外各类设施、市政公用设施、道路交通等;
II. House Construction Basics
二、房屋建筑常识
1. Floor Area Ratio:
1、 容积率:
The ratio of the total building area to the total land area is a technical and economic indicator that reflects the degree of land utilization, the intensity of use, and the economic efficiency.
总建筑面积与总用地面积的比值, 反映土地利用程度、使用强度及其经济性的技术经济指标;
Floor area ratio = Total building area ÷ Land area;
容积率=建筑总面积÷用地面积;
Generally speaking: Ordinary residences ≥ 1.0;
一般来讲:普通住宅≥1.0;
Non-ordinary residences < 1.0;
非普通住宅<1.0;
2. Building Density:
2、 建筑密度:
The proportion of the total area of all building plots within the project site to the total site area.
项目用地范围内各种建筑用地面积总和占总用地面积的比例.
It can also be calculated as the total area of building footprints ÷ total site area, reflecting the vacant land ratio within the building area and the density of buildings.
也可以建筑物基底总面积÷总用地面积,反映建筑用地范围内的空地率和建筑物的密集程度;
3. Greening Rate:
3、 绿化率:
It refers to the ratio of the total area of green space within the project planning land to the total planned construction land area.
指项目规划用地范围内绿化用地总面积占规划建设用地面积的比例;
4. Green Space Ratio:
4、 绿地率:
It describes the ratio of the total area of all green spaces within the residential area to the area of the residential area itself.
描述的是居住区用地范围内各类绿地的总和与居住区用地的比率;
5. Floor Height:
5、 层高:
The height of a residence is measured in "floors", which refers to the distance between the floor surface or floor slab of the lower level and the upper floor level.
住宅高度以“层”为单位计算,是指下层地板面或楼板面到上层楼层面之间的距离.
6. Net height:
6、 净高:
It refers to the distance between the lower floor surface or the upper floor slab surface and the lower surface of the upper floor slab.
指下层地板面或楼板上表面到上层楼板下表面之间的距离.
Net height = Floor height - Floor thickness;
净高=层高-楼板厚度;
7. Depth:
7、 进深:
Refers to the length of a residence, which is the actual length between the front wall and the back wall of an independent house or a residential building. To ensure that residences have good natural lighting and ventilation conditions, currently in many urban residential buildings in China, the depth of the rooms is generally limited to around 5 meters and cannot be arbitrarily expanded.
指住宅的长度,指一间独立的房屋或一幢居住建筑从前墙皮到后墙皮之间的实际长度,为了保证住宅具有良好的自然采光和通风条件,目前我国大量城镇住宅房间的进深一般都限定在5米左右,不能任意扩大.
If the depth of a residence is too large, the interior space far from the doors and windows will have insufficient natural light.
住宅进深过大,就是住宅成为狭长型,距离门窗较远的室内空间自然光线不足,但进深大的住宅可以有效的节约用地;
However, residences with a large depth can effectively save land.
8. Width:
8、 开间:
Refers to the width of a residence, which is the actual distance between one wall surface and another within a single room of a house. The opening width in residential design has strict regulations;
指住宅的宽度,指一间房屋内一面墙皮之间到另一面墙皮之间的实际距离,住宅的开间在住宅设计上有严格的规定;
a smaller opening width can shorten the inter-floor span of the floor slab, enhancing the overall integrity, stability and seismic resistance of the residential structure.
较小的开间范围,可缩短楼板的层间跨度,增强住宅结构的整体性、稳定性和抗震性;
9. Building Area:
9、 建筑面积:
It refers to the horizontal area enclosed by the outer walls of a building.
指建筑物外墙外围所围成空间的水平面积.
It includes the usable living area of the house, the area occupied by walls and columns, the area of stairways and corridors, and other shared areas.
包含了房屋居住可用的实用面积、墙体柱体占地面积、楼梯走道面积、其它公摊面积等;
10. Common Area:
10、公摊面积:
It refers to the total area of the building's stairs, elevator shafts, exterior walls, public lobbies, corridors, equipment rooms, the first-floor lobby, and some other supporting facilities within the community.
指建筑物的楼梯、电梯井、外墙、公共门厅、走道、设备间、首层大堂及小区内其它一些配套设施的面积总和;
11. Usage Area:
11、使用面积:
It is the net usable area for residents' daily life after deducting the shared area and the area occupied by walls and columns from the total building area. It is commonly known as the floor area.
它是建筑面积扣除公摊面积、及墙体柱体所占用的面积后的直接供住户生活的净使用面积,俗称地砖面积;
12. Floor Area:
12、占地面积:
The area occupied by the building foundation and its functions is also known as the red line area.
建筑物基底及其功能需要占用的面积,也叫红线面积;
13. The net building area = Net usable area + Net wall area + Balcony area (Terrace area is calculated as half the area).
13、套内建筑面积=套内使用面积+套内墙体面积+阳台建筑面积(露台面积按半面积计算);
14. Building area = Net building area + Shared area;
14、建筑面积=套内建筑面积+公摊面积;
15. Sales area = Net building area + Shared public building area;
15、销售面积=套内建筑面积+公摊的公用建筑面积;
Commercial housing is sold by "unit" or "block".
商品房按“套”或“单元”出售;
16. Common area floor area = Total building area - Internal area of each unit - Unallocated area that should not be shared;
16、公用建筑面积=整幢建筑面积-套内建筑面积和-不应分摊的建筑面积;
17. The shared public building area = the net building area of the unit × the shared building area allocation coefficient;
17、公摊的公用建筑面积=套内建筑面积×公用建筑面积分摊系数;
18. Common area allocation coefficient: Common area area ÷ Sum of interior area of each unit;
18、公用建筑面积分摊系数:公用建筑面积÷套内建筑面积之和;
19. The shared common area floor space includes: lobby, public hall, corridors, passageways, communal toilets, elevator lobby, stairwells, elevator shafts, elevator machine rooms, garbage chutes, pipe shafts, fire control rooms, fire escape routes, pump rooms, water tank rooms, refrigeration machine rooms, power distribution rooms, gas pressure regulating rooms, air conditioning rooms, elevator maintenance rooms, duty guard rooms, satellite receiving rooms, etc.
19、分摊的公用建筑面积包括:大堂、公共大厅、走廊、过道、共厕、电梯前厅、楼梯间、电梯井、电梯机房、垃圾道、管道井、消防控制室、消防通道、水泵房、水箱间、冷冻机房、配电室、煤气调压室、空调房、电梯工休息室、值班警卫室、卫星接收机房等;
20. Unrecorded shared area: warehouses, garages, driveways, heating boiler rooms, civil defense basements, property management offices, self-operated and self-used houses of the selling unit, guard rooms serving multiple buildings.
20、不记入的公摊面积:仓库、车库、车道、供暖锅炉房、人防地下室、物管用房、售房单位自营、自用房屋、多幢房屋服务的警卫室;
21. Utilization rate = Gross floor area of the unit ÷ Total floor area of the residence;
21、实用率=套内建筑面积÷住宅建筑面积;
22. Utilization rate = usable area / residential area. Generally, for high-rise buildings, it ranges from 72% to 75%, while for apartment buildings, it is between 78% and 80%;
22、使用率=使用面积÷住宅面积,一般高层塔楼在72%至75%之间,板楼在78%至80%之间;
it is less than the utilization rate.
小于实用率;
23. Basement:
23、地下室:
It means that the height of the room floor below the outdoor ground level exceeds half of the room's net height.
指房间地面低于室外地平面的高度超过该房间净高的1/2;
24. Partial Basement:
24、半地下室:
It means that the height of the room floor below the outdoor ground level exceeds one third of the room's net height, but does not exceed one half.
指房间地面低于室外地平面的高度超过该房间净高的1/3,且不超过1/2;
25. Balcony:
25、阳台:
A space for residents to carry out outdoor activities / dry clothes, etc.
供居住者进行室外活动/晾晒衣物等的空间;
26. Platform:
26、平台:
The upper roof surface or the part extending outdoors from the ground floor of the residence, which is used for outdoor activities by the occupants;
供居住者进行室外活动的上屋面或由住宅底层地面伸出室外的部分;
27. Standard Floor:
27、标准层:
Refers to the residential floors with the same floor plan;
指平面布置相同的住宅楼层;
28. Middle Layer:
28、中间层:
The floor between the ground floor and the top residential entrance floor.
底层和最高住户入口层之间的中间楼层.
III. Real Estate Industry Terminology:
三、房地产行业术语:
(1) Indoor Facilities:
(一)室内设施:
Four types of energy: heating, gas, water heater, air conditioner.
1、 四气:暖气、煤气、热水器、空调;
2. Complete set: Household appliances (TV, refrigerator, washing machine) and furniture (bed, wardrobe, sofa, TV stand, full-size cabinet);
2、 全齐:家电(电视、冰箱、洗衣机)和家具(床、衣柜、沙发、电视柜、整体橱柜);
(2) Classification of Renovation:
(二)装修分类:
1. Mao Pi: Cement floor, cement wall;
1、 毛 坯:水泥地、水泥墙;
2. Interior decoration: Ceramic tiles, white walls;
2、 简 装 修:地砖、白墙;
3. Decoration: Ceramic tiles, wooden floors;
3、 中 装 修:大地砖、木地板;
4. Decoration: Wooden flooring, door and window casings;
4、 精 装 修:木地板、包门、包窗;
5. Luxurious decoration: The interior is modern and the materials are of high quality.
5、 豪华装修:装修前卫、用料讲究;
(3) Floor Plan and Area:
(三)户型及面积:
1. One-bedroom apartment: Public housing area: 30 - 50 square meters;
1、 一居室:公房面积:30-50平米;
Commercial housing area: 40 - 60 square meters;
商品房面积:40-60平米;
2. Two-bedroom apartment: Public housing area: 50 - 70 square meters;
2、 二居室:公房面积:50-70平米;
Commercial housing area: 70 - 100 square meters;
商品房面积:70-100平米;
3. Three-bedroom apartment: Public housing area: 60 - 90 square meters;
3、 三居室:公房面积:60-90平米;
Commercial housing area: 110 - 150 square meters;
商品房面积:110-150平米;
4. Multi-level: A house design where the floor levels jump from one to another, such as 1st floor to 2nd floor, 3rd floor to 4th floor, etc.
4、 越层:房屋使用层跳跃的房型,如一越二,三越四等;
5. Staircase-type layout: A floor-plan design where the floors in the house are unevenly distributed.
5、 错层:房屋内地面错落的房型;
(4) Floor and Orientation:
(四) 楼层及朝向:
1. Floor description: The multi-story building has 6 floors, and the floor where the house is located is the 3rd floor, which is abbreviated as 3/6.
1、 楼层描述,多层楼房为6层,房屋所在层3层,简写3/6;
Pros and Cons:
声明:本文由入驻焦点开放平台的作者撰写,除焦点官方账号外,观点仅代表作者本人,不代表焦点立场。


