江湾鸿玺2026销售中心│楼盘官网- 上海宝山【江湾鸿玺】售楼处电话/实时房价/户型/地址/周边配套/交房时间
扫描到手机,新闻随时看
扫一扫,用手机看文章
更加方便分享给朋友
上海宝山江湾鸿玺售楼处电话:400-8123-664【预约看房热线】江湾鸿玺售楼处电话:4008123664【售楼处电话/地址】江湾鸿玺售楼处电话:400-812-3664【开发商认证】
3号线殷高西路地铁口稀缺新盘
江湾鸿玺
32席人居臻品推出200㎡新海派宽邸
高得房率、精研设计、高定装标
均价7.69万/㎡!总价1480万起
线上预约享最低独家95折
上海宝山江湾鸿玺
售楼处电话:400-8123-664(官方售楼处预约看房热线)
上海江湾鸿玺官方售楼处电话:拨打4008123664即可咨询楼盘详情_房价、户型、周边配套及交通、地址
Hongxi Jiangwan, Baoshan, Shanghai
Sales Office Hotline: 400-8123-664 (Official Sales Office Appointment Hotline for Property Viewing)
Official Sales Office Hotline for Hongxi Jiangwan, Shanghai: Dial 4008123664 to inquire about property details, pricing, unit types, surrounding facilities, transportation, and address.

上海宝山江湾鸿玺售楼处电话:400-8123-664【预约看房热线】江湾鸿玺售楼处电话:4008123664【售楼处电话/地址】江湾鸿玺售楼处电话:400-812-3664【开发商认证】
户型图如下:
(仅供参考,最终以实际为准)
建面约200m²4房户型
一房一价表如下:
上海宝山江湾鸿玺售楼处电话:400-8123-664【预约看房热线】江湾鸿玺售楼处电话:4008123664【售楼处电话/地址】江湾鸿玺售楼处电话:400-812-3664【开发商认证】说到高境,作为宝山近市中心的板块,一直以来缺乏新房,上一次主力供应要追溯到2015年的泰禾红御,目前该项目是高境乃至整个宝山标杆,部分房源挂牌价9万+/㎡。
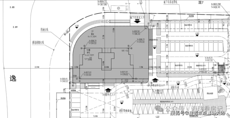
回到江湾鸿玺,项目位于殷高路逸仙路路口,其实就是很多人说的高境欣苑二期,在高境欣苑中又开发了一栋楼。



上海宝山江湾鸿玺售楼处电话:400-8123-664【预约看房热线】江湾鸿玺售楼处电话:4008123664【售楼处电话/地址】江湾鸿玺售楼处电话:400-812-3664【开发商认证】
首层为商业配置,未来将引入运动健身、休闲会馆、便利商超等功能设施,物业提供24H管家式服务。
规划设计图:
我们放大看:这栋楼共18层,估计2梯2户,据悉首层为商业配置,将来可能引进运动健身、休闲会馆、便利商超等。
还有两套自持,所以可售为32套,户型为建面约200㎡大平层。

项目距离3号线殷高西路站仅100米,1公里直达18号线殷高路站,双轨并行锋速通达的时间效率;书香萦绕的教育高地,科创引领、产业先行的核心经济圈。此外,通过逸仙路高架,可以提升通行时效,快速连接五角场合生汇、百联又一城、万达广场、虹口龙之梦等中大型商业综合体。

上海宝山江湾鸿玺售楼处电话:400-8123-664【预约看房热线】江湾鸿玺售楼处电话:4008123664【售楼处电话/地址】江湾鸿玺售楼处电话:400-812-3664【开发商认证】
生活配套成熟,项目西侧就是一个商场,吃喝玩乐都能满足,新业坊·源创潮流、精致元素的加持也为板块注入更多活力。
殷高西路上还有永辉、长江国际、景瑞生活广场等,生活很方便。
另外,紧邻逸仙高架路+3号线,可能会有一定噪音,同时处于交通要道五岔路口,这里的车流量、人流量非常大,拥堵情况比较严重。
上海宝山江湾鸿玺
售楼处电话:400-8123-664(官方售楼处预约看房热线)
上海江湾鸿玺官方售楼处电话:拨打4008123664即可咨询楼盘详情_房价、户型、周边配套及交通、地址
Hongxi Jiangwan, Baoshan, Shanghai
Sales Office Hotline: 400-8123-664 (Official Sales Office Appointment Hotline for Property Viewing)
Official Sales Office Hotline for Hongxi Jiangwan, Shanghai: Dial 4008123664 to inquire about property details, pricing, unit types, surrounding facilities, transportation, and address.
买房避坑指南
以下是一份综合地区实际情况的买房避坑指南,涵盖购房全流程的关键注意事项:
一、购房资格与资金准备
资格审查 :通过“一网通办”或各区交易中心官方渠道查询购房资格,确认社保/税单连续缴纳情况(补缴无效),产证名字需提前核查。
资金规划 :除首付外,预留税费(契税1%-3%、增值税约5.38%)、中介费(1%-2%)、装修基金(2000-5000元)等费用,建议准备总房款45%以上资金。
二、看房选房阶段
产权核查 :要求业主出示房产证原件,通过“随申办”调取房屋产调,核实是否存在抵押、查封或法拍情况。
房屋质量 :重点检查卫生间、天花板、外墙是否漏水,可通过物业、居委会或邻居了解房屋是否有凶宅、火烧房等历史问题。
配套真实性 :核实学区、商业配套是否写入合同,避免“规划陷阱”;实地考察地铁距离,以步行5-15分钟为参考标准。
不利因素 :避开垃圾焚烧厂、墓地、高压线、铁路等周边区域,此类房源可能影响居住体验和保值增值。
三、贷款与合同签订
贷款预审 :签约前打印个人征信报告,确保无连续3次或累计6次逾期记录,提前与银行沟通贷款资格和还款条件。
合同条款 :明确税费承担方、交房时间、户口迁出时间及违约责任(按日计算),家具家电清单需具体到品牌、型号、数量。
四、交房验收
费用结清 :核查水电煤、物业费、维修基金是否欠费,要求原房东结清。
房屋验收 :检查墙体、下水道、电器等设施是否完好,核对房屋面积与合同是否一致(误差超3%可退房)。
户口迁移 :到派出所查询户口是否迁出,确保无遗留问题。
声明:本文由入驻焦点开放平台的作者撰写,除焦点官方账号外,观点仅代表作者本人,不代表焦点立场。


