本次领证面积段约133-1097㎡奕澄湾的魅力在于岁月的传续与城市风骨的建构,沉稳端庄,古朴高贵。以约18万亩的阳澄湖为核心,把雕塑小品与景观搭配巧妙融合在一起,湖岸画卷徐徐展开,鲜氧浓郁,风景如画,在四季中…
苏州奕澄湾
整体备案均价约 55518元/㎡
总价约 533-7190万
售楼处咨询电话:18118152573

共119套,位于奕澄湾商业中心1-3、5-13、15-23、25-31、33、35-39、45-47幢;
本 次 领 证 信 息
奕澄湾联系电话:18118152573

本次领证面积段约 133-1097㎡
整体备案均价约 55518元/㎡
总价约 533-7190万
本次取证的楼幢为1-3、5-13、15-23、25-31、33、35-39、45-47幢。主要产品为独栋、联排、平层!
奕澄湾联系电话:18662309054
查看一房一价表

户 型 及 价 格
搜 狐 焦 点 苏 州 站
本次领证主力户型约165~175 ㎡

本次领证主力户型约607~633 ㎡

本次领证主力户型约267 ㎡

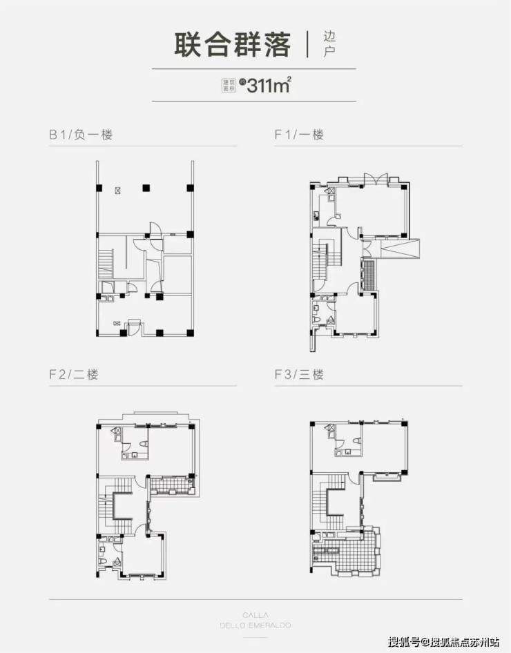
本次领证主力户型约311 ㎡

项 目 详 细 信 息
搜 狐 焦 点 苏 州 站
奕澄湾位于首批国家级旅游度假区——园区阳澄湖半岛,也是国家级经济技术开发区中唯一一个“国家级旅游度假区”,含金量和高规格规划不输金鸡湖。东邻阳澄湖天然湖岸,坐拥180°一线湖景,实现对稀缺“城中湖”资源的极致化占有,私享度非常高。

项目西侧是比斯特购物村,商业街区、公园、湖景,形成独具一格的“步行城市”画面,附近还有华谊兄弟电影世界、半岛田园、星级酒店等配套,超脱于想象的资源汇集,给予极致的生活体验,勾勒出多种国际化的生活方式。整个项目由独立藏品、联合群落和艺术平层三个板块组成,容积率低至0.69,出场自带高贵气质。

比斯特实景图
在阳澄湖半岛未来的规划里,创造出“三核一带”的功能结构,布局旅游度假区、文艺旅游区、康养度假区、以及湖滨带的多样生活场景,将艺术、生态、度假的全新体验一网打尽,在阳澄湖半岛,湖湾生活样本再次被定义。

奕澄湾的魅力在于岁月的传续与城市风骨的建构,沉稳端庄,古朴高贵。强调石材肌理的厚重感与理性而节制的尺度感,整体简洁又不失优雅。一线观湖、诗意园林。



以约18万亩的阳澄湖为核心,把雕塑小品与景观搭配巧妙融合在一起,湖岸画卷徐徐展开,鲜氧浓郁,风景如画,在四季中悠享诗意园林生活。

售楼处咨询电话:18118152573