星合晋墅:首付15%起,低密洋房开启品质生活新篇章
扫描到手机,新闻随时看
扫一扫,用手机看文章
更加方便分享给朋友
近期楼市迎来多项利好政策,公积金首付比例降至15%,贷款次数"动态核减",让更多家庭能够轻松实现置业梦想。这些政策不仅降低了购房门槛,更为改善型需求提供了更多可能性。在这样的大背景下,我们为您推荐一处兼具品质与格调的理想家园——星合晋墅,让您的安家之路更加从容。
基本信息
星合晋墅,城市生活美学运营商,只定制不复制。项目拥有约50%的绿化覆盖率,容积率仅约1.02,打造低密宜居环境。社区内规划有7层低密洋房和3层院墅两种业态,主推建面约230㎡-350㎡的低密洋房,以及约400㎡-700㎡的稀缺院墅,满足不同家庭的居住需求。
18662309054
区域配套
住在星合晋墅,生活配套应有尽有,让您轻松享受一站式便捷生活。
教育无忧:周边有华林幼儿园、双湖湾教育幼儿园、翰林小学、尹山湖中学等知名学府,从幼儿园到中学,孩子的教育之路全程无忧。
健康保障:双湖区域内,星海医院、九龙医院、独墅湖医院等优质医疗资源环绕,为全家健康保驾护航。
交通便捷:项目近邻5号和8号地铁,加上金鸡湖大道、独墅湖大道、金鸡湖隧道三条黄金主轴,无论上班还是出行,都能高效通达全城。
商业繁华:山姆会员店、星湖天地、星月坊商业街等商圈环绕,满足日常购物、餐饮、娱乐等全方位需求。
休闲惬意:1.6公里可达金鸡湖高尔夫会员专属俱乐部,3公里范围内有独墅湖公园等休闲绿境,与公园为邻,收藏一座城的诗意。
品牌价值
星合控股,国际高端底蕴,为生活再设计。自2003年进入苏州,深耕园区20余载,倾力打造高端住宅、奢华酒店、潮流商业标杆作品,与时代共进,全维打造国际化高端生活方式。代表作品包括苏州晋园别墅、晋合水巷邻里、晋府水巷别墅、金湖湾、洲际酒店、凯悦酒店等,每一个作品都是品质生活的见证。

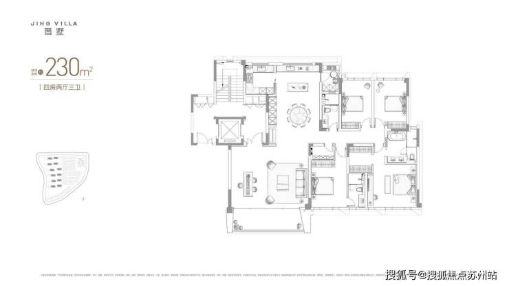
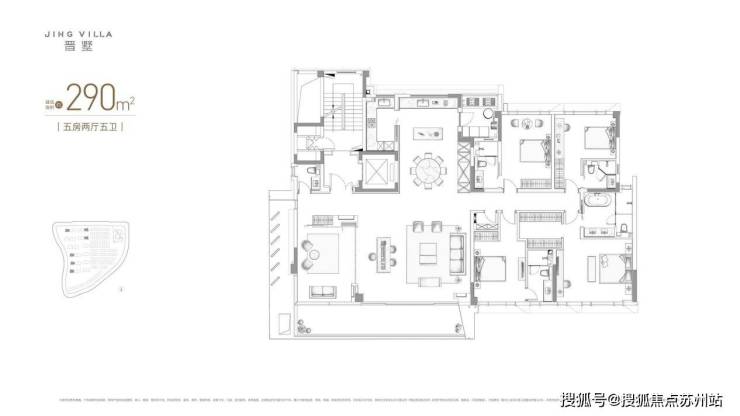
户型鉴赏
星合晋墅从"精神场域构建"到"大宅场景空间",精心打造建面约230㎡-350㎡低密洋房,满足现代家庭对品质生活的追求。户型设计注重空间感与实用性,每一处细节都彰显匠心。
同时,项目还提供约400㎡-700㎡稀缺院墅,让您拥有独门独院的尊贵生活体验。



优势分析
星合晋墅最大的优势在于其低密度的社区规划和高品质的生活配套。约50%的绿化覆盖率让您仿佛置身于城市中的绿洲;约11亩湖叙SPACE国际生活的艺术藏馆,打造泳池、羽毛球场、高端健身、家族私宴、亲子阅读室等私享空间,演绎圈层生活范本。在这里,您不仅能享受到高品质的居住环境,更能体验到国际化的生活方式。
在政策利好的加持下,星合晋墅不仅是一处居所,更是未来生活的艺术殿堂。随着城市发展的不断推进,双湖区域的潜力将进一步释放,星合晋墅凭借其稀缺的地理位置、高品质的社区规划和完善的配套设施,将成为资产保值增值的理想选择。在这里,您不仅能享受到当下的美好生活,更能预见未来的无限可能。
咨询热线:18662309054
声明:本文由入驻焦点开放平台的作者撰写,除焦点官方账号外,观点仅代表作者本人,不代表焦点立场。


