熙和风雅阁-规划-户型 -最新动态!
扫描到手机,新闻随时看
扫一扫,用手机看文章
更加方便分享给朋友
今年,相城元和板块的新房市场依旧激烈,截至目前,还有多个纯新盘待售。
当然,对于买房人来说,内卷严重的元和板块,也意味着有一定的挑选空间了。
最近,又有一个纯新盘加入战局,和恒置地元和58号地块,即熙和风雅阁在大悦城正式公开了售楼处和官方户型图,即熙和风雅阁。
咨询热线:18662309054
项目也是拿地比较久了,隔壁同一天拿地的龙湖青云阙在去年4月就已经首次取证了,慢慢来的熙和风雅阁 ,看来有点神秘!坐稳了3W+的元和板块,熙和风雅阁项目会是多少呢?3.1W+?
等了很久!终于快来了?
熙和风雅阁,即,苏地2022-WG-58号地块,位于相城区经开区春申湖路南、相城大道东,是2022年10月31日,和恒置地以底价137962万元竞得,成交楼面价16000元/平。
项目地块用途为城镇住宅用地、零售商业用地、餐饮用地、旅馆用地,占地面积43113平,容积率2.0。
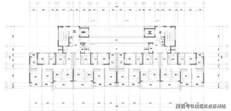
根据规划,项目拟建13栋7-26F住宅,其中,1栋7F住宅、2栋8F、2栋9F、3栋10F、4栋17F、1栋26F。
7F洋房:1#;
8F洋房:2#、6#;
9F洋房:4#、5#;
10F洋房:8#、9#、10#;
17F小高层:3#、7#、11#、13#;
26F高层:12#;
1,项目的产品为洋房、小高层、高层,其中,洋房8栋、小高层4栋、高层1栋,则以洋房的产品为主、小高层为辅,另外配置了1栋高层;
2,项目社区整体呈现为高低配,南低北高;
3,从项目的效果图来看,这是一个现代化风格的社区,较为时尚;
4,项目的住宅为全装修交付,最低装标2000元/平;
也有超级大平层!113-183平
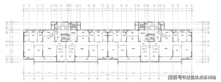
熙和风雅阁目前已经公布了4种户型,分别是建筑面积约113平、143平、160平和183平
建筑面积约113平
咨询热线:18662309054
3房2厅2卫
3房2厅2卫的房屋套型
3开间朝南
客厅+餐厅的大宽厅设计,开间为5.1米
阳台也是双开间,开间5.1米
主卧是套房设计,有独立的卫生间
略显遗憾的是飘窗较少,相对赠送空间会少一点
建筑面积约143平 洋房
4房2厅2卫的房屋套型
3开间朝南
客厅+餐厅的大宽厅设计,开间为6.85米
阳台也是大开间,开间为6.85米
主卧,开间4.2米,套房设计,有独立的卫生间
南向另一次卧开间3.1米
多飘窗设计,有一定的赠送空间
建筑面积约160平
4房2厅3卫
咨询热线:18662309054
4房2厅3卫的房屋套型
4开间朝南
客厅方厅设计,开间为4.9米
阳台双开间,开间为7.9米
主卧,开间3.6米,套房设计,有独立的卫生间
多飘窗设计,有一定的赠送空间
建筑面积约183平 洋房
四开间朝南,南向约16.6米开间;
约9.6米双联大阳台,连接6.1米方厅和次卧;
南向双卧室套房设计,主卧带衣帽间和奢侈主卧;
独立家政空间,生活方便;
多个飘窗设计,都是赠送空间;
周边界面
熙和风雅阁(和恒置地58号地块)位置还是比较优越的,位于相城主城板块,周边三条轨交线环绕,地块南侧靠近在售的华侨城龙湖启元和龙湖相城天街,享受相城区核心区位及配套。
周边界面来看,项目北面是春申湖中路,即中环北线,东面是已经开盘的龙湖青云阙,南侧为中翔广场和大润发,西面是主干道相城大道。
从周边配套来看,也是比较齐全的。
交通上面来看,北面就是中环北线,往东连接澄阳立交,可以联通苏州北站高架路和阳澄湖大道,去往青剑湖也是比较方便。
西面是相城大道,也是城市主干道,直接连接北环、东环,去往姑苏区、园区比较方便。
轨道交通上面,小区东面约400米就是在建的地铁7号线春申湖东路站,步行前往也比较方便 ,往南2站可以换乘在建的8号线,再往西2站可以换乘2号线。
商业配套上面,也是非常丰富的,小区西面就有中翔广场、红星美凯龙、大润发和环球港。
西南面有苏州王府井购物中心、天虹购物中心。此外天虹的对面就是在建设中的相城天街,目前预计2024年三季度开业。
教育设施上面,距离比较近的有陆慕实小,苏大实验第二学校等,当然新房是不划分施教区的。
3.1W+?
元和板块这两年其实竞争也是比较激烈的,板块内在售和待售项目都是比较多的。
目前来看,在售的主要是龙湖青云阙、花语云萃、澄阳四季云庭。
产品上来看,目前在售的几个项目基本都是小高层和高层,龙湖青云阙有洋房产品。
价格上来看,周边项目备案均价基本都是在3.1W左右,熙和风雅阁大概率也会在3.1W左右了,不过周边项目折扣优惠也是有的,就看到时候熙和风雅阁备案价会不会再创新高了!
咨询热线:18662309054
声明:本文由入驻焦点开放平台的作者撰写,除焦点官方账号外,观点仅代表作者本人,不代表焦点立场。


