苏州置业新机遇|山岚璟庭-山岚璟庭(狮山芯纯洋房)-楼盘详情-户型解析-配套解析-价格
扫描到手机,新闻随时看
扫一扫,用手机看文章
更加方便分享给朋友
今日推荐【山岚璟庭】
最近苏州公积金政策迎来重大利好!个人最高可贷120万,家庭最高150万,高学历人才还能再提升额度。更重要的是,“商转公”现在可以“以贷冲贷”,无需自己先筹钱结清贷款,大大降低了换贷门槛和资金压力。这无疑是苏州置业的绝佳窗口期。而想要安家苏州核心,这座藏于狮山、浸润东方美学的纯洋房社区——山岚璟庭,正静候您的品鉴。

山岚璟庭售楼处电话:400-8800-736;置业顾问:18662309054(微信同号)
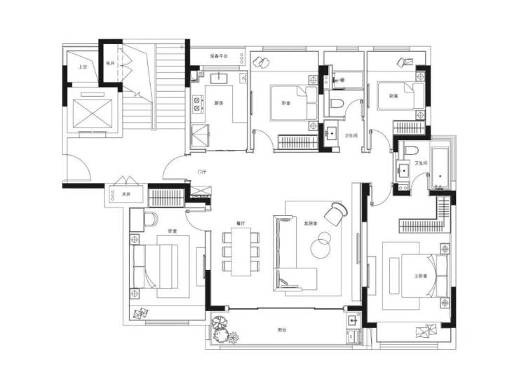
【项目速览】 项目名称:山岚璟庭 项目地址:苏州高新区枫桥街道华山路北、朝红路西 开发品牌:苏高新地产 住宅规划:11栋8-10层纯洋房,共411户 主力户型:约105㎡三房两卫、约148㎡四房两卫 交付标准:全屋精装,配齐三大件 物业公司:新永物业 预计交房:2025年6月 车位配比:1:1.6,充足便利
【区域配套:狮山芯,全能生活圈】 这里坐拥狮山商务创新区的核心发展红利,政府重金打造,未来将是苏州的商务、创新与国际合作中心。大量高端企业和人才汇聚,区域价值持续看涨,是名副其实的狮山核心区。
生活在这里,一切都非常方便: 出行:靠近有轨电车1号线,规划中的轨交9号线,何山路隧道、北环等高架快速路环绕,去哪都快捷。 逛街:绿宝广场、龙湖天街、金鹰、美罗、泉屋等大商场都在不远处,繁华触手可及。 环境:背靠高景山、大阳山国家森林公园,毗邻白马涧、苏州乐园等4A景区,推窗见绿,出门入园。 教育医疗:周边从幼儿园到中学教育资源丰富,高新区人民医院、科技城医院等优质医疗资源保驾护航。
【品牌价值:国企匠造,品质承诺】 山岚璟庭由本土国企苏高新地产开发,实力与信誉双重保障。项目秉承“以府为尊、以园为韵”的理念,打造出新中式建筑的美学气质。低至1.2的容积率,约37%的绿地率,保证了社区的低密舒适,是片区内难得的苏州洋房住区。
社区内部借鉴苏州古典园林意境,规划“一轴八景”,营造出步移景异的归家体验。同时还精心设计了全龄段的活动空间,包括儿童乐园、健身跑道、休闲会客区等,让每位家人都能找到属于自己的乐趣。
【户型鉴赏:宽境洋房,舒居典范】 项目主打两款全能户型,是苏州改善住宅的理想选择: 约105㎡三房两卫:格局方正,功能齐全,是高品质入门之选。 约148㎡四房两卫:空间阔绰,套房式主卧,瞰景阳台,充分满足改善家庭的居住梦想。
【优势分析:精工细节,所见即所得】 除了好地段和好户型,山岚璟庭的精装标准更是诚意满满。全屋标配东芝中央空调、松下新风、威能地暖三大件。厨房用欧派橱柜、老板灶具;卫生间配备汉斯格雅花洒、杜拉维特洁具等一线品牌,真正实现拎包入住,品质生活一步到位。
山岚璟庭售楼处电话:400-8800-736;置业顾问:18662309054(微信同号)
【静待花开:与城市共成长的家】 在当前的政策东风下,选择一座有潜力的房子,就是选择家庭的未来。山岚璟庭,不仅占据了狮山发展的核心区位,享受着当下成熟的全套配套,更以低密纯洋房的形态、东方美学的气质和国企精工的标准,为您预留了一片静谧与诗意的栖居地。这不仅仅是一处房子,更是与苏州这座千年古城共同呼吸、一同向上的理想家园。
山岚璟庭售楼处电话:400-8800-736;置业顾问:18662309054(微信同号)
声明:本文由入驻焦点开放平台的作者撰写,除焦点官方账号外,观点仅代表作者本人,不代表焦点立场。


