上海虹桥绿地铂瑞优惠预约热线:400-8787-554【预约热线】绿地铂瑞服务式公寓位于上海虹桥绿地芯·国展旁,位于虹桥商务核心区,总建筑面积约82万方,主力面积60-120平方米,主力总价230万-400万,车位整体5000个。项目特色有虹桥核心,国展旁,
上海虹桥绿地铂瑞优惠预约热线:400-8787-554【预约热线】绿地铂瑞服务式公寓位于上海虹桥绿地芯·国展旁,位于虹桥商务核心区,总建筑面积约82万方,主力面积60-120平方米,主力总价230万-400万,车位整体5000个。项目特色有虹桥核心,国展旁,
上海国展旁——【上海虹桥绿地铂瑞服务式公寓】【虹桥绿地铂瑞】
上海虹桥绿地铂瑞优惠预约热线:400-8787-554【预约热线】
项目基础信息
所属区位:虹桥商务核心区
地址:徐泾镇诸光路1588弄绿地铂瑞酒店公寓
开发商:绿地控股集团
室内设计公司:集艾室内设计(上海)有限公司
总建筑面积:约82万方
本幢:1.8万方
面积段:约60-270㎡
主力面积:60-120㎡
主力总价:230万-400万
楼层:11F
产权年限:40年
车位:整体5000个,本幢491个
管理:绿地铂瑞酒店

虹桥芯·国展旁·建面约60-147㎡豪华装修现房公寓
项目核心亮点
虹桥核心,国展旁,卓越配套全面兑现
约80万㎡综合体上,超500万㎡商业配套
实景现房,奢华装标,家电齐全拎包入住
星级泛会所配套,专业团队酒店式管家服务
稀缺服务式公寓,无需房票积分,现房即享

80万方综合体上,一站式奢华
依托约80万方虹桥世界中心综合体,总部办公、星级酒店、总裁公馆、商业等配套一应俱全,全面赋能高端生活方式。

TOP级铂瑞品牌,高端酒店公寓
从悉尼绿地铂瑞酒店,到几内亚铂瑞卡姆路酒店,绿地酒店以超凡实力布局全球。
绿地·铂瑞公寓,系出绿地集团“TOP系铂瑞品牌”,同款复制铂瑞酒店专业团队与五星服务,缔造奢华生活方式。

尊贵入户动线
以全球奢华酒店入户标准,定制棕榈水景环岛落客区、迎宾旋转门、24小时双语管家,只为世界精英归家时刻。
豪华精装现房
公区,奢享约8米挑高大堂、意大利Drama White大理石,配置6部一线品牌电梯。室内,以豪宅标配的奢华装标,品牌家电全配,真正实现拎包入住。

五星奢华服务
24小时前台礼宾及安保服务、衣物洗熨护理、商务中心、日用品代购、接送机等定制化的管家级服务。
泛会所配置
一站式奢享健身中心、会议中心、行政酒廊、星级餐厅等泛会所配套,满足商务会务、休闲、健身、娱乐等需求,敬献全球精英人物。

【虹桥进入大都会时代】
核心坐标·世界窗景
国家战略之下,大虹桥历经十余年发展,大会展、大商务、大交通赋能,进博会永久举办地加持,高端人口持续导入,已然跃升世界舞台,成为比肩陆家嘴的世界CBD所在。
绿地·铂瑞公寓,傲居大虹桥C位,超级交通引擎中心,窗揽四叶草地标,近距离高铁站、虹桥机场,天赋高端公寓核心坐标。

【大交通】从长三角到全球,交通全覆盖
虹桥枢纽为世界上比较大的综合交通枢纽。连通长三角26座城市,涵盖56种换乘模式,交通路线联动东亚辐射全球。
上海示范区线、东西快线、2号线西延伸加速建设;17号线西延伸、沪苏湖铁路逐步推进,无缝对接长三角。

【大生活】卓越配套全面兑现
绿地铂瑞公寓,悦享蟠龙新天地、余德耀美术馆等高能级配套,近邻十余所国际学校与国内外高端医疗机构,从全球消费到顶尖艺术,从教育到医疗,奢华生活方式,即刻开启。

优惠预约热线:先拨打400-8787-554


上海国展旁——【上海虹桥绿地铂瑞服务式公寓】【虹桥绿地铂瑞】
优惠预约热线:先拨打400-8787-554【预约热线】
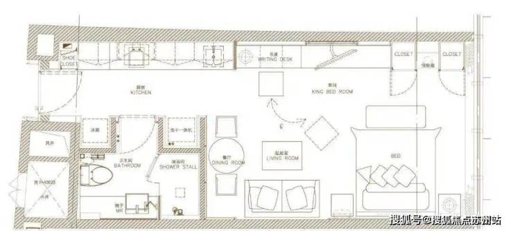
2 主力户型约60-147㎡现房公寓
绿地国际酒店管理集团旗下最大综合体酒店群登陆大虹桥,紧邻国家会展中心,上海虹桥绿地铂瑞酒店、铂瑞公寓及铂骊酒店联袂打造上海新中心。

绿地铂瑞公寓售楼处电话:400-8787-554
上海青浦绿地铂瑞公寓售楼处电话:400-8787-554
绿地铂瑞公寓位于虹桥枢纽的核心地段,毗邻上海国家会展中心,步行距离500米,距离上海虹桥火车站约2公里、距离上海虹桥国际机场约2.5公里、距离地铁站仅800米。
于2017年6月开业,由新加坡等外籍团队专门运营,享受铂瑞酒店五星服务水准,包括面积约40平的单身公寓及面积约170平的3居室等多种房型。

绿地铂瑞公寓售楼处电话:400-8787-554
上海青浦绿地铂瑞公寓售楼处电话:400-8787-554
现在一起来看下项目的主力户型以及样板间实拍👇
建面约60平一居室


约60㎡一居室实拍

约60㎡一居室实拍

绿地铂瑞公寓售楼处电话:400-8787-554
上海青浦绿地铂瑞公寓售楼处电话:400-8787-554
建面约120平套房


约120㎡实拍

约120㎡实拍

约120㎡实拍

绿地铂瑞公寓售楼处电话:400-8787-554
上海青浦绿地铂瑞公寓售楼处电话:400-8787-554
黑白灰三色在客厅空间内找到了各自的位置,形成层次分明的视觉效果。规矩的中式布局,激活了极简氛围的温柔一面,个性和温暖完美平衡。



浅灰色电视背景,加入一些时尚的线条,仿佛成为一座舞台,演绎生活点滴。




黑色躺椅和沙发都是皮革材质,悄悄释放高级感。个性和惬意的生活场景结合起来,家具的几何造型,增加空间的艺术层次,和整体呼应。




其他的摆件增加艺术氛围,在各自的位置上陪伴居者,彼此之间也仿佛在说话,灵动和活力便释放出来。

波浪吊顶在心中掀起一片涟漪,带动着对生活的憧憬和激情。大理石带来奢华气质,动静之间,尽显属于家的浪漫情怀,每一眼都是惊喜。

客餐厅为一体化设计,不仅让温暖延续空间深处,也有丰富的趣味性。功能分区设计合理,强调功能的实用性,中性色彩,烘托出细节的精致。
多元化的布局,带来丰富的场景体验,餐桌和大理石倒台平齐,很有秩序感,开阔的空间便于家人交流。.






卧室空间深邃精密,木质元素带来浓郁的温馨感。酒鬼和置物柜,丰富空间功能。暖黄色灯光让柜子边缘更加清晰,朦胧的浪漫开启夜生活的精彩。





白天的时候,白色纯粹如雪,让人的内心和暖阳深切拥抱,舒适和温暖伴随。




柜体下方的黄金比例,是一处黑色的壁龛,不仅可以摆放一些艺术品,搭配的黑色圆凳增加实用功能。颜色的反差和功能结合起来。


原木材料装饰着这处更衣室空间,自然气息下,惬意选择自己喜爱的衣物。深邃的颜色,让空间的私密性得到保障,实用和美感兼具。




卧室为无主灯设计,开阔的空间内,没有任何的压抑感觉。自然光线下,墙壁上的灯光更显浪漫,宛如落日余晖。素雅的空间利于休息,沉浸于木质地板的温馨中。




极简主义是一种没学艺术,也是一种生活方式。不需要复杂和奢华,简约和宁静成为生活主题。在这里寻找自我,获得安慰便是真谛。
上海虹桥绿地铂瑞优惠预约热线:400-8787-554【预约热线】
售楼处地址400-8787-554,楼盘项目全面介绍,本电话为开发商提供线上预约售楼电话,楼盘项目全面介绍(包含楼盘简介,均价,房价,现房,期房,别墅,叠墅,大平层,价格,楼盘地址,户型图,交通规划,备案价,备案名,项目配套,样板间,开盘时间,认筹时间,楼盘详情,售楼处电话,最新消息,最新详情,周边配套,一房一价,最新进展等详情咨询)楼盘详情丨价格丨更多优惠丨机不可失丨欢迎致电丨诚邀品鉴!售楼处位置丨特价房丨工抵房丨剩余房源丨户型图丨最新消息丨免责声明:将文章内容综合来源于网络、只作分享,版权归原作者所有!!如有侵权,请联系我们,我们第一时间处理如有问题欢迎来电咨询,专业一对一热情服务,让您用专业眼光去买房。如果您想了解更多楼盘详情,欢迎提前预约拨打售楼处电话☎400~8787~554✔✔✔
房产小知识
房产小知识涵盖了房地产的基本概念、术语解释以及购房时需要注意的相关信息。以下是一些关键的房产小知识点:
1. 商品房:是指由房地产开发公司开发、经营、销售的房产。
2. 集资房:是通过筹集资金进行住房建设的一种房屋,职工个人可按房价全额或部分出资。
3. 安居房:属于经济适用房的一类,是由国家安排贷款及地方自筹资金建设的面向中低收入家庭的住房。
4. 毛坯房:是指交房时,地面、墙面水泥裸露,厨卫不含洁具、灶具,只预留管道接口的房屋。
5. 期房:是指尚未完成建设、不能交付使用的房屋。
6. 现房:是指通过竣工验收,可以交付使用的房屋。
7. 建筑容积率:是指项目规划建设用地范围内全部建筑与规划建设用地面积之比。
8. 建筑密度:指在居住区用地内各类建筑的基底总面积与居住区用地的比率(%)。
9. 绿化率:是指项目规划建设用地范围内的绿化面积与规划建设用地面积之比。
10. 公用面积:是指住宅内保障正常生活所设置的公共走廊、楼梯、楼层间厅、水箱间、电梯间等所占面积的总和。
11. 使用面积:是指住宅各层平面中为生活起居所使用的净面积之和。
12. 建筑面积:也称建筑展开面积,是指住宅建筑外墙外围线测定的各层平面面积之和。
13. 砖混住宅:砖混结构住宅中的“砖”,指的是一种统一尺寸的建筑材料,“混”指的是包括楼板、过梁、楼梯、阳台、挑檐,这些配件与砖作的承重墙相结合。
14. 跃层式住宅:这类住宅的特点是占有上下两层楼房,卧室、起居室、客厅、卫生间、厨房及其他辅助用房可以分层布置。
15. 点式住宅:又称塔式住宅,其特点是若干户围绕一个楼梯或电梯枢纽布置,分户灵活。
16. 错层式住宅:是一套房子不处于同一平面,即房内的厅、卧、卫、厨、阳台处于几个高度不同的平面上。
17. 层高:是指住宅高度以“层”为单位计量,每一层的高度国家在设计上有要求,这个高度就叫层高。
18. 净高:进深是指一间独立的房屋或一幢居住建筑从前墙皮到后墙皮之间的实际长度。
以上知识点仅为部分内容,了解更多房产小知识,建议查阅相关专业网站或咨询专业人士。