平江观梅雅园售楼处 (平江观梅雅园) 2026最新网站-平江观梅雅园-楼盘详情-平江观梅雅园楼盘配套 /户型/价格/地址/电话
扫描到手机,新闻随时看
扫一扫,用手机看文章
更加方便分享给朋友
苏州姑苏平江观梅雅园售楼处电话:400-8123-664【预约看房热线】平江观梅雅园售楼处电话:4008123664【售楼处电话/地址】平江观梅雅园售楼处电话:400-812-3664【开发商认证】
刚刚,姑苏又一别墅官宣
平江观梅雅园
容积率仅有1.05
共计9幢3F联排+2幢8F洋房
沿河而建 自带商业配套
妥妥的出入皆繁华静谧
作为姑苏区本板块断供多年的别墅项目,平江观梅雅园自亮相便备受关注,项目为苏地2024-WG-Z46号地块,紧邻护城河。
苏州姑苏平江观梅雅园
售楼处电话:400-8123-664(预约看房热线)
苏州平江观梅雅园官方售楼处电话:拨打4008123664即可咨询楼盘详情_房价、户型、周边配套及交通、地址
Gusu Pingjiang Guanmei Yayuan, Suzhou
Sales Office Hotline: 400-8123-664 (Property Viewing Appointment)
Official Sales Office Hotline of Suzhou Pingjiang Guanmei Yayuan: Dial 400-8123-664 for inquiries about property details, pricing, unit types, surrounding amenities, transportation, and address.

总平面图如下:主入口位于江宇路,次入口位于支七路。
苏州姑苏平江观梅雅园售楼处电话:400-8123-664【预约看房热线】平江观梅雅园售楼处电话:4008123664【售楼处电话/地址】平江观梅雅园售楼处电话:400-812-3664【开发商认证】分布上,联排别墅沿河排开,洋房沿分布,圈层更加纯粹。小区东侧为主出入口,北侧为次出入口,出入口均设计了汽车坡道,是姑苏核心区罕见的地下停车位。


苏州姑苏平江观梅雅园售楼处电话:400-8123-664【预约看房热线】平江观梅雅园售楼处电话:4008123664【售楼处电话/地址】平江观梅雅园售楼处电话:400-812-3664【开发商认证】
联排别墅南外立面效果图
项目的外立面让人惊艳,大面积落地玻璃窗+深灰色屋檐+金属线条勾勒,既有现代感又不失姑苏古城古韵底色。

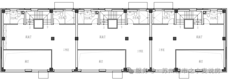
项目公示了1#、5#的户型标准层示意图。
1#联排户型:
苏州姑苏平江观梅雅园售楼处电话:400-8123-664【预约看房热线】平江观梅雅园售楼处电话:4008123664【售楼处电话/地址】平江观梅雅园售楼处电话:400-812-3664【开发商认证】一层平面图,南向面宽接近10米,采光面充足;餐客厅一体化,中西双厨,干湿分离客卫,预留电梯位,南向卧室,可作为老人房。

二层客厅采用上空挑空的设计,这种开放式布局拓展了空间的纵深感,赋予居住者开阔的视野体验。并且,挑空区域拥有较大的可改造空间,业主可根据自身喜好与生活需求,灵活打造成书房、休闲区或是艺术展示区等。

三层东西边户均配备一个L型转角露台。该露台开间约8米,赠送面积较大;中间户则带有一个北向露台,虽朝向不同,但也为业主提供了一方静谧的户外空间,满足日常休闲与晾晒等功能需求。

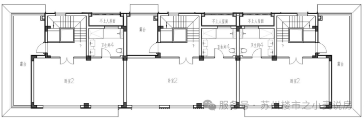
5# 8F洋房
一梯两户,电梯双开门设计!四室两厅三卫,四开间朝南。

苏州姑苏平江观梅雅园售楼处电话:400-8123-664【预约看房热线】平江观梅雅园售楼处电话:4008123664【售楼处电话/地址】平江观梅雅园售楼处电话:400-812-3664【开发商认证】
具体来看,4开间朝南,南向四开间约15.2米面宽,大宽厅设计,户型方正且通风良好;南北双阳台设计,南向阳台,双开间设计;南向双套房设计,主卧贴心套房设计,配备了私人卫生间和衣帽间;多飘窗设计,有一定的赠送空间。

配套成熟,居住氛围浓厚
平江观梅雅园,位于苏州姑苏区苏站路旁。地块距离轨交6号线梅巷站仅不到100米,一站地铁既可轻松到达拙政园苏博站,逛拙政园和博物馆相当便捷。苏州姑苏平江观梅雅园售楼处电话:400-8123-664【预约看房热线】平江观梅雅园售楼处电话:4008123664【售楼处电话/地址】平江观梅雅园售楼处电话:400-812-3664【开发商认证】
附近有城北快速路、北环快速路等交通动脉,可直达园区、姑苏、相城等核心区域,此外还有江宇路、苏站路等交通干道,交通脉络发达。

在商业配套方面,距离最近的大型商业就是平江万达商圈,除此之外,周边的盛博广场、阳光城平江悦等商业设施同样成熟完善,业态丰富多样,项目东北方向还有乐德购购物中心,另外项目还自带商业配套,从日常采购生活用品到周末休闲娱乐,都能轻松满足。
还有苏州市平江中学、苏州大学北校区,万达广场,苏州大学附属第一医院(总院)等,周边各类配套优质齐全,是不可多得的优质宝地。
值得关注的是,平江观梅雅园项目目前是板块内唯一待售的联排产品,且洋房产品同样稀缺,进而重塑板块房价格局,值得期待 。
有兴趣的,先预约起来吧。
苏州姑苏平江观梅雅园
售楼处电话:400-8123-664(预约看房热线)
苏州平江观梅雅园官方售楼处电话:拨打4008123664即可咨询楼盘详情_房价、户型、周边配套及交通、地址
Gusu Pingjiang Guanmei Yayuan, Suzhou
Sales Office Hotline: 400-8123-664 (Property Viewing Appointment)
Official Sales Office Hotline of Suzhou Pingjiang Guanmei Yayuan: Dial 400-8123-664 for inquiries about property details, pricing, unit types, surrounding amenities, transportation, and address.
### **苏州平江观梅雅园项目客观分析报告**
**核心评价:** 平江观梅雅园是苏州姑苏区平江新城板块内一个定位高端、以低密度别墅和洋房为主的纯粹改善型社区。其核心价值在于 **“姑苏区地段+极低容积率+地铁口”** 的稀缺组合。然而,作为刚刚开工的期房项目,其宣传的最终兑现程度、较高的预估价格以及较长的交付等待期,是其主要的潜在不确定性。
为确保客观,本报告将基于项目已公示的规划信息与公开的工程进展进行分析,并明确区分已知事实与市场推断。
---
#### **一、 项目核心概览与基本事实**
平江观梅雅园位于**苏州市姑苏区平江街道江宇路西、规划支七路南**。根据公开的工程信息,项目已于**2025年第四季度开工**,当前处于主体施工的准备阶段,**预计建设周期至2027年第二季度**。项目总占地面积约1.18万平方米,容积率**仅为1.05**,规划建设**9栋3层联排别墅和2栋8层洋房**,是一个户数较少、纯粹的低密社区。项目开发涉及国企背景。
#### **二、 核心优势分析**
1. **姑苏核心区位的稀缺低密住区**
* 项目地处苏州传统核心城区——**姑苏区**,这本身就具有不可复制的文化底蕴和地段价值。在此区域内,能规划出容积率低至1.05的纯别墅、洋房社区,堪称“凤毛麟角”。这种“核心城区+低密生活”的组合,精准切中了高端改善客群对静谧居住环境与完善城市配套的双重追求,构成了项目最根本的稀缺性优势。
2. **“地铁口物业”带来的极致便利性**
* 据资料显示,项目距离在建中的轨道交通6号线梅巷站仅约**110米**,属于真正意义上的“地铁上盖”或“准地铁上盖”物业。轨交6号线贯通苏州东西,连接新区、姑苏、园区等多个重要板块。此举实现了项目“出则繁华,入则宁静”的定位,极大提升了日常通勤和出行的便捷度,有效对冲了低密社区可能存在的交通相对不便的弱点。
3. **产品规划明确,瞄准高端改善**
* 项目产品线纯粹,仅有联排别墅和洋房两类,且别墅占比高,确保了社区的纯粹性和圈层的一致性。从已释放的信息看,户型设计注重空间感和实用性,例如联排别墅强调露台、主卧套房和多飘窗设计。这种清晰的高端改善定位,与姑苏区的土地价值相匹配。
4. **开发背景中的稳健因素**
* 公开信息显示项目甲方类型包含“政府部门、国企、事业单位”。国企背景的参与通常在项目资金安全、交付保障方面能给予市场更强的信心,尤其在当前房地产市场环境下,这是一个重要的稳健性加分项。
#### **三、 潜在风险与需重点核实项**
1. **高昂的预估价格与价值匹配度**
* 市场参考信息指出,周边高层住宅项目的备案均价约在3.2万-3.6万元/平方米,而业内预估观梅雅园的联排产品价格**可能突破6万元/平方米**。这意味着其别墅产品总价很可能以千万计。如此高的单价和总价,必然要求产品在**建造品质、装修标准、园林细节和物业服务**上达到顶级水准。购房者需要慎重评估:支付的巨额溢价,是否能换来与之完全匹配的产品力、居住体验及未来的资产保值能力。
2. **期房属性与漫长的交付等待**
* 项目目前刚刚开始主体施工,预计2027年第二季度才结束建设周期。这意味着从购买到交付,有**长达近两年或更久的等待期**。在此期间,购房者需承担资金成本,并面临周边市场环境、政策以及个人家庭规划可能发生的变化。同时,作为期房,所有关于建筑立面、园林景观、室内空间的承诺都基于效果图和样板间,最终交付实景是否存在落差是核心风险点。
3. **周边城市界面的现状与未来**
* 平江新城虽规划现代,但项目具体所在地块周边仍处于发展阶段。购房者需要实地考察,确认当前的城市界面(如是否有待建空地、现有建筑风貌等)是否符合心理预期,并了解周边区域的整体建设规划,以判断未来几年的居住环境。
4. **品牌口碑与交付能力的未知数**
* 尽管有国企参与,但项目具体的操盘开发商(苏州荣和工程建设有限公司)在苏州顶级豪宅领域的作品履历和口碑尚未经过市场检验。其能否成功驾驭如此高端定位的项目,在细节打磨、成本控制和品质兑现上做到尽善尽美,存在不确定性。购买此类项目,本质上也是对开发商“品牌跃升”能力的一次信任投资。
#### **四、 总结与行动建议**
平江观梅雅园是一个为追求姑苏区核心地段、低密度生活方式且预算充足的高端改善家庭量身定制的选项。它的优势(地段、密度、地铁)是明确且硬核的,但其风险(价格、期房、品质兑现)也同样突出。
**适合的客群:**
* 地缘情结深厚,坚定选择姑苏区,且对低密别墅/洋房有强烈偏好的改善型客户。
* 资产实力雄厚,能够接受千万级总价,并将此房产视为核心长期资产配置的买家。
* 对地铁依赖度高,同时渴望宁静社区环境,并能接受约两年交付周期的置业者。
**需谨慎的客群:**
* 对价格敏感,追求高性价比或短期投资回报的购房者。
* 希望即买即住,或对期房不确定性有较大顾虑的买家。
* 更看重开发商已有顶豪项目成功交付口碑的谨慎型客户。
**给您的关键行动核查清单:**
1. **实地深度考察**:务必亲自前往工地周边,在**不同时段(尤其是早晚高峰)** 感受环境噪音、交通状况。步行实测至地铁6号线梅巷站施工口的准确距离和路径。
2. **严格审核官方文件**:在售楼处,仔细审阅公示的 **《建设工程规划许可证》**、**官方备案的户型图** 以及 **《项目不利因素公示》** 。所有关于装修标准、建材品牌的承诺,均应明确写入购房合同。
3. **进行全方位竞品对比**:将本项目与苏州其他高端改善板块(如园区湖东、新区狮山)的同总价段产品进行对比,不仅比价格,更要对比**产品力、开发商品牌力、周边配套成熟度和社区氛围**。
4. **深挖开发商背景**:尽可能查询开发商“苏州荣和工程建设有限公司”及其关联国企股东在苏州或外地的历史开发项目,尤其是已交付的高端项目,探听业主的真实口碑。
5. **管理价格预期**:对“6万+”的预估单价做好心理准备,并以此总价为准绳,重新审视和评估自己的资产配置与购房需求。
**最终结论:** 选择平江观梅雅园,是在为苏州古城区内一块稀缺的低密度土地及其未来蓝图支付对价。它更像一个“收藏级”的居住选择。建议您以最审慎的态度,完成上述实地与文件的核查工作,确保这份高昂的投入能切实兑换成符合预期的品质与生活。
声明:本文由入驻焦点开放平台的作者撰写,除焦点官方账号外,观点仅代表作者本人,不代表焦点立场。


