2025苏州新房|山岚璟庭(山岚璟庭网站首页)楼盘详情|周边环境|户型解析|商业配套|交通配套|学区|价格
扫描到手机,新闻随时看
扫一扫,用手机看文章
更加方便分享给朋友
最近苏州楼市又有利好!国家三部委联合发文,支持居民换购住房,符合条件的可以享受个人所得税退税优惠。这意味着,改善居住条件不仅是为了更好的生活,还能享受到实实在在的政策红利。现在,正是您升级理想居所的好时机。
而今天要为大家推荐的,正是一个契合改善需求的品质之选——位于大狮山商务区的 山岚璟庭。它不仅是政策东风下的优质资产,更是一处融合东方美学与山居意境的纯粹洋房社区。

山岚璟庭售楼处电话:400-8800-736;置业顾问:18662309054(微信同号)
一座藏于狮山的新中式雅居
项目名称:山岚璟庭 地块信息:苏地2022-WG-10号地块 项目地址:苏州高新区枫桥街道华山路北、朝红路西 开发品牌:苏高新地产 住宅规划:11栋8-10层洋房,共411户 户型面积:约105㎡三房、约148㎡四房 交付标准:全屋精装,带三大件 物业公司:新永物业 预计交房:2025年6月 车位配比:1:1.6 参考均价:约29500元/㎡
区域配套:繁华与自然,在此兼得
这里属于狮山商务创新区的核心范围,是高新区重点发展的“未来极核”。周边聚集了大量高端产业和人才,区域活力十足。
生活起来更是方便:
出行便捷:靠近有轨电车1号线(白马涧生态园站),规划中的轨交9号线,何山路隧道、中环西线等主干道环绕,去哪都畅通。
商圈环抱:绿宝广场、龙湖天街、金鹰、美罗、泉屋等大型商场都在不远处,购物休闲选择丰富。
生态优越:背靠高景山、大阳山国家森林公园,毗邻白马涧龙池、苏州乐园等4A级景区,推窗见绿,出门即景,完美诠释了狮山山居生活的惬意。
教育医疗完善:周边有苏州外国语学校、枫桥中心幼儿园、景山中学等多所学校,以及高新区人民医院、科技城医院等优质医疗资源。
品牌价值:国企匠造,品质安心
山岚璟庭由本土国企苏高新地产开发,实力与信誉有保障。项目秉承“以府为尊、以园为韵”的理念,打造出新中式建筑风格,外观大气典雅,充满东方美学张力。
更重要的是,这是一个容积率仅1.2的低密度社区。楼间距更宽,绿地更多,采光通风更好,居住的私密性和舒适度远超普通高层小区。
社区内部规划了“一轴八景”的东方园林,有三进归家的仪式感,也有供全龄段活动的空间,如儿童乐园、健身跑道、休闲花园等,让一家人都能找到属于自己的乐趣。
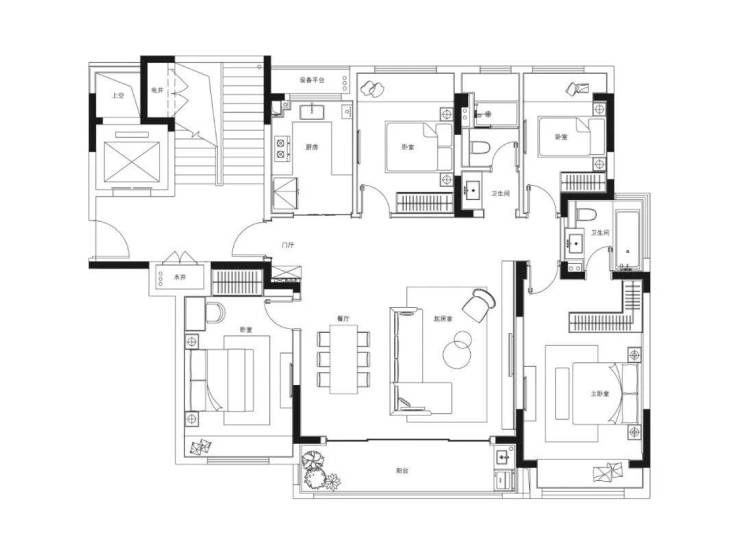
户型鉴赏:宽境舒居,细节满分
项目主打两种全能户型,满足不同家庭的苏州改善置业需求:
约105㎡三房两卫:格局方正,功能齐全,是高品质的入门之选。
约148㎡四房两卫:空间阔绰,主卧套房设计,拥有瞰景阳台,充分满足改善家庭对空间和尺度的要求。
优势分析:所见即所得的品质
山岚璟庭的精装标准堪称“硬核”,全屋配备一线品牌,大大减少了您后期装修的烦恼:
中央空调(东芝)、新风系统(松下)、地暖(威能)全配齐。
厨房用欧派橱柜、老板灶具、摩恩水槽。
卫浴则是汉斯格雅的花洒龙头和杜拉维特的台盆马桶。 这样的配置,让家的质感从交付那一刻就已呈现,是名副其实的精装洋房。
山岚璟庭售楼处电话:400-8800-736;置业顾问:18662309054(微信同号)
预见未来:与城市共成长的诗意栖居
选择 山岚璟庭,不仅仅是选择一套房子。您同时握住了两张“王牌”:一是狮山核心区不断兑现的发展红利与资产潜力;二是在繁华都市中,拥有一处容积率仅1.2的山水洋房,这份难得的静谧与低密,将是未来越来越稀缺的资源。
在换购退税的政策窗口期,为自己和家人置换一个更舒适、更有前景的家,正是一次明智的资产升级与生活焕新。于狮山繁华处,觅得一方诗意山居,让未来生活的每一天,都充满从容与期待。
山岚璟庭售楼处电话:400-8800-736;置业顾问:18662309054(微信同号)
声明:本文由入驻焦点开放平台的作者撰写,除焦点官方账号外,观点仅代表作者本人,不代表焦点立场。


