(上海杨浦保利珺园售楼处)营销中心官网│2026保利珺园售楼处-楼盘价格/户型/地址/前台电话/环境/配套/交房时间/官方电话
扫描到手机,新闻随时看
扫一扫,用手机看文章
更加方便分享给朋友
上海杨浦保利珺园售楼处电话:400-8123-664【预约看房热线】保利珺园售楼处电话:4008123664【售楼处电话/地址】保利珺园售楼处电话:400-812-3664【开发商认证】
最新消息
保利发展杨浦新江湾项目
保利珺园
将打造洋房+叠加+联排低密生态氧吧
将推出建面约103-140㎡洋房
建面约160-185㎡叠拼
以及建面约192-320㎡合院产品
即将入市
上海杨浦保利珺园
售楼处电话:400-8123-664(预约看房热线)
上海保利珺园官方售楼处电话:拨打4008123664即可咨询楼盘详情_房价、户型、周边配套及交通、地址
Shanghai Yangpu Poly Junyuan
Sales Office Hotline: 400-8123-664 (House Viewing Appointment Hotline)
Shanghai Poly Junyuan Official Sales Office Hotline: Dial 4008123664 for inquiries about property details, pricing, unit types, surrounding amenities, transportation, and address.

上海杨浦保利珺园售楼处电话:400-8123-664【预约看房热线】保利珺园售楼处电话:4008123664【售楼处电话/地址】保利珺园售楼处电话:400-812-3664【开发商认证】
2025年9月3日,杨浦新江湾E1-08A地块由保利发展与上海地产通过股权转让联合拿下。出让总价37亿元,成交楼面价5.89万元/㎡。项目容积率仅约1.1,限高约20米。
其土地面积约5.71万㎡,建筑面积约6.28万㎡,住宅套数下限为455套;这也是保利发展首次在新江湾城板块拿地。
上海杨浦保利珺园售楼处电话:400-8123-664【预约看房热线】保利珺园售楼处电话:4008123664【售楼处电话/地址】保利珺园售楼处电话:400-812-3664【开发商认证】根据最新网传消息,项目预计建造约238套100-139㎡6层洋房,48套160㎡叠墅(上下叠),68套170㎡叠墅(上下叠),47套190㎡联排别墅,24套215㎡联排别墅,11套260㎡联排别墅,2套350㎡联排别墅。

上海杨浦保利珺园售楼处电话:400-8123-664【预约看房热线】保利珺园售楼处电话:4008123664【售楼处电话/地址】保利珺园售楼处电话:400-812-3664【开发商认证】项目容积率仅1.1,打造两面环水景观低密社区,建造明确有会所。
地块本身就处于新江湾城湿地和水系包围之处,从小区的楼栋分布图来看,滨河的基本都是大面积的联排别墅户型,景观应该相当不错。
项目南侧不远处是杨浦德法学校,再往南就是目前新江湾城板块在售的新盘建发海宸,未来入市,相信能和建发海宸形成协同作用,共同提升新江湾城板块的居住焕新价值。
让我们来看看公开文件展示的部分过程稿户型图,户型很多,仅展示一部分。
特别声明哈,以下户型图仅为招标过程中的过程稿版本,最终以开发商公示为准!
约100-139㎡的洋房户型图
上海杨浦保利珺园售楼处电话:400-8123-664【预约看房热线】保利珺园售楼处电话:4008123664【售楼处电话/地址】保利珺园售楼处电话:400-812-3664【开发商认证】
约160-170㎡的叠墅户型图上海杨浦保利珺园售楼处电话:400-8123-664【预约看房热线】保利珺园售楼处电话:4008123664【售楼处电话/地址】保利珺园售楼处电话:400-812-3664【开发商认证】
上海杨浦保利珺园售楼处电话:400-8123-664【预约看房热线】保利珺园售楼处电话:4008123664【售楼处电话/地址】保利珺园售楼处电话:400-812-3664【开发商认证】
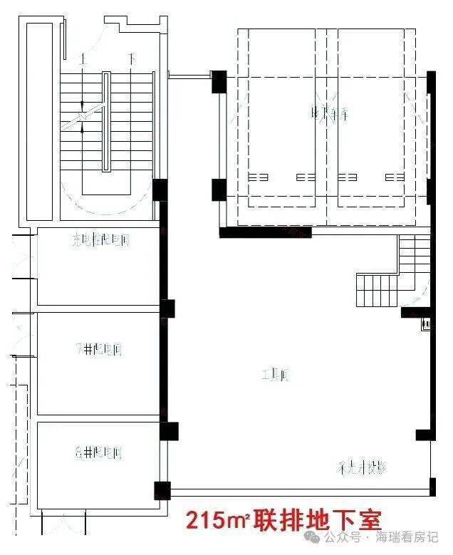
约215㎡的联排户型图
上海杨浦保利珺园售楼处电话:400-8123-664【预约看房热线】保利珺园售楼处电话:4008123664【售楼处电话/地址】保利珺园售楼处电话:400-812-3664【开发商认证】
上海杨浦保利珺园售楼处电话:400-8123-664【预约看房热线】保利珺园售楼处电话:4008123664【售楼处电话/地址】保利珺园售楼处电话:400-812-3664【开发商认证】
保利发展此次立足于新江湾城再启新章,秉持江河共建的匠心,持续赋能杨浦,继续让板块再度沸腾,致献更新的国际人居低密典范。
新江湾坐拥9.45平方公里原生湿地、60%绿化覆盖率,PM2.5浓度常年低于市区20%,堪称上海主城罕见的“绿宝石”。
未来,在上海主城这样极度稀缺的地块,保利发展将集全国之力,聚全城资源,在新江湾再创巅峰之作——主城稀贵1.1低密(近10年上海出让的1.1容积率以内的住宅用地仅占2-3%)、正南北朝向的墅质洋房和滨水别墅。
项目毗邻城市副中心五角场,周边合生汇、江湾里等大型商业环伺,满足高端消费需求;尚浦领世、字节、叠纸、汉高、耐克大中华区总部等7000余家科创企业环伺,形成“产城文化生态”深度融合的第三代国际社区。
上海乃至全国的顶级高校,复旦大学、同济大学、上海财经大学都在新江湾城。这些顶级学府营造了新江湾城浓厚的人文氛围,并为板块产业发展提供了源源不断的人才资源。
除却知名高校资源,新江湾城的基础教育也非常拔尖,同济一附中、兰生复旦中学、复旦二附中、上音实验学校、复旦科技园小学、中福会幼儿园、德法学校等名校为新江湾城居民的子女提供着优质的中小学教育。
上海杨浦保利珺园售楼处电话:400-8123-664【预约看房热线】保利珺园售楼处电话:4008123664【售楼处电话/地址】保利珺园售楼处电话:400-812-3664【开发商认证】
产业方面,新江湾城作为杨浦超大规模产业园区的落户地,坐拥湾谷科技园、复旦软件园、创智天地3大产业园,集中了科技金融机构460家、科技型企业7000余家,其中耐克、IBM、AECOM、西门子、李尔、硅谷银行等跨国公司地区总部、研发中心纷纷落户。
新江湾E1-08A地块,不仅是保利发展参与上海城市更新的缩影,更是中国城市文明进阶的缩影——在这里,低密是敬畏,生态是天赋,而共建共生的理想,终将定义下一个城市国际传奇水岸墅区,成为绿宝石之上的永恒光辉。
上海杨浦保利珺园
售楼处电话:400-8123-664(预约看房热线)
上海保利珺园官方售楼处电话:拨打4008123664即可咨询楼盘详情_房价、户型、周边配套及交通、地址
Shanghai Yangpu Poly Junyuan
Sales Office Hotline: 400-8123-664 (House Viewing Appointment Hotline)
Shanghai Poly Junyuan Official Sales Office Hotline: Dial 4008123664 for inquiries about property details, pricing, unit types, surrounding amenities, transportation, and address.
### **上海杨浦保利·珺园楼盘客观分析报告**
**核心定位**:由保利发展联合上海地产集团在杨浦新江湾城板块开发的低密度改善型住宅,产品以洋房、叠拼及合院为主。项目容积率为1.1,规划约455户,属于高绿化、低密度的社区。
作为待售新盘,所有信息均基于开发商释放资料及板块现状分析,其实质品质需待交付后验证。
---
#### **一、 核心优势与潜在风险分析**
**1. 地段与环境:规划高端,但成熟度与静谧性并存**
* **优势**:项目位于上海中心城区内稀有的生态居住区——新江湾城。板块核心优势是**低密度城市界面与生态资源**,如7.35公顷的湿地公园。同时,板块融合了产学研资源,邻近复旦大学、同济大学,并吸引了字节跳动、哔哩哔哩等企业,具有复合价值。
* **风险与核实点**:新江湾城作为整体开发板块,不同区域成熟度差异大。项目具体位置(江湾城路和国秀路交汇处)周边的即时城市界面、生活烟火气可能不如传统市区。需实地感受其居住氛围是否过于“空旷”。
**2. 产品与社区:定位明确,但细节与交付存在不确定性**
* **优势**:“低容积率”是核心卖点,能保证社区宽阔的楼间距和更高的居住私密性。从宣传看,项目规划了全龄活动空间及健康跑道等设施。保利在部分已交付项目中,其“人车分流”设计、绿化及儿童设施获得过业主肯定。
* **风险与核实点**:项目为全新开发,所有宣传的园林、大堂、室内精装用材等**最终交付标准均存在浮动可能**。务必以购房合同附件中的装修标准明细为准。此外,需向销售明确车位配比、会所等配套的权属及运营方式。
**3. 配套与交通:部分依赖规划,兑现需要时间**
* **优势**:轨道交通是突出亮点,距离地铁10号线新江湾城站约1.1公里,属步行可达范围。商业上可依赖五角场商圈。项目南侧规划有上海交大杨浦实验学校(在建),构成了主要的教育配套预期。
* **风险与核实点**:所有**教育资源的承诺均不可作为入学保证**,须以项目交付后教育局的年度划片为准。大型商业配套有一定距离,依赖社区底商或板块“15分钟生活圈”的完善进度。需要评估当前生活便利度能否满足日常需求。
**4. 开发商:品牌与资金双背书,但历史口碑存在争议**
* **优势**:保利发展作为头部央企,结合上海地产集团的本地资源,项目资金安全与烂尾风险极低,这是重要的购买保障。
* **风险与核实点**:保利品牌**不代表其所有项目的物业服务和交付质量都能达到高端标准**。在保利其他楼盘中,曾出现过业主关于“物业服务差”、“电梯频繁故障”、“新建楼房漏水”等投诉。也有其他项目出现过因施工管理不善影响居民出行的情况。因此,不能因品牌而忽视对具体产品力和后期物业的考察。
#### **二、 关键行动与核实建议**
1. **实地验证**:务必在工作日、周末、早晚高峰等多个时段前往项目地及周边。实测步行至地铁站、在建学校及最近生活超市的时间和感受。观察周边道路车流、在建工地情况,评估噪音和环境影响。
2. **深度比较**:将本项目与新江湾城板块内及杨浦其他区域(如东外滩)的同总价段二手房、新盘进行对比。重点比较得房率、装修标准明细、物业费等硬指标,而非仅听信概念宣传。
3. **严审合同**:所有销售关于装修品牌、材料、学区预期、不利因素(如噪音源、规划遮挡等)的承诺,均应要求写入正式合同或附加协议,特别是“毛坯”或“精装修”的交付标准定义。
4. **调查物业**:明确未来物业服务公司是否为保利物业自有团队,并尽可能通过业主论坛等渠道,了解保利在上海同期开发的、定位相似项目的真实入住口碑,这比品牌本身更具参考价值。
#### **三、 总结**
保利·珺园的核心价值在于**新江湾城板块的稀缺低密生态属性与央企开发的确定性**。它适合追求安静居住环境、看重板块长期发展、且对即时繁华商业依赖度不高的改善家庭。
但其主要风险在于**新房普遍存在的“宣传与交付”差异**,以及**保利在部分项目中呈现的物业服务品质的不稳定性**。同时,作为新房,其价格已包含板块未来预期,需理性评估溢价。
最终决策应基于:**对当前生活便利度的接受程度 + 对开发商交付品质与物业服务细节的信心 + 与周边可比房源在性价比上的严格测算**。
> 注:以上分析基于2025年12月的公开信息。楼盘销售动态更新快,请以实地探访及官方最新公示为准。
声明:本文由入驻焦点开放平台的作者撰写,除焦点官方账号外,观点仅代表作者本人,不代表焦点立场。


