澜庭壹号院-澜庭壹号院,苏州澜庭壹号院房价,楼盘户型,周边配套,交通地图,高清样板间.
扫描到手机,新闻随时看
扫一扫,用手机看文章
更加方便分享给朋友
澜庭壹号院售楼处电话:400-8228-664售楼处电话✔✔
澜庭壹号院官方售楼处地址发布:澜庭壹号院官方售楼处电话400-8228-664售楼处电话
官方户型首爆
205套低密洋房+叠加+合院
现城市展厅已经公开
预计三季度开盘!盯紧!
售楼处电话:400-8228-664售楼处电话
澜庭壹号院预计三季度开盘
刚刚!狮山2025王炸明星低密楼盘,有了最新消息!
苏高新&绿城管理向阳路31号项目,案名正式曝光。
就叫:澜庭壹号院
现位于苏州日航酒店一层的
城市展厅已经公开,正在火热预约中
从案名来看,该项目不仅延续了苏高新“澜”系产品的高端基因,又注入了绿城的高端品质。
前有苏高新的荷澜庭、山水樾澜庭、狮子山澜庭珠玉在前,后有绿城在狮山有2000千万级的逸庐项目屡开屡罄,此次澜庭壹号院两大房企珠联璧合,打造合院+叠加+洋房,纯粹的低密高质,看来又来迎来抢房大战!
先来了解一下项目基本情况:
◆总 户 数:约205户
◆容 积 率:1.2
◆绿 地 率:30%
◆项目规划:17栋3F联排合院,2栋6F叠加,2栋10F洋房
◆建筑面积:约115㎡/135㎡墅境洋房
约215㎡/236㎡/259㎡见山叠墅
约271㎡/325㎡/369㎡山水合院
◆装修状态:洋房精装修、墅类毛坯
◆开发公司:苏州新高项阳建设发展有限公司
澜庭壹号院售楼处电话:400-8228-664售楼处电话

澜庭壹号院,位于新区狮山商务创新区向阳路南、是去年11月份, 苏高新&绿城管理总价10.9亿竞得,成交 楼面价25115元/㎡,溢价率0.46%。

设计美学:现代美学的东方意志
【兴造墅学】园冶为魂苏作为艺营墅境

澜庭壹号院售楼处电话:400-8228-664售楼处电话✔✔
澜庭壹号院官方售楼处地址发布:澜庭壹号院官方售楼处电话400-8228-664售楼处电话
▲项目效果图(过程稿)
【现代美学】几何构图传承与横向舒展

▲叠加效果图(过程稿)
【东方屋檐】再现身份华贵的官帽符号

▲项目效果图(过程稿)
【雅灰流金】演绎奢而有度的色彩美学

澜庭壹号院售楼处电话:400-8228-664售楼处电话✔✔
澜庭壹号院官方售楼处地址发布:澜庭壹号院官方售楼处电话400-8228-664售楼处电话

▲建筑效果图(过程稿)
售楼处电话:400-8228-664售楼处电话
2
澜庭壹号院官方户型曝光!
项目整体17栋3F联排合院,2栋6F叠加,2栋10F洋房,官方户型最近也已经发布。
约115㎡/135㎡墅境洋房
约215㎡/236㎡/259㎡见山叠墅
约271㎡/325㎡/369㎡山水合院
◎联排合院265㎡ · 4房3厅4卫

澜庭壹号院售楼处电话:400-8228-664售楼处电话✔✔
澜庭壹号院官方售楼处地址发布:澜庭壹号院官方售楼处电话400-8228-664售楼处电话
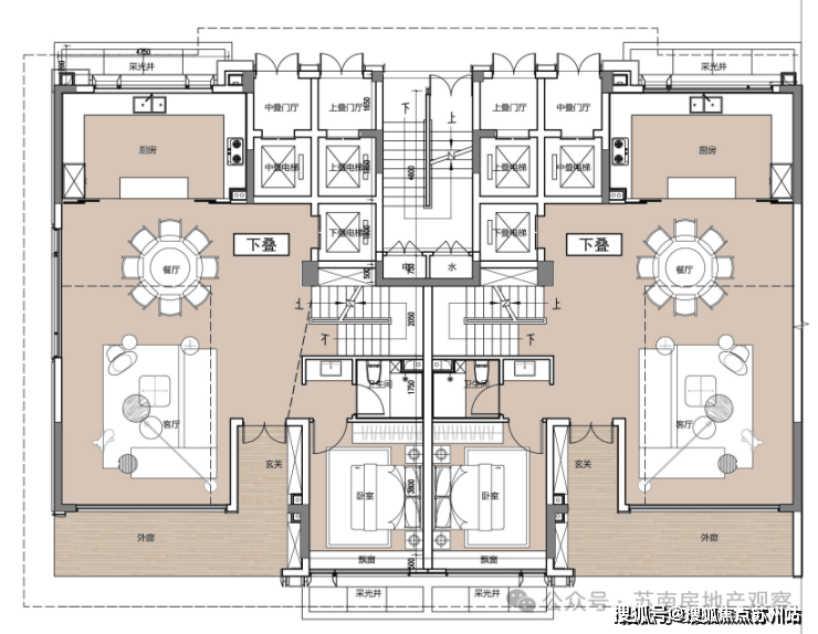
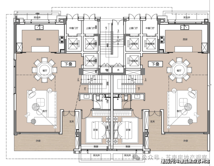
◎叠加下叠275㎡ · 3房3厅3卫
▲下叠1楼


▲下叠2楼
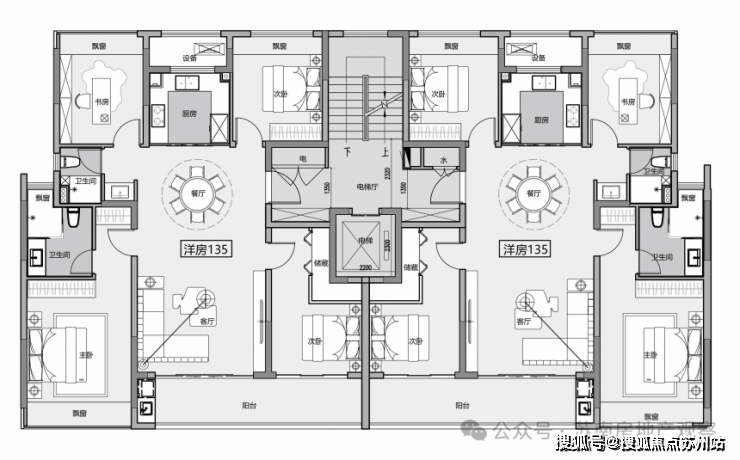
◎洋房 135㎡ · 3+1房2厅2卫

3
狮山商务创新区
配套绝佳,有潜力
澜庭壹号院项目,位于新区狮山商务创新区向阳路南、大运路西,就在建发朗云西侧。


澜庭壹号院售楼处电话:400-8228-664售楼处电话✔✔
澜庭壹号院官方售楼处地址发布:澜庭壹号院官方售楼处电话400-8228-664售楼处电话
这块地周边就是上瑞阁、朗云,居住氛围浓厚。配套方面:
交通便捷,周边轨道 交通1/5号线汾湖路站、石城站双轨环绕,还可以快速上高架,通达全城。
◆ 5大名校云集 书香涵养:
苏州外国语学校、高新区第一中学,外国语幼儿园(在建)、狮山实验小学、高新区第一初级中学等优质学府。(非学区承诺,具体以政府划分以及批文为准)


◆ 六大商业 繁盛万象:
新区美罗、泉屋百货、狮山天街、山姆会员商店、金鹰百货、悠方购物中心、等大型城市综合体环伺,日常购物、社交聚会、娱乐休闲、品牌餐饮等一站式繁华。

澜庭壹号院售楼处电话:400-8228-664售楼处电话✔✔
澜庭壹号院官方售楼处地址发布:澜庭壹号院官方售楼处电话400-8228-664售楼处电话
◆ 智慧城央 科创企业活力区:
板块内累计集聚外资企业超1300家,吸引了近30家总部认定企业入驻,拥有市场主体达8.5万家。
◆ 人才引力 撬动未来潜力:
吸引25000+本科以上人才进驻,同时随着“一心”狮山路发展30余年,从城市地理空间上来看已然饱和。未来将依托“五园”,即从狮山路向长江路形成十字发展轴,上市企业总部园将成为狮山跃进下一站。

◆ 绿色产业 城市总部地标群
上市企业总部园,与本案仅一路之隔,总投资约13.9亿,产、学、研一体化发展定位为上市公司企业总部和数字经济企业总部园,2023年已交付竣工,2024年3月陆续入驻,目前总部园已吸引多家企业。

澜庭壹号院售楼处电话:400-8228-664售楼处电话✔✔
澜庭壹号院官方售楼处地址发布:澜庭壹号院官方售楼处电话400-8228-664售楼处电话
另外,该地块位置所在片区是狮山商务创新区,未来还有很大的发展空间,再加上这个片区新房供应陆续增加,足以说明未来这里或将是狮山的供地大户,大量的改善亟待释放。
目前狮山核心新房价格高位,供应稀缺,而绿城向阳路项目容积率仅1.2,是周边首个低密洋房+联排产品,稀缺性不言而喻!周边在售楼盘如建发朗云、中海建发禧宸,备案均价已达4.3万/㎡,而绿城项目凭借低密规划和绿城品质,有望成为狮山下一个楼市标杆!

澜庭壹号院售楼处电话:400-8228-664售楼处电话✔✔
澜庭壹号院官方售楼处地址发布:澜庭壹号院官方售楼处电话400-8228-664售楼处电话
此外,作为狮山商务创新区重点地块,这里低密住宅不断释放,很大可能将连片打造高端低密住宅区,价值可期! 入市在即
澜庭壹号院售楼处电话:400-8228-664售楼处电话【开发商售楼中心热线】澜庭壹号院营销中心热线400-8228-664售楼处电话售楼处地址400-8228-664售楼处电话,楼盘项目全面介绍,本电话为开发商提供线上预约售楼电话,楼盘项目全面介绍(包含楼盘简介,均价,房价,现房,期房,别墅,叠墅,大平层,价格,楼盘地址,户型图,交通规划,备案价,备案名,项目配套,样板间,开盘时间,认筹时间,楼盘详情,售楼处电话,最新消息,最新详情,周边配套,一房一价,最新进展等详情咨询)楼盘详情丨价格丨更多优惠丨机不可失丨欢迎致电丨诚邀品鉴!售楼处位置丨特价房丨工抵房丨剩余房源丨户型图丨最新消息丨免责声明:将文章内容综合来源于网络、只作分享,版权归原作者所有!!如有侵权,请联系我们,我们第一时间处理如有问题欢迎来电咨询,专业一对一热情服务,让您用专业眼光去买房。如果您想了解更多楼盘详情,欢迎提前预约拨打澜庭壹号院售楼处电话☎400-8228-664售楼处电话
声明:本文由入驻焦点开放平台的作者撰写,除焦点官方账号外,观点仅代表作者本人,不代表焦点立场。


