苏州新房-太湖度假区-太湖朗郡-太湖朗郡楼盘详情-科技住宅怎么样?户型解析-周边配套-换房退税政策解读
扫描到手机,新闻随时看
扫一扫,用手机看文章
更加方便分享给朋友
换房退税的好消息来了!国家刚刚发布新政,从明年开始,卖旧房买新房,可以享受个人所得税退税优惠。这意味着,改善居住条件的成本更低了,正是您升级理想家园的好时机。而说到理想家园,位于苏州太湖度假区的【太湖朗郡】,正是一个集政策利好与卓越品质于一身的绝佳选择,是您实现改善居住梦想的优选。
项目核心档案
项目地址:孙武路与后塘桥路交汇处 占地面积:7.9万m² 建筑面积:22.4万m² 容积率:2.0 绿化率:37% 规划户数:1371户 车位配比:1:1.43 社区规划:17层小高层 + 10层洋房 交付标准:精装 + 朗诗科技住宅系统 产品面积:小高层95㎡、117㎡、139㎡;洋房117㎡、148㎡
18662309054
区域配套:生活所需,举步即达
住在这里,孩子上学不用愁。一河之隔就是已经投入使用的度假区第三小学和度假区实验中学,全龄段教育资源环绕,为家庭解决了核心需求。
逛街购物也方便。板块内最大的商业综合体——太湖中心Mall已经开业,12万方的体量,吃喝玩乐购一站搞定。想去更繁华的地方?开车一会儿就能共享木渎大运城、山姆会员店等大型商圈,满足您对苏州太湖度假区生活的一切想象。
健康有保障。距离项目约1公里就是度假区人民医院,每周还有苏州大医院的专家坐诊,在家门口就能享受优质医疗配套。
出行很便捷。从【太湖朗郡】出发,5分钟上子胥快速路,4公里接驳绕城高速,已开通的地铁5号线让通往全城更轻松,交通便利的优势显而易见。
品牌价值:朗诗科技,重新定义舒适
【太湖朗郡】最大的亮点,就是全系搭载了朗诗标志性的“三恒”科技住宅系统。它不像普通空调那样吹冷风,而是通过地源热泵、顶棚辐射等技术,让家里一年四季都保持在体感最舒适的18-26℃,没有噪音,没有风感,实现了真正的恒温恒湿恒氧。
同时,全置换新风系统24小时持续工作,从地面送风,顶部回风,不断置换污浊空气,保证室内始终充满新鲜氧气,湿度也恰到好处,真正做到健康舒适的居住体验。
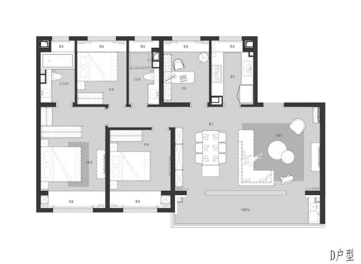
户型鉴赏:多样空间,承载美好
项目精心打造了从刚需到改善的全系户型,满足不同家庭对苏州新房的需求。
95㎡ A1/A2/A3户型:经典三房两厅一卫,布局紧凑,功能齐全,是高性价比的选择。
117㎡ B1/B2户型:灵动3+1房,两厅两卫,空间更阔绰,适合成长型家庭。
洋房117㎡ C户型:纯粹四房两厅两卫,居住升级之选。
139㎡ D户型:舒适四房两厅两卫,尺度从容。
洋房148㎡ E户型:奢阔四房两厅三卫,定义品质生活。
优势分析:为何选择太湖朗郡?
总结起来,选择【太湖朗郡】就是选择了:
政策风口:赶上换房退税利好,降低购房成本。
全能配套:教育、商业、医疗、交通环伺,生活便利度高。
科技住宅:朗诗三恒系统带来颠覆性的健康、舒适居住体验。
产品多元:从95㎡到148㎡,从小高层到洋房,总有一款适合您。
低密社区:2.0低容积率,约37%高绿化率,居住环境静谧舒适。
置业热线:400-8800-736;专属顾问:18662309054(微信同号)
在此,预见未来的舒居日常
当政策东风遇上硬核产品,居住的升级便不再是梦想。在苏州太湖度假区这片潜力之地,【太湖朗郡】以其不可复制的科技住宅内核与全维配套,为您铺就的不仅是一处房子,更是一种恒久如春、健康从容的生活范本。未来,这里不仅是您安顿身心的家,更是资产与生活品质双重升值的明智之选。
美好生活,从一次咨询开始。欢迎随时致电,了解详情。 太湖朗郡售楼处热线:400-8800-736 您的专属置业顾问:18662309054(微信同号)
声明:本文由入驻焦点开放平台的作者撰写,除焦点官方账号外,观点仅代表作者本人,不代表焦点立场。


