上海临港特发香阅里售楼处网站-特发香阅里售楼处电话-特发香阅里楼盘详情-交房时间-地址-最新房价户型图-小区环境-楼盘详情-交房时间-周边配套-售楼处电话
扫描到手机,新闻随时看
扫一扫,用手机看文章
更加方便分享给朋友
上海临港特发香阅里售楼处电话:400-8123-664【预约看房热线】特发香阅里售楼处电话:4008123664【售楼处电话/地址】特发香阅里售楼处电话:400-812-3664【开发商认证】
【项目简介】
项目位置:上海·临港105·环湖北三路与川朴路交汇处
总建筑面积:约13.9万㎡
产品业态:规划12栋14-16F小高层,临街商业
主力户型:建面约109-170㎡三房/四房
临港值此双园(规划中)首排纯粹大宅,定鼎人居标杆
上海临港特发香阅里
售楼处电话:400-8123-664(预约看房热线)
上海特发香阅里官方售楼处电话:拨打4008123664即可咨询楼盘详情_房价、户型、周边配套及交通、地址
Shanghai Lingang Tefa Xiangyueli
Sales Office Phone: 400-8123-664 (Hotline for Property Viewing Appointments)
Official Sales Office Phone for Shanghai Tefa Xiangyueli: Dial 4008123664 for inquiries on property details, pricing, unit types, surrounding amenities, transportation, and address.

【核芯站位】
105中轴·据守繁华心脏
上海临港特发香阅里售楼处电话:400-8123-664【预约看房热线】特发香阅里售楼处电话:4008123664【售楼处电话/地址】特发香阅里售楼处电话:400-812-3664【开发商认证】世界临港:定位为具有国际竞争力的特殊经济功能区;5年以19.8%增速擎动新质生产力,四海智汇,跨境创新潮涌东海之滨.
到2035年将逐步建成具有较强国际市场影响力和竞争力的特殊经济功能区核心承载区,“开放创新、智慧生态、产城融合、宜居宜业”的链接全球、辐射长三角的独立综合性节点滨海城市,令人向往的“东海明珠”.
(信息来源:新片区总规划、南汇新城“十四五”规划建设行动方案)
中轴CAZ:特发·香阅里立踞临港现代服务业开放区(105片区),自贸试验区+中央活动区的双重定位激活临港中轴动脉,未来开放区枢纽将打造成集新型国际贸易、交通枢纽、金融财富、时尚生活趋势、免税消费中心、国际交往目的地于一体的繁华会客厅,链接浦东机场T3航站楼(建设中)、上海东站(建设中)、虹桥机场的关键节点,以城市之心的跳动,对话世界繁华.
(信息来源:新片区总规划、临港开放区站城一体项目规划方案)
特发香阅里售楼处电话:400-8123-664【预约看房热线】特发香阅里官方售楼处电话:4008123664【售楼处电话/地址】特发香阅里售楼处电话:400-8123-664【开发商认证】
上海临港特发香阅里售楼处电话:400-8123-664【预约看房热线】特发香阅里售楼处电话:4008123664【售楼处电话/地址】特发香阅里售楼处电话:400-812-3664【开发商认证】交通聚合:双轨交汇,与南汇线(建设中)、南枫线(建设中)所在的滴水湖北站直线相距约650米,4站直达东方枢纽(建设中),执掌城市动脉;与16号线滴水湖站直线相距约2公里,另有多种出行方式,快速通达全城,27号线(规划中)、临港市区线(规划中)等众多路网编织立体交通网,启幕全球视野.
(信息来源:南汇新城规划图,数据来源:百度地图)
全维鼎配:拥揽一众地标资源
【书香为邻】冰厂田滴水湖幼儿园(星瀚部)、上海财经大学附属浦东临港小学、上海临港耀中外籍人员子女学校(建设中)、十二年一贯制滴水湖学校在侧,临港新办多所优质学校,书香浸润,成长无忧.
(信息来源:“南汇新城镇发布”公众号)
【商业林立】临港105片区开放区枢纽段将打造成兼具自贸区与城市核心功能的CAZ,同步世界潮流,坐享城市门户.临港新片区商业多点布局,星空之境综合体-星海汇(建设中)、港城新天地、蓝鲸世界(建设中)、临港印象城MEGA(建设中)、城市书香商业街等众多繁华商业驾车可达.
(信息来源:南汇新城规划图、“上规SPC"公众号,数据来源:百度地图)
【医疗护航】上海市第六人民医院东院(三甲医院)已投入使用,同时六院二期建设中,届时将满足更多高端人才就医需求,打造高水平多层次医疗和健康体检运营模式.另有多所规划中的医院,如曙光医院滴水湖中医国际诊疗中心(规划中)星罗棋布,为健康保驾.
(信息来源:南汇新城规划图、“浦东发布”公众号)
【文旅地标】上海天文馆、耀雪冰雪世界、上海海昌海洋公园、中国航海博物馆等一众娱乐目的地环伺周边,生活精彩纷呈.
特发香阅里售楼处电话:400-8123-664【预约看房热线】特发香阅里官方售楼处电话:4008123664【售楼处电话/地址】特发香阅里售楼处电话:400-8123-664【开发商认证】

🏞【极幕视野】
双园首排|IMAX视野
西南向约54万㎡星空之境海绵公园与二环公园带(规划中),交织都荟诗意,约550米无遮拦的公园(规划中)视野南抵荣耀之环(建设中),东揽城市公园(规划中).置身于此,仿佛被无垠的自然温柔环抱.
(信息来源:上海市规划和自然资源局,数据来源:百度地图)
公园首排、公园视角
【封面藏品】
国企特发|精工品质
特发地产承袭特发集团(深圳国企)先试先行,敢为人先的基因,以深耕深圳、多点布局的城市更新经验,结合鲁班奖工艺(特发·和平里)基底,匠心浇筑绿建三星超低能耗建筑为健康护航,致敬巴黎拉德芳斯拱门艺术,成就临港封面改善作品.
上海临港特发香阅里售楼处电话:400-8123-664【预约看房热线】特发香阅里售楼处电话:4008123664【售楼处电话/地址】特发香阅里售楼处电话:400-812-3664【开发商认证】
双轴六园|森境诗章
匠造「一环两轴六园」的森居谧境,约650米氧气跑道串联水景庭院与花园.多个主题空间涵盖亲子、萌宠、社交,让欢乐与自然共生长,满足全天候欢愉.

主题架空层|延伸全龄志趣
架空层打造全龄聚场,涵盖社区会客厅、健身、阅读、儿童乐园四大主题,构建惬意美好的邻里社交空间,无惧晴雨,拓展生活乐趣,感受真“质”的居住改善.

星幕车库|双大堂尊崇礼遇
遵循豪宅的归家礼序,环岛大门落客,穿越顶部嵌入星空穹顶的地下车库汽车坡道,用一场银河光影秀恭迎归家.
地上/地下双奢装大堂,岩板点缀,温度适宜,归家一刻便卸下疲惫,品味与舒适双重奢享.
特发香阅里售楼处电话:400-8123-664【预约看房热线】特发香阅里官方售楼处电话:4008123664【售楼处电话/地址】特发香阅里售楼处电话:400-8123-664【开发商认证】

精工细节|奢居范本
中央空调、新风系统、地暖三大件配备齐全,24小时焕新室内空气,温度宜人,隔绝尘霾,为家人的健康悉心守候.
电视背景墙岩板交付,增配品牌洗碗机、主卫智能马桶等,众多高标准精装细节,重塑板块品质标杆,让好房子回归居住本真.

📍【纯粹大宅】
阔境奢宅丨大宅逻辑的时代破局
以纯粹改善之名,礼献高阶生活范本.
匠造建面约109-170㎡三至四房,其中建面约118㎡及以上户型均为两梯两户,以私密格局重构空间秩序.
南向多开间设计让阳光与风景从容入画,建面约150㎡及以上户型奢配三卫、双套房设计承载多元生活场景.以全系百平之上的纯粹改善大宅对话层峯圈层,于城市中轴,珍藏匹配身份的人生主场.
上海临港特发香阅里售楼处电话:400-8123-664【预约看房热线】特发香阅里售楼处电话:4008123664【售楼处电话/地址】特发香阅里售楼处电话:400-812-3664【开发商认证】

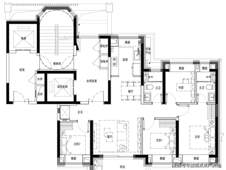
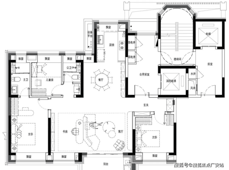
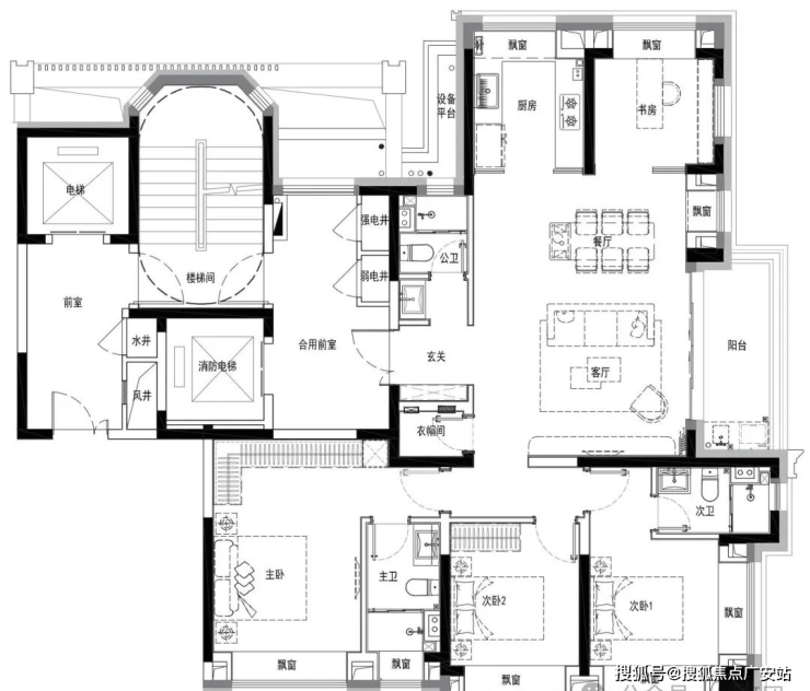
【阅·雅建面约109㎡三房两厅两卫】
南向三开间|LDK一体化布局|「去走廊化」布局,空间利用率高|U型厨房

【阅·逸建面约118㎡四房两厅两卫】
两梯两户|南向四开间|南北多飘窗,空间灵动|LDK一体化设计|次卧可联动客厅

【阅·澜建面约142㎡三房两厅两卫】
两梯两户|奢享约13.7米面宽|约7米大气大横厅,LDK一体化|主卧套房
特发香阅里售楼处电话:400-8123-664【预约看房热线】特发香阅里官方售楼处电话:4008123664【售楼处电话/地址】特发香阅里售楼处电话:400-8123-664【开发商认证】

【阅·峯建面约150㎡四房两厅三卫】
两梯两户|东面直面城市绿意|三卧室朝南|双套房设计|入户独立衣帽间

【阅·慕建面约170㎡四房两厅三卫】
公园首排环幕视野|两梯两户|约15.6米面宽、南向四开间|入户储物空间|南向双套房设计

上海临港特发香阅里售楼处电话:400-8123-664【预约看房热线】特发香阅里售楼处电话:4008123664【售楼处电话/地址】特发香阅里售楼处电话:400-812-3664【开发商认证】星空穹顶:归家仪式,致敬塔尖生活
踏入特发·香阅里的瞬间,地库坡道星光穹顶如银河倾泻,万千光点交织成流动的星幕.归家之路,化作一场穿越星际的仪式——光晕流转于金属格栅,步履间仿若踏月而行,以无声的璀璨,礼赞每一位时代人物的归来.
奢装迭代:精工3.0,定义高阶舒适
•恒温空气管家:中央空调+地暖+24小时置换新风系统,三重复合科技筑就“会呼吸的房子”.冬日赤足踏暖,夏日清风徐来,湿度恒守40%-60%黄金区间,梅雨季不潮,寒冬不燥,四季如春.
•细节镌刻奢华:电视背景墙以岩板铺陈,天然纹理如泼墨山水;厨房嵌入品牌洗碗机,油污喧嚣一键涤净;主卧智能马桶无声启合,生活自此从容不迫.
架空层泛会所:无界空间,激活全龄诗意
特发香阅里售楼处电话:400-8123-664【预约看房热线】特发香阅里官方售楼处电话:4008123664【售楼处电话/地址】特发香阅里售楼处电话:400-8123-664【开发商认证】
•四重意境空间:书吧墨香萦绕,成为思想沙龙据点;健身区器械临窗对景,汗水挥洒间满目葱茏;儿童乐园滑梯蜿蜒如藤蔓生长;社区会客厅茶盏轻碰,邻里温情于此生根.
•光影与自然的协奏:落地玻璃消弭室内外界限,架空层成为园林的延伸.晨起瑜伽伴鸟鸣,午后品茗观树影,生活与艺术在此共生.
六园艺境:双园环抱,收藏自然艺术
约54万㎡星空之境海绵公园在窗前舒展,规划中的百万方二环公园带如绿绸环绕.项目以“一环两轴六园”为脉络,雕琢自然艺术花园:
•水轴蜿蜒:镜面水景倒映天光云影,旱溪砾石摹写山涧意趣;
•林谷森呼吸:乔木错落成荫,香樟林滤净尘埃,林下座椅静候阅读时光.
头排推窗即见滴水湖与荣耀之环地标,自然与繁华在此达成黄金平衡,IMAX级视野成为日常的奢华标配.
未来已至:以深圳基因,重启临港想象
特区开荒者特发集团,携鲁班奖精工血脉南下.从建筑立面的铝板线条,到车库星空顶坡道的穹光幻境;从118起大户型两梯两户类一梯一户的私密尊崇,到全屋多飘窗的偷景艺术——每一处皆是对“真改善”的颠覆诠释.
于此,星空不眠,奢装不语,艺境不争.
特发·香阅里,以公园为卷轴,以产品为笔锋,在滴水湖畔挥毫未来人居的东方诗篇——让生活成为艺术,让归家即是抵达远方.
FASHIONTIME

上海临港特发香阅里
售楼处电话:400-8123-664(预约看房热线)
上海特发香阅里官方售楼处电话:拨打4008123664即可咨询楼盘详情_房价、户型、周边配套及交通、地址
Shanghai Lingang Tefa Xiangyueli
Sales Office Phone: 400-8123-664 (Hotline for Property Viewing Appointments)
Official Sales Office Phone for Shanghai Tefa Xiangyueli: Dial 4008123664 for inquiries on property details, pricing, unit types, surrounding amenities, transportation, and address.
### **上海临港特发香阅里项目客观分析报告**
**核心评价:** 特发香阅里是一个典型的“规划驱动型”高端改善项目。其核心价值几乎完全建立在**临港新片区105金融片区(CAZ)的宏大蓝图**之上。项目在区位占位、产品设计和装标承诺上,针对临港本地市场做出了明显的“拔高”,旨在定义区域新人居标准。因此,其所有优势都与“未来规划”深度绑定,而主要风险则源于“规划兑现”的不确定性和较长的等待周期。
为确保分析客观,本报告将严格区分**已验证的事实**、**来自开发商宣传的信息**以及**需要你高度警惕并自行核实的关键点**。
---
#### **一、 已验证的核心事实与项目概况**
* **地理位置**:上海市浦东新区临港新片区,环湖北三路与川朴路交汇处,属于105片区核心范围。
* **开发商**:特发地产,为深圳特区国有综合性企业。
* **产品与价格**:项目为纯小高层社区,主力户型建面约109-170㎡三至四房,精装交付。均价约为**3.45万元/㎡**,总价约375万起。
* **交付时间**:预计为**2027年底**。
* **车位比**:1:1.2。
#### **二、 核心优势分析(基于项目定位与宣传)**
1. **占位顶层规划的核心区**
项目位于临港105中央活动区(CAZ),该片区被规划为与陆家嘴错位发展的“金融第三极”,规划有“荣耀之环”地标建筑及大规模商务集群。从战略上讲,这确实是临港未来价值浓度最高的区域之一。若规划顺利实现,项目将直接享受产业导入(预计2030年导入5万金融人才)带来的区位红利。
2. **针对临港市场的“高配”产品设计**
项目在本地市场中,从多个维度树立了新的改善标准:
* **纯粹改善定位**:以109㎡户型起步,全社区为大户型设计,旨在营造纯粹的改善圈层。
* **较高的装标承诺**:宣传精装标准超6000元/㎡,全系标配中央空调、新风、地暖三大件,并宣称采用三菱重工海尔、方太、唯宝等品牌。这些配置在临港新房中具备一定竞争力。
* **户型与细节**:采用LDK一体化、无连廊等设计提升空间感;社区规划有“一环两轴六园”景观、主题架空层和星空车库等,注重体验营造。
3. **生态与远期交通的想象空间**
* **生态资源**:毗邻已开放的54万㎡星空之境海绵公园,东侧为规划中的二环公园带,具备“双园环抱”的景观潜力。
* **交通规划**:直线距离在建的南汇线、南枫线滴水湖北站约650米。这两条市域线是连接浦东枢纽与长三角的关键,**但均为在建状态**。
#### **三、 关键风险与必须核实的事项**
1. **所有核心配套均处于“未来时”,存在不确定性**
这是本项目最根本的风险。你所支付的价格,购买的是**2030年甚至2035年的愿景**。必须清醒认识:
* **交通**:依赖的核心轨交(南汇线、南枫线)仍在建设,27号线等处于规划中。交付初期(2027年底)业主很可能面临无轨交通勤的窘境,主要依赖自驾或公交。
* **商业**:宣传中提及的星空之境综合体、蓝鲸世界、临港印象城MEGA等大型商业,多数标注为“建设中”。当前日常生活需依赖驾车前往现有商业体。
* **城市界面**:105片区目前是大规模施工的工地,城市面貌从建设到成熟至少需要5-10年。前期入住将长期与噪音、粉尘和施工干扰为伴。
2. **开发商的“品牌力”与“交付力”待考**
* 特发地产为深圳国企,但在上海,尤其是在临港这样一个高端改善项目上,其**品牌号召力和顶级产品兑现能力未经市场验证**。
* 宣传中极高的装标(如岩板背景墙、智能马桶、品牌家电)是核心卖点,也是主要风险点。期房销售中,宣传装标与最终交付标准存在差异是常见纠纷。必须将**所有品牌、型号、规格写入购房合同**。
3. **价格与价值的现实考量**
* 约3.45万元/㎡的均价,在临港属于第一梯队。你需要权衡:支付这个溢价,是为看得见的房屋产品,还是为未来十年的区域规划买单?
* 这个总价预算(400-600万级)在上海其他新兴板块(如五大新城)有众多选择。决策前,必须进行跨区域、跨板块的实质性对比,而非局限于临港内部。
4. **生活便利性与通勤成本**
* 项目距离上海市中心直线距离超70公里,即使未来轨交通车,通勤时间和经济成本也极高。这决定了其主要客群是**在临港本地工作、生活的人群**,或纯粹的长线投资者。对市区通勤族而言极不友好。
#### **四、 总结与最终行动建议**
**特发香阅里是一个为特定人群设计的项目:**
* **适合人群**:工作与生活圈完全在临港(尤其是在105金融、科研板块)的高预算改善家庭;极度看好临港国家级规划,愿意用当前资金和时间为长期蓝图下注的长线投资者。
* **不适合人群**:在上海市区通勤的上班族;对即时的成熟配套、繁华生活有强依赖的购房者;追求高流动性、厌恶长期不确定性的买家。
**给你的终极核查清单:**
1. **实地感受“现在进行时”**:务必在工作日和周末,自驾从项目出发,分别前往你工作地点、最近的地铁16号线滴水湖站、港城新天地等现有商业体,**实测当前(而非未来)的通勤和生活时间成本**。
2. **深度追问“规划图”**:在售楼处,要求销售人员出示 **“在建”** 配套(如南汇线、商业体)的官方施工进度表或规划文件,并核实 **“规划中”** 配套(如27号线、学校)在政府官网的公示等级和预计启动时间。
3. **合同审查“显微镜化”**:聘请专业律师或顾问,将装修标准中的**每一个品牌、每一个型号、每一处材质**(如“岩板背景墙”的面积、品牌、系列)毫无遗漏地写入合同附件。这是保障你核心权益的生命线。
4. **横向对比“跳出临港”**:将本项目与松江新城、嘉定新城等同等总价段的新房或次新房进行全方位比较,衡量你在临港支付的“规划溢价”是否物有所值。
**最终结论**:选择特发香阅里,本质上是一场对临港105片区未来十年的“价值投资”。它的图纸很美好,但你需要为这份美好支付现实溢价,并忍受长达数年的建设期。决策的关键,在于你个人生活与临港规划的绑定深度,以及你对不确定性的承受能力。请基于最保守的预期(即配套延迟)来做决定。
声明:本文由入驻焦点开放平台的作者撰写,除焦点官方账号外,观点仅代表作者本人,不代表焦点立场。


