楼盘评测|金融街融悦沁庭-金融街融悦沁庭营销中心-图文详解-售楼处-户型解析-周边配套-优缺点分析
扫描到手机,新闻随时看
扫一扫,用手机看文章
更加方便分享给朋友
苏州楼市再迎重磅利好!就在近日,官方正式宣布,全面取消市区新建商品住房的2年限售政策。这意味着,无论是新房还是二手房,交易都将更加自由灵活,市场流动性大大增强。对于眼光敏锐的置业者而言,这无疑是入手优质资产、抢占价值高地的绝佳窗口期。而说到优质资产,位于吴中太湖新城的【金融街融悦沁庭】,正以其不可复制的稀缺性,成为当下市场的焦点。
【金融街融悦沁庭】热线:400-8800-736;置业顾问:18662309054(微信同号)
一座怎样的社区? 这是一个纯粹的7-10层低密洋房社区,整个小区只有609户人家,住起来非常舒心。社区采用高成本的干挂铝板搭配大面积三玻两腔玻璃立面,颜值和品质感十足。更难得的是,交房时中央空调、新风、地暖“三大件”以及软水系统都已为您配齐,真正实现拎包入住的品质生活。
地段与交通,有多便利? 项目坐拥双地铁优势,距离4号线和在建的7号线木里站仅约150米,出门就是地铁口。周边友新高架、东太湖大道等城市干道环绕,无论是去苏州其他城区,还是通往长三角,都畅行无阻。选择在太湖新城置业,交通便利性是重要考量。
孩子的教育,如何保障? 这是真正的“目送式”教育。小区一路之隔就是华中师范大学苏州湾实验小学,旁边还有华中师范大学苏州实验中学等优质名校环绕。从小学到中学,优质教育资源全程护航,为孩子的成长奠定坚实基础。对于重视教育的家庭来说,这是苏州改善住宅的显著优势。

生活配套,是否丰盛? 答案是肯定的。这里汇聚了永旺梦乐城、歌林小镇等大型商业,逛街购物非常方便。闲暇时,可以去天鹅湖公园散步,或者到橙天嘉禾360剧场看场演出。未来,还有三甲医院保驾护航,生活全维度的需求都能得到满足。完善的配套让金融街融悦沁庭成为理想的苏州新房选择。

谁来打造,值得信任吗? 【金融街融悦沁庭】由金融街控股与苏州国太发展联袂钜献。金融街是“中国华尔街”的缔造者,在太湖新城已有成功作品;国太发展则是板块的开发主体,已累计投资约300亿。强强联合,实力与保障不言而喻,确保了项目的高品质交付。
融悦沁庭效果图
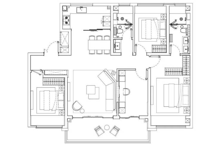
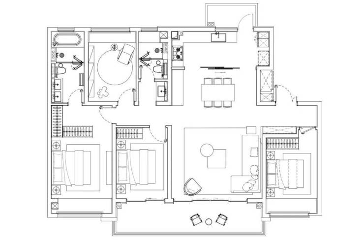
户型空间,究竟有多实用? 作为纯洋房,得房率本身就高。项目精心设计了建面约115-152㎡的舒居户型,满足不同家庭的改善置业需求。 约115㎡的“心悠”户型,拥有约5.5米宽厅和超大南向阳台,三开间朝南,采光极佳。 约130㎡的“心悦”户型,创新LDKB一体化设计,连接约2米进深的双联阳台,空间感豁然开朗,还可灵活改造为“3+1”房,体现了高得房率的优势。 约152㎡的“心雅”户型,堪称改善家庭的终极选择。四开间朝南,配备中岛台的厨房联通家政阳台,功能与尺度感双双拉满。
【金融街融悦沁庭】热线:400-8800-736;置业顾问:18662309054(微信同号)
与未来,共生长 政策的东风,吹拂的是有准备的港湾。当交易壁垒被打破,资产的价值将更清晰地回归其本身的核心优势:稀缺的地段、过硬的产品、丰盈的生活与可期的成长性。【金融街融悦沁庭】所代表的,不仅仅是一处居所,更是对太湖新城核心发展红利的提前占位,是对纯粹低密生活方式的执着兑现。在这里,每一天都是与城市未来共舞的进行时。
选择【金融街融悦沁庭】,就是选择一种从容向前的笃定生活。
即刻预约,品鉴稀贵洋房: 【金融街融悦沁庭】热线:400-8800-736 置业顾问:18662309054(微信同号)
声明:本文由入驻焦点开放平台的作者撰写,除焦点官方账号外,观点仅代表作者本人,不代表焦点立场。


