三低一宽政策利好,建屋·新棠玥园区置业正当时
扫描到手机,新闻随时看
扫一扫,用手机看文章
更加方便分享给朋友
最近,苏州出台了一系列购房利好政策,让许多想安家园区的人们看到了希望。"三低一宽"的金融政策,让首付门槛大幅降低至15%,利息更加优惠,月供压力减轻,还款期限更灵活。特别是对于青年人和新市民,这些政策无疑是雪中送炭。在这样的政策背景下,园区斜塘板块的建屋·新棠玥项目,正以其独特的魅力,成为许多购房者关注的焦点。
基本信息
建屋·新棠玥是新建元与苏州恒泰联袂打造的新一代玥系开篇作品。项目位于苏州工业园区独墅湖大道与星塘街交汇处西北侧,占地面积约4万㎡,容积率1.7,建筑密度19.8%。项目由11栋13-17层的小高层组成,户型面积段为165-225㎡的四房三卫设计,这样的配置非常适合追求品质生活的家庭。
18662309054
区域配套
斜塘板块汇聚了园区多年的发展经验,从产城融合到人城境业的全面融合,构建了园区领先的居住环境。这里位于园区"一主两副四片多点"战略格局的交汇处,连接金鸡湖中央商务区、独墅湖科教创新区、高端制造与国际贸易区和苏州园区东站副中心,享受着高能级的城市规划。
周边配套丰富:
自然环境:金鸡湖右岸客厅、独墅湖公园、弥陀泾
交通出行:独墅湖城市主干道、星塘街、约4公里可达的苏州东站(在建)
教育文化:工业园区图书馆、独墅湖文体中心湾国际中心
商业生活:湖东CBD、奥体中心、邻瑞广场(山姆店)、斜塘老街
品牌价值
建屋·新建元与苏州恒泰两大国企联袂打造,实力雄厚。新建元集团是园区成立最早、规模最大的国资企业,以引领产业创新、推动城市繁荣为己任,代表项目有金鸡湖右岸客厅。苏州恒泰控股集团是中新合作苏州工业园区直属的大型国有企业,资产总规模365亿元,在商业地产、产业地产、租赁住房领域有着丰富的开发经验。
两大国企强强联手,传承31载园区人居理念,以玥系高端产品线展开新时代人居所需,传承苏式人居文脉,塑造新时代符号大宅。

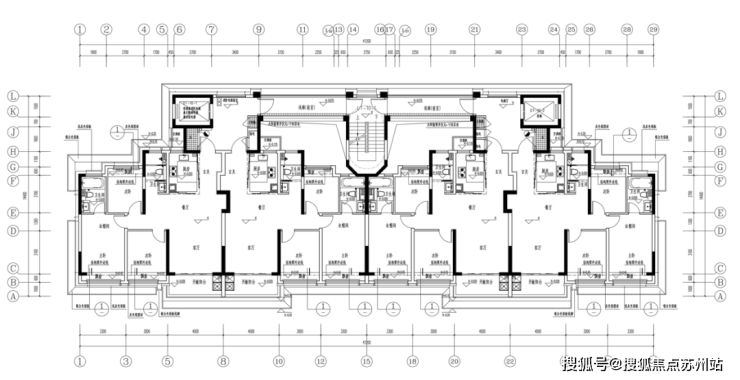
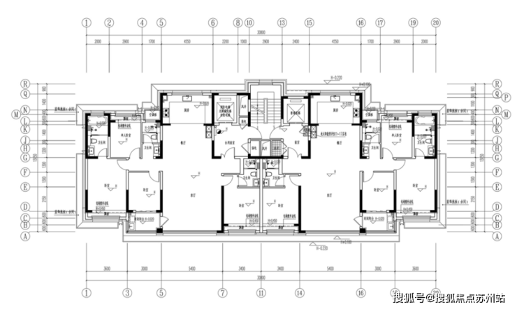
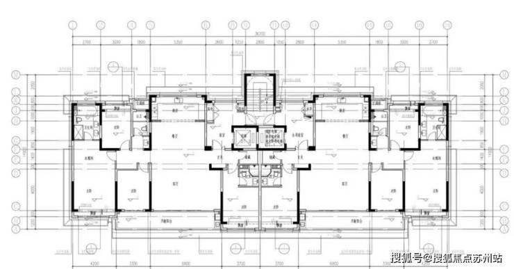
户型鉴赏
建屋·新棠玥的户型设计充分考虑了现代家庭的生活需求,提供165-225㎡的四房三卫空间。从公示的户型图来看,各户型布局合理,空间利用率高,采光通风良好。无论是10#14F小高层标准层,还是1#17F小高层标准层(建面约175平),以及6#16F小高层标准层(建面约215㎡),都体现了项目对品质生活的追求。


优势分析
建屋·新棠玥的优势主要体现在以下几个方面:
大师团队:项目邀请了多位国际知名设计师共同打造,包括建筑设计大师宋照青(Lacime Architects日清设计创始人,代表作品有上海新天地、上海中星美华村等)、景观设计A&N尚源景观、精装设计Yan Design大研设计、泛光设计bpi照明设计等。
产品定位:作为玥系开篇作品,项目溯源苏式人居之源,承续沧浪之六境,从归家仪式、建筑立面、景观设计、奢美空间、服务营造等高阶人居需求出发,重构人居新境。
稀缺性:项目位于园区核心地段,低密度社区(建筑密度仅19.8%),小高层设计,提供更加舒适的居住体验。
前瞻性:项目以新质人居为要求与前瞻,描绘人与城市共创的时代符号,赋新园区时代人居新意。
新棠落定,未来可期,园区生活新篇章
随着苏州园区不断发展和完善,斜塘板块作为园区的重要组成部分,其价值将持续提升。建屋·新棠玥凭借其优越的地理位置、完善的配套、高品质的产品以及国企背景的开发商实力,在未来有着良好的升值潜力。特别是在当前"三低一宽"的购房政策支持下,现在入手不仅能够享受到政策红利,更能提前锁定园区核心资源,为家庭的长远发展奠定坚实基础。
联系方式
18662309054
声明:本文由入驻焦点开放平台的作者撰写,除焦点官方账号外,观点仅代表作者本人,不代表焦点立场。


