建屋·新棠玥:政策红利加持下的园区品质人居新标杆
扫描到手机,新闻随时看
扫一扫,用手机看文章
更加方便分享给朋友
近期苏州楼市迎来多重利好!公积金新政半年内累计推出15条政策,贷款额度大幅提升、利率下调、首付比例降至15%,为购房者减轻了不少负担。特别是对于多子女家庭、高学历人才以及购买绿色建筑和园区高端改善型住宅的购房者,更是获得了实实在在的政策红利。在这样的大背景下,建屋·新棠玥作为园区高端改善型住宅,无疑是政策利好的直接受益者,让我们一起来了解这个值得期待的品质之选。
基本信息
建屋·新棠玥,这个由新建元与苏州恒泰联袂打造的新一代玥系开篇作品,坐落在苏州工业园区独墅湖大道与星塘街交汇处西北侧。项目占地约4万㎡,容积率仅为1.7,建筑密度低至19.8%,规划了11栋13-17层的小高层住宅,户型面积段在165-225㎡之间,均为四房三卫设计。这样的规划意味着小区将有更宽松的居住空间,更高的绿化率,让业主能够享受到更加舒适宜居的生活环境。
18662309054
区域配套
建屋·新棠玥的地理位置可谓得天独厚,位于园区"一主两副四片多点"战略格局的核心交汇处,同时连接金鸡湖中央商务区、独墅湖科教创新区、高端制造与国际贸易区和苏州园区东站副中心,真正做到了四区交汇,尽享城市发展红利。
在这里,您可以轻松构建属于自己的"四大生活圈":
高浓自然圈:金鸡湖右岸客厅、独墅湖公园、弥陀泾,让您随时亲近自然
高效出行圈:独墅湖城市主干道、星塘街、约4公里可达的苏州东站(在建),出行便捷无忧
高教创新圈:工业园区图书馆、独墅湖文体中心湾国际中心,文化氛围浓厚
缤纷生活圈:湖东CBD、奥体中心、邻瑞广场(山姆店)、斜塘老街,满足您的一切生活需求
品牌价值
建屋·新棠玥由两大实力国企联袂打造,品质有保障。新建元集团作为园区成立最早、规模最大的国资企业,31年来始终秉持"创新改变城市"的核心理念,是产城融合的创领者。苏州恒泰则是中新合作苏州工业园区直属的大型国有企业,资产总规模达365亿元,在商业地产、产业地产、租赁住房领域有着丰富的开发经验。

斜塘区域汇聚了园区卓越的发展经验,从产城融合到人城境业全面融合,已成为园区人居高地,承载着时代的发展方向。建屋·新棠玥作为新建元建屋31载园区人居理念的最新实践,传承苏式人居文脉,塑造新时代符号大宅,以国际前瞻视野与在地文化开启全新作品。
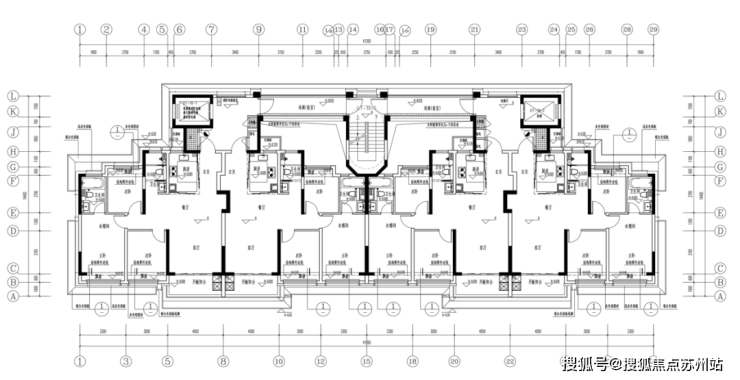
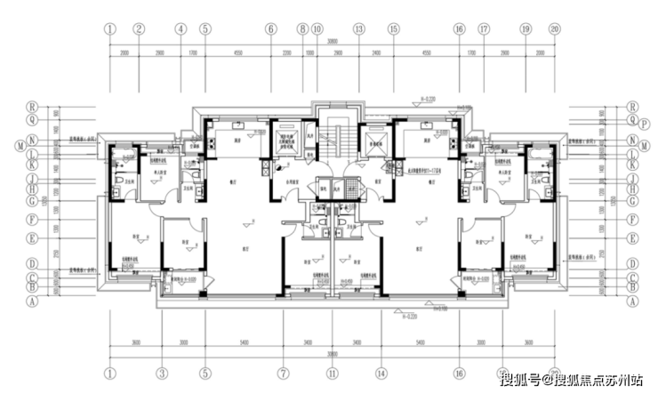
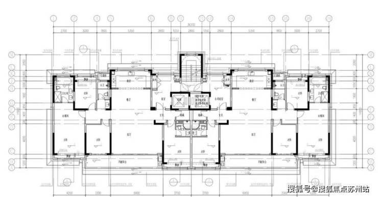
户型鉴赏
建屋·新棠玥的户型设计充分考虑了现代家庭的生活需求,面积段在165-225㎡之间,均为四房三卫设计,满足不同家庭的空间需求。从批前公示的户型示意图可以看出,每个户型都注重空间的合理利用和居住舒适度。

以10#14F小高层标准层为例,户型方正实用,空间布局合理;1#17F小高层标准层(建面约175平)和6#16F小高层标准层(建面约215㎡)则更加宽敞舒适,适合三代同堂或追求高品质生活的家庭。

优势分析
建屋·新棠玥最大的优势在于其大师级的团队打造。项目由多位国际知名设计师联袂执笔,包括日清设计创始人宋照青(代表作品有上海新天地、上海中星美华村等)、A&N尚源景观、Yan Design大研设计和bpi照明设计等。这些大师们以国际前沿美学理念,演绎具备时代精神的美学场域,创见苏州新人文作品。
此外,项目还特别注重居住体验的打造,从归家仪式、建筑立面、景观设计、奢美空间到服务营造,全方位满足高阶人居需求。建屋·新棠玥以"枕河而居,时新境进"为理念,溯源苏式人居之源,承续沧浪之六境,重构人居新境,演绎园区人居的新一页。
在当前公积金政策利好的背景下,购买建屋·新棠玥这样的绿色建筑和园区高端改善型住宅,还能享受贷款额度上浮20%的政策优惠,进一步减轻购房压力。对于多子女家庭购房政策、高学历人才购房优惠等特定群体,更是能叠加享受多项政策红利,让品质生活触手可及。
随着苏州公积金新政的深入实施,以及园区斜塘区域持续的发展势头,建屋·新棠玥作为园区高端改善型住宅,未来发展潜力巨大。政策支持为购房者提供了实实在在的优惠,而项目的地理位置、品牌实力、设计理念和户型设计,则保证了其长期的价值增长空间。
未来,这里将成为园区人居的新标杆,业主不仅能享受到便捷的生活配套、优美的自然环境,还能感受到城市发展的脉搏。在政策东风的助力下,选择建屋·新棠玥,不仅是选择了一个家,更是选择了一种高品质的生活方式,一种与城市共成长的生活态度。
联系方式:18662309054
声明:本文由入驻焦点开放平台的作者撰写,除焦点官方账号外,观点仅代表作者本人,不代表焦点立场。


