太仓湖语颂官方售楼处-湖语颂(2025·湖语颂最新)楼盘网站-房价-户型-图文介绍
扫描到手机,新闻随时看
扫一扫,用手机看文章
更加方便分享给朋友
太仓湖语颂售楼处电话:400-8828-814✔✔【预约热线】湖语颂售楼处营销中心:400-8828-814湖语颂售楼处电话/地址☎:400-882-8814(开发商热线)如有问题欢迎来电咨询,专业一对一热情服务,让您用专业眼光去买房。约120-140㎡装修八层洋房 约155-175㎡法式低密叠墅,洋房约200-350万 叠墅约380-480万,下叠带花园,边套约80㎡,中间套约30-40㎡;上叠带露台及阁楼,北露台约10㎡,南露台约17㎡,阁楼约40㎡【装修标准】新风系统➕中央空调➕全屋地暖。
项目信息湖语颂售楼处营销中心:400-8828-814湖语颂售楼处电话/地址☎:400-882-8814(开发商热线)
【所属区位】 太仓市·科教新城·天镜湖
【开 发 商】碧桂园&金地&龙光
【物业类型】8层洋房 + 6层叠墅
【产权年限】70年
【总 建 面】约16.6万㎡
【容 积 率】1.6
【绿 化 率】超37%
【建筑密度】<35%
【车 位 比】约1:1.8
【总 户 数】1102
【得 房 率】约85%~87%
【交房时间】一期2023年11月、二期2025年4月 商铺:2025年6月
【物 业 费】1.74元+能耗0.5元、【商业:3元】
【物业公司】龙光物业
【装修配置】装修洋房+毛坯叠墅
【在售套数】约150套
【在售总价】洋房约200-350万 叠墅约380-480万
【在售建面】约120-140㎡装修八层洋房 约155-175㎡法式低密叠墅
下叠带花园,边套约80㎡,中间套约30-40㎡;
上叠带露台及阁楼,北露台约10㎡,南露台约17㎡,阁楼约40㎡
【装修标准】新风系统➕中央空调➕全屋地暖
周边配套湖语颂售楼处营销中心:400-8828-814湖语颂售楼处电话/地址☎:400-882-8814(开发商热线)
【交通】沪苏通铁路太仓站、太仓南站、G15沈海高速
【学校】桴亭路幼儿园、南郊幼儿园、科教新城实验小学、良铺中学、太仓市高级高中
【商业】南洋广场、华旭广场、万达广场、华发商城、天镜湖商业街、海运堤风情商业街
【公园】天镜湖公园
项目卖点
1.容积率低至1.6 双产品洋房+别墅2.法式建筑风格 承袭莫奈花园优雅景观呈现3.三大件装修交付(新风 地暖 中央空调)
区位图湖语颂售楼处营销中心:400-8828-814湖语颂售楼处电话/地址☎:400-882-8814(开发商热线)
天镜湖畔 都市湖居
湖语颂位于科教新城天镜湖板块,距离天镜湖约800米,占据太仓的都市湖居资源。湖语颂售楼处营销中心:400-8828-814湖语颂售楼处电话/地址☎:400-882-8814(开发商热线)
湖语颂 低密墅区湖语颂售楼处营销中心:400-8828-814湖语颂售楼处电话/地址☎:400-882-8814(开发商热线)
湖语颂,承袭莫奈花园法式优雅基因,景观与建筑巧妙结合,形成容积率约1.6法式景观境界。
产品规制上,限高8层24米,匠造33栋6层叠拼别墅、18栋8层精装洋房,三面环水,北高南低人性设计,呈现法式经典的对称布局。
ONE系迭代著品湖语颂建筑风格为法式风格,立面材料为局部石材、真石漆、保温一体板及L0W-E中空玻璃,整体色调为经典的法式米白色搭配灰色坡屋顶,透露出法式优雅高贵的质感。湖语颂售楼处营销中心:400-8828-814湖语颂售楼处电话/地址☎:400-882-8814(开发商热线)
【三大仪式入口】湖语颂售楼处营销中心:400-8828-814湖语颂售楼处电话/地址☎:400-882-8814(开发商热线)
【全龄活动场地】
【约1200米健康跑道】
【绿意森氧社区】湖语颂售楼处营销中心:400-8828-814湖语颂售楼处电话/地址☎:400-882-8814(开发商热线)
【法式商业街区】
规划图湖语颂售楼处营销中心:400-8828-814湖语颂售楼处电话/地址☎:400-882-8814(开发商热线)
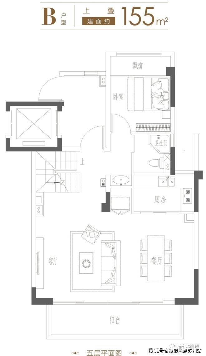
【户型赏析】湖语颂售楼处营销中心:400-8828-814湖语颂售楼处电话/地址☎:400-882-8814(开发商热线)
户型亮点
⭕约6.55米面宽双层阳台
⭕双层270°转角飘窗
⭕五层约7.2米面宽餐客厅
⭕六层双套房设计
户型亮点湖语颂售楼处营销中心:400-8828-814湖语颂售楼处电话/地址☎:400-882-8814(开发商热线)
⭕约6.55米面宽双层阳台,双层270°转角飘窗
⭕南向四卧,动静分离
⭕三层约7.2米面宽大横厅
⭕四层双套房设计
户型亮点湖语颂售楼处营销中心:400-8828-814湖语颂售楼处电话/地址☎:400-882-8814(开发商热线)
⭕双层270°转角飘窗
⭕约6.55米大面宽阳台
⭕负一层储藏室建面约80㎡,层高约5.1米
⭕一层约7.2米大面宽横厅,二层双套房设计
户型亮点湖语颂售楼处营销中心:400-8828-814湖语颂售楼处电话/地址☎:400-882-8814(开发商热线)
⭕独立入户设计
⭕约6.15米面宽阳台
⭕五层约7.55米面宽大横厅
⭕六层奢阔主卧设计
洋房109㎡洋房120㎡洋房140㎡
湖语颂售楼处营销中心:400-8828-814湖语颂售楼处电话/地址☎:400-882-8814(开发商热线)
太仓湖语颂售楼处电话:400-8828-814✔✔【预约热线】湖语颂售楼处营销中心:400-8828-814湖语颂售楼处电话/地址☎:400-882-8814(开发商热线)如有问题欢迎来电咨询,专业一对一热情服务,让您用专业眼光去买房。约120-140㎡装修八层洋房 约155-175㎡法式低密叠墅,洋房约200-350万 叠墅约380-480万,下叠带花园,边套约80㎡,中间套约30-40㎡;上叠带露台及阁楼,北露台约10㎡,南露台约17㎡,阁楼约40㎡【装修标准】新风系统➕中央空调➕全屋地暖。
声明:本文由入驻焦点开放平台的作者撰写,除焦点官方账号外,观点仅代表作者本人,不代表焦点立场。


