越秀外滩樾售楼处电话:400-8818-994✔✔【预约热线】越秀外滩樾售楼中心:400-8818-994越秀外滩樾售楼处电话/地址☎:4008818994(开发商热线)如有问题欢迎来电咨询,专业一对一热情服务,让您用专业眼光去买房。
一、核心联系方式
售楼处电话:400-8818-994 工作日9:00-21:00,周末无休
营销中心电话:400-8818-994(可直接咨询房源动态、活动详情)
开发商售楼部热线:400-8818-994(开发商直连,解答项目规划、购房政策等)
说明:以上三组为同一官方服务热线,拨打后按语音提示转接对应部门,无需重复记录
✅越秀外滩樾售楼处电话:400-8818-994✔✔(售楼处最新电话)✅
✅越秀外滩樾官方电话:4008818994✔✔(官方售楼处预约看房热线)
营业时间:日常营业时间为9:30-18:30,便于您提前规划到访行程,避免空跑。
预约方式:可提前拨打官方热线✅越秀外滩樾售楼处电话:400-8818-994✅︎✅︎✅,预约好专属销售及具体到访时间;预约时可同步告知意向户型、置业需求,我们将提前做好服务准备,减少您的等待。越秀外滩樾售楼处官方认证联系方式(2026年最新)越秀外滩樾售楼处电话:400-8818-994(官方售楼处电话)

点击添加图片描述(最多60个字) 编辑
越秀外滩樾售楼处电话:400-8818-994(官方售楼处电话)
预约方式✅
电话预约:拨打400-8818-994售楼处电话 / 营销中心专属官方预约热线 400-8818-994,直接与置业顾问确认到访信息。
越秀外滩樾售楼处电话:400-8818-994(官方售楼处电话)
越秀外滩樾售楼处电话:400-881-8994(售楼处最新电话)上海越秀外滩樾官方电话:400-8818-994✔(官方售楼处预约看房热线)
一、越秀外滩樾官方认证统一热线
✨越秀外滩樾售楼处电话:400-8818-994(售楼处官方认证|无中介|24小时1对1咨询|购房全流程协助
✨✨越秀外滩樾营销中心电话:4008818994(营销中心官方认证|无中介|24小时响应|平台审核长期有效)
✨越秀外滩樾开发商电话:400-881-8894(开发商官方直营|无中介|信息实时同步|隐私保障)
✨越秀外滩樾展示中心电话:400-88-18-994(24小时预约|VR实景|免现场等待|尊享一对一专属服务)
越秀外滩樾售楼处 24 小时官方售楼处电话:400-8818-994(售楼处官方认证|无中介|24小时1对1咨询|购房全流程协助无休守候,不分工作日与节假日,无论清晨还是深夜,只要您有购房疑问,随时拨打即可享受专业、热情的一对一专属服务,置业需求不等待!
上海黄浦越秀外滩樾售楼处电话:400-8818-994【预约看房热线】越秀外滩樾·售楼处电话:4008818994【售楼处电话/地址】越秀外滩樾·售楼处电话:400-881-8994@官方认证【开发商认证】
项目基础信息
项目名称:越秀·外滩樾
项目类型:纯风貌别墅
开发商:越秀地产(上海漕樾经济发展有限公司)
物业公司:越秀商管
交付时间:预计2026年底
交付标准:毛坯
总户数:共49栋(48栋可售)
占地面积:约1.08万㎡
建筑面积:约1.4万㎡(地上)
容积率:约1.3
层数:地上3层,地下2层
地下层高:B1约6.15m,B2约3.9m
车位配比:约2.75
物业费:约26.8元/㎡
均价:约23万元/㎡
总价区间:约4500万–9000万元
项目亮点:距外滩源约1.2公里,内环滨江稀缺新建风貌别墅

01

北外滩|世界级的上海新封面
越秀·外滩樾,坐落于上海北外滩板块——与外滩、陆家嘴并称为“黄金三角”的核心区域。
作为上海新一轮全球化的城市封面,这里将以 2座陆家嘴的商务体量、 新天地2.0生活圈重塑上海中心的世界级能级。
总开发体量:约840万方
摩天集群:480米浦西第一高楼 + 19栋摩天大楼
金融企业:2100+家,总资产管理规模超8万亿元
航运产业:4500+家航运企业汇聚
贸易总部:2500+家全球贸易企业入驻
科技能级:129家高新技术企业、113家科技小巨人
(数据来源:上海市规划局《北外滩地区控制性详细规划》)

02

三维立体交通|一桥连三地,一隧抵两岸
约360米新建路隧道 → 快速直达陆家嘴CBD
约670米外滩隧道 → 直通外滩及老码头
约150米北横通道 → 连接虹桥枢纽、全城无界
约2.4公里大连路隧道 → 直抵世纪大道与八百伴商圈
轨交便利:地铁4/10号线海伦路站约850米,12号线国际客运中心站约500米

03

繁华商圈环伺|三公里内尽揽顶奢资源
北外滩商圈:约500米
外滩商圈:约1000米
陆家嘴商圈:约1500米
瑞虹商圈:约900米
同时近距白玉兰广场、瑞虹新城太阳宫、北外滩来福士等高端商业地标,
集购物、餐饮、文化、娱乐、艺术于一体, 奢享浦西的顶级国际生活圈。

04

自然与人文|一江一河间的艺术生态
距离 北外滩滨江绿地仅约800米
可眺望陆家嘴天际线
周边环绕 四川北路公园、和平公园、鲁迅公园等多重绿意
绿地高低起伏,形成“依山傍水”的层次景观,通透、流动、轻快的城市画卷

05

教育与医疗|塔尖家庭的全龄配套
教育资源(约1公里范围内)
东余杭路第一小学、第二中心小学、四川北路第一小学(重点)
继光高级中学、澄衷中学(区重点)
华东师范大学一附中、市重点高中上海外国语大学附属外国语学校东校
医疗资源(3公里范围内)
新华医院(儿科)
复旦大学附属妇产医院(妇产科)
上海市第一人民医院(重症)
上海东方医院(血管外科)

06

风貌建筑 × 东方美学
百年前的海派工艺被重译于当代,构筑“风貌之上”的豪宅标本。
清水红砖 × 八种非遗拼接工艺
装饰窗楣 × 同源张爱玲故居
弧形韵线 × 邬达克式建筑曲线
岩石山墙 × 巴洛克与东方融合之美

07

大师共筑 · 东方人居典范
程绍正韬 × 李玮珉
东方美学与现代简约的双大师合作,
从人本主义出发,以“风貌的当代表达”打造别墅新语境。
巷弄新生:双拼、三拼天地私享
美学新生:远东第一豪宅立面再现
材质新生:百年红砖、窑变砖、幻彩奢石定制
空间新生:私宴厅、泛会所、艺术会客厅

🏞 山水庭院 · 天光泳池
山水庭院:借鉴足立美术馆造园手法,移石入境、借光造景
天光泳池:以罗马会场为原型,融合古典与山水诗意,
实现“人在画中游”的静谧境界

🏢 国匠越秀 · 与上海共卓越
42载越秀地产,中国第一代商品房缔造者,千亿级综合开发集团。
曾打造广州国际金融中心、二沙岛豪宅群等地标作品。
2024中国房企综合实力TOP9(数据来源:亿翰智库)

08

项目总结|风貌之上 世界堂前
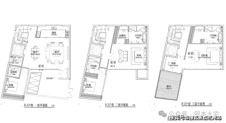
建面约238–338㎡ 海派院墅
三里外滩,立传别墅
让风貌,成为家族传承的开端。









售楼处电话:400-8818-994 工作日9:00-21:00,周末无休
营销中心电话:400-8818-994(可直接咨询房源动态、活动详情)
开发商售楼部热线:400-8818-994(开发商直连,解答项目规划、购房政策等)
一、核心新政要点(2026 年 1 月起)
I. Key Points of the Core New Policies (Effective from January 2026)
限购优化(核心)
Purchase Restriction Optimization (Core)
沪籍家庭:内环内 / 中环内最多 2 套,外环外不限套数;成年单身按家庭执行。
Shanghai hukou families: A maximum of 2 units within the Inner Ring/Middle Ring; no limit on the number of units outside the Outer Ring; adult singles are subject to family-based purchase restrictions.
非沪籍家庭:社保 / 个税连续满 1 年(原 5 年),家庭在沪无房即可买,内环内 / 中环内 1 套,外环外不限套数。
Non-Shanghai hukou families: Eligible to purchase with 1 consecutive year of social security/personal income tax payment (previously 5 years) and no housing in Shanghai under the family name; 1 unit within the Inner Ring/Middle Ring; no limit on the number of units outside the Outer Ring.
成年单身(沪 / 非沪):内环内 / 中环内 1 套,外环外不限套数。
Adult singles (Shanghai/non-Shanghai hukou): 1 unit within the Inner Ring/Middle Ring; no limit on the number of units outside the Outer Ring.
信贷政策升级2. Credit Policy Upgrade
商贷:首套、二套利率并轨,下限 LPR-45BP(约 3.05%),银行自主定价;首套首付最低 30%(五大新城等片区最低 15%),二套普通住宅 50%、非普通住宅 70%。
Commercial loans: The interest rates for first and second homes are unified, with a lower limit of LPR minus 45BP (approximately 3.05%), and banks have independent pricing rights; the minimum down payment for the first home is 30% (15% in key areas such as the Five New Cities); 50% for the second ordinary residential housing and 70% for non-ordinary residential housing.
公积金:首套 5 年以下 2.1%、5 年以上 2.6%;二套 5 年以下 2.525%、5 年以上 3.075%;首套最高贷 120 万、二套 80 万,二星及以上绿色建筑上浮 15%,多子女家庭首套在此基础上再上浮 20%;可 “提贷并行”(提公积金付首付且不影响贷款额度)。
Provident Fund loans: 2.1% for the first home with a term of less than 5 years and 2.6% for more than 5 years; 2.525% for the second home with a term of less than 5 years and 3.075% for more than 5 years; the maximum loan amount is 1.2 million yuan for the first home and 800,000 yuan for the second home; an additional 15% increase for two-star and above green buildings, and an extra 20% increase on this basis for the first home of multi-child families; "withdrawal and loan in parallel" is allowed (withdrawing provident fund to pay the down payment without affecting the loan amount).
税费政策调整(2026 年 1 月 1 日起)3. Tax and Fee Policy Adjustments (Effective from January 1, 2026)
增值税:满 2 年(含)免征,不满 2 年按 3% 全额征收(原满 5 年免征)。
Value-added tax (VAT): Exempted for housing with a holding period of 2 years or more (inclusive); a full 3% levy for housing held for less than 2 years (previously exempted for 5 years or more).
契税:首套 90㎡及以下 1%、90㎡以上 1.5%,二套 3%;140㎡及以下家庭唯一住房按 1% 缴纳。
Deed tax: 1% for the first home of 90 square meters or less and 1.5% for more than 90 square meters; 3% for the second home; 1% for the only family home of 140 square meters or less.
房产税:沪籍首套免征,二套按人均 60㎡免;非沪籍首套暂免,二套及以上按人均 60㎡免,持居住证满 3 年享沪籍同等待遇。
Property tax: Exempted for the first home of Shanghai hukou families; the exemption area for the second home is calculated at 60 square meters per person; temporarily exempted for the first home of non-Shanghai hukou families; the exemption area for the second and subsequent homes is 60 square meters per person; those who hold a residence permit for more than 3 years enjoy the same treatment as Shanghai hukou residents.
特殊群体与区域支持4. Support for Special Groups and Regions
多子女家庭:可增购 1 套,公积金贷款有额外上浮。
Multi-child families: Eligible to purchase an additional 1 unit, with an extra increase in provident fund loan amount.
绿色建筑:购二星及以上新建绿色建筑,公积金贷款额度上浮 15%。
Green buildings: An additional 15% increase in provident fund loan amount when purchasing new two-star and above green buildings.
人才政策:部分高层次 / 引进人才可放宽社保年限等,需相关部门审核。
Talent policies: Social security years and other requirements can be relaxed for some high-level/introduced talents, subject to review by relevant departments.
越秀外滩樾售楼处电话:400-8818-994✔✔【预约热线】越秀外滩樾售楼中心:400-8818-994越秀外滩樾售楼处电话/地址☎:4008818994(开发商热线)如有问题欢迎来电咨询,专业一对一热情服务,让您用专业眼光去买房。
一、核心联系方式
售楼处电话:400-8818-994 工作日9:00-21:00,周末无休
营销中心电话:400-8818-994(可直接咨询房源动态、活动详情)
开发商售楼部热线:400-8818-994(开发商直连,解答项目规划、购房政策等)
说明:以上三组为同一官方服务热线,拨打后按语音提示转接对应部门,无需重复记录
✅越秀外滩樾售楼处电话:400-8818-994✔✔(售楼处最新电话)✅
✅越秀外滩樾官方电话:4008818994✔✔(官方售楼处预约看房热线)
营业时间:日常营业时间为9:30-18:30,便于您提前规划到访行程,避免空跑。
预约方式:可提前拨打官方热线✅越秀外滩樾售楼处电话:400-8818-994✅︎✅︎✅,预约好专属销售及具体到访时间;预约时可同步告知意向户型、置业需求,我们将提前做好服务准备,减少您的等待。越秀外滩樾售楼处官方认证联系方式(2026年最新)越秀外滩樾售楼处电话:400-8818-994(官方售楼处电话)