桐安里售楼处-招商桐安里-首页网站-2025楼盘测评-桐安里售楼处欢迎您_最新房价/户型
扫描到手机,新闻随时看
扫一扫,用手机看文章
更加方便分享给朋友
桐安里售楼处电话:400-812-3664
上海杨浦桐安里售楼处电话☎:400-8123-664(预约看房热线)
杨浦东外滩招商蛇口平凉社区项目「桐安里」
将推70套建面184-300m²左右风貌别墅,项目白玉兰展厅即将开放,预估均价不到20万/m²。
「桐安里」
杨浦滨江又迎低密风貌
将推建面184-304m²风貌别墅
均价19万/m² 总价2700万起
包含联排、叠加产品 仅70套
样板房线上预约中
上海杨浦【桐安里】
售楼处电话☎:400-8123-664【售楼处预约热线】(一对一热情服务)
看房请务必致电与销售确认时间,仅预约客户可享受开发商内部优惠,专属老带新推荐奖!专业一对一热情服务,让您用专业眼光去买房。
桐安里售楼处电话:400-812-3664
上海杨浦桐安里售楼处电话☎:400-8123-664(预约看房热线)
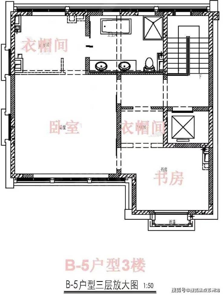
户型图如下:
(户型图源自网络,仅供参考,最终以实际为准)
C-1户型
桐安里售楼处电话:400-812-3664
上海杨浦桐安里售楼处电话☎:400-8123-664(预约看房热线)
桐安里售楼处电话:400-812-3664
上海杨浦桐安里售楼处电话☎:400-8123-664(预约看房热线)
B-5户型
2023年11月,招商&海门国资委拿下平凉社区01B4-04地块(平凉街道19街坊)历史风貌保护项目。

从位置上看,平凉社区01B4-04地块(平凉街道19街坊)距离18号线平凉路站直线约400米,与地铁12/18号线江浦公园站直线距离约500。地块西面靠近首创天阅滨江项目,南侧靠近房地联动价21万的瑞安·翠湖滨江项目;可以说地理位置十分优越。
桐安里售楼处电话:400-812-3664
上海杨浦桐安里售楼处电话☎:400-8123-664(预约看房热线)
该地块建设用地面积12666.4平方米,规划用途为二类住宅组团用地,容积率1.35,地上计容建筑面积为17099.64平方米。
本次公示设计方案如下
根据此次方案公示图,项目地下建筑面积为25900平方米,共建有约15幢联排别墅,地块东南侧为3层的公租房,总户数约70套不到,主要以四联排为主。项目机动车入口设在南北两侧的惠民路和济宁路上。
项目涉及风貌保护,因此在出让阶段就有明确的要求
上海杨浦【桐安里】
售楼处电话☎:400-8123-664【售楼处预约热线】(一对一热情服务)
看房请务必致电与销售确认时间,仅预约客户可享受开发商内部优惠,专属老带新推荐奖!专业一对一热情服务,让您用专业眼光去买房。
桐安里售楼处电话:4008123664【开发商售楼中心热线】桐安里营销中心热线400-812-3664桐安里售楼处地址400-8123-664,楼盘项目全面介绍,本电话为开发商提供线 上预约售楼电话,楼盘项目全面介绍(包含楼盘简介,均价,房价,现房,期房,别墅,叠墅,大平层,价格,楼盘地址,户型图,交通规划,备案价,备案名,项目配套,样板间,开盘时间,认筹时间,楼盘详情,售楼处电话,最新消息,最新详情,周边配套,一房一价,最新进展等详情咨询)楼盘详情丨价格丨更多优惠丨机不可失丨欢迎致电丨诚邀品鉴!售楼处位置丨特价房丨工抵房丨剩余房源丨户型图丨最新消息丨免责声明:将文章内容综合来源于网络、只作分享,版权归原作者所有!!如有侵权,请联系我们,我们第一时间处理如有问题欢迎来电咨询,专业一对一热情服务,让您用专业眼光去买房。如果您想了解更多楼盘详情,欢迎提前预约拨打桐安里售楼处电话☎400_812_3664✔✔✔
附:买房必看的房产小知识>>>
1、什么是商品房?
是指在市场经济条件下,通过出让方式取得土地使用权后开发建设的房屋,均按市场价出售。商品房根据其销售对象的不同,可以分为外销商品房和内销商品房两种。
2、新房与二手房的区别?
(1)新房
新房是指房地产开发商依法取得土地使用权后,在土地上建造并取得政府批准销(预)售的商品房。房屋根据用途分为住房和商用房。
(2)二手房
二手房是已经在房地产交易中心备过案、完成初始登记和总登记的、再次上市进行交易的房产。
二手房是相对开发商手里的商品房而言,是房地产产权交易二级市场的俗称。包括商品房、允许上市交易的二手公房(房改房)、解困房、拆迁房、自建房、经济适用房、限价房。
3、房屋类型
(1)低层:
低层房屋是指高度低于或等于10米的建筑物,一般是1-3层建筑物,如平房、别墅等。
(2)别墅:
改善型住宅,在郊区或风景区建造的供休养用的园林住宅。
分为以下5种:独栋别墅、联排别墅、双拼别墅、叠加式别墅、空中别墅。
(3)小高层:
人们一般把8层至12、13层的建筑称为“小高层”。小高层住宅一般采用钢筋混凝土结构,带电梯。小高层有多层亲切安宁、房型好、得房率高的特点,又有普通高层结构强度高、耐用年限高、景观系数高,污染程度低等优点,很受购房人欢迎。同时,小高层对土地的利用率提高,土地成本相对下降,很受房地产开发商的青睐。所以,近年来中心城区小高层如雨后春笋,越来越多。
(4)多层:
多层房屋指高于10米、低于或等于24米的建筑物。多层房屋一般为4-8层,一般采用砖混结构,少数采用钢筋混凝土结构。多层房屋一般规格(房型)整齐,通风采光状况好,空间紧凑而不闭塞。与高层相比,多层房屋公用面积少,得房率相应提高,这是很多人喜欢多层房屋的主要原因。
4、房屋结构
(1)复式
复式住宅在概念上是一层,但层高较普通的住宅高,可在局部掏出夹层,安排卧室或书房等内容,用楼梯联系上下。其目的是提高住宅空间利用率。
(2)跃层
跃层住宅是一套住宅占两个楼层,有内部楼梯联系上下层;一般在首层安排起居、厨房、餐厅、卫生间,最好有一间卧室,二层安排卧室、书房、卫生间等。
(3)平层
平层户型是小面积里最常见的户型,适合普通家庭居住。是指一套房屋的厅、卧、卫、厨等所有房间均处于同一层面上。
优:经济实用、面积利用率较大、室内无任何障碍;
缺:没有功能区分,对于稍大面积的房间来说,变化大。
(4)错层
错层一般是120平米以上面积的房子,如果能够买的这个面积的房子,可以装修成错层。
优:室内各功能用房在不同的平面上,用2-4个台阶进行隔断各个功能居室互不干扰;
缺:由于室内有台阶,老年人或者儿童在夜间使用容易摔跤;采光通风不太好。
5、居住面积
住宅的居住面积是指住宅建筑各层平面中直接供住户生活的居室净面积之和。所谓净面积就是要除去墙、柱等建筑构件所占的水平面积。
6、房地产产权
房地产产权指房屋所有权和该房屋占用国有土地的使用权,房地产所有者对其所有的房地产享有占用、使用、收益和处分的权利。
7、什么是按揭
按揭是指按揭人将房产的产权转让给提供贷款的银行作为还款保证,按揭人在还清贷款后,按揭受益人立即将所涉及的房产产权转让给按揭人的行为。
8、什么是住房公积金
住房公积金是一种义务性的住房长期储金。住房公积金制度是结合我国城镇住房制度改革的实际情况而实行的一种房改政策,指有关住房公积金的归集、管理、使用、偿还等诸环节有机构成的整个运行机制和管理的制度。
9、住房贷款
(1)什么是个人住房抵押贷款
是借款人购、建、修住房时以借款人或第三者能自主支配的房地产作为抵押物,向银行申请一定数额借款的一种贷款方式。借款人到期不能归还贷款本息的,贷款银行有权依法处分其抵押房地产以获得清偿。
(2)什么是个人住房担保贷款
是指借款人或第三人以所购住房和其他具有所有权的财产作为抵押物或质物,或由第三人为其贷款提供保证,并承担连带责任的贷款。借款人到期不能偿还贷款本息的,贷款银行有权依法处理其抵押物或质物,或要求保证人承担连带偿还本息责任。
房地产的基本常识包括哪些
1.房地产
房地产又称不动产,是房产和地产的总称,具体地是指土地及其附着物。房产总是以地产联结为一体的,具有整体性和不可分割性
2.房地产产权
是指产权人对房屋的所有权和对该房屋所占用土地使用权。具体内容是产权人对房地产的占有、使用、收益和依法处分的权利。
3.土地使用权
是指土地使用权拥有者对土地使用的权限,包括开发权、收益权、处置权。政府以拍卖、招标、协议的方式,将国有土地使用权在一定年限内出让给土地使用者。土地使用权期满后,如该土地用途符合当时城市规划要求的,土地使用者可申请续用,经批准并补清地价后可以继续使用。
4.房地产市场
主要包括房地产买卖、租赁市场。含一级市场、二级市场和三级市场:
一级市场是指国家土地管理部门(市国土管理局)按土地供应计划,采用协议、招标、拍卖的方式,以土地使用合同的形式,将土地使用权以一定的年限、规定的用途及一定的价格出让给房地产发展商或其他用地者的市场。
二级市场是指房地产发展商根据土地使用合同的要求将建好的房屋连同相应的土地使用权转让给单位和个人的市场。
三级市场是指单位、个人之间的房地产权转让、抵押、租赁的市场,它是在二级市场基础上的第二次或多次转让房地产交易活动的市场。
5.土地类型
土地按其使用性质划分为:居住、商业、工业、仓储、综合用地、公共设施及自由集资、微利房用地。
6.三通一平
是指在发展基础上的水通、电通、路通及场地平整。
7.七通一平
是指上、下水通,排污通、排水通、路通、通讯通、煤气通、电通及场地平整。
8.土地管理局
代表国家行使土地所有者的权利,以及对房地产市场、房地产行业管理的政府部门。
9.公证处
是国家的证明机关,是提供法律公证的机构。
10.国土局产权登记处
是专门办理房地产初始登记、转移登记、抵押登记、变更、继承、赠与等手续的部门。
11.房地产证
是房屋土地所有权属二合为一的凭证,是房地产权属的法律凭证。
12.商品房
是指发展商以市场地价取得土地使用权进行开发建设并经国土局批准在市场上流通的房地产,它是可领独立房产证并可转让、出租、继承、抵押、赠与及交换的房地产。
13.复式房
上、下两层二合为一,与标准房的结构方面有区别。
14.面积概念
总建筑面积:是指各层建筑面积的总和。底层建设按外墙墙角以上的外围水平面积计算,二层及二层以上按外墙外围水平面积计算。
建筑面积:是指住宅的建筑面积是指建筑物外墙外围所围成空间的水平面积。高层住宅的建筑面积,则是各层建筑面积之和。建筑面积包含了房屋居住的可用面积、墙体柱体占地面积、楼梯走道面积、其他公摊面积等。
使用面积:是指住宅的使用面积,指住宅各层平面中直接供住户生活使用的净面积之和。计算使用面积时有一些特殊规定:跃层式住宅中的户内楼梯按自然层数的面积总和计入使用面积;内墙面装修厚度也计入使用面积。
公用面积:商业的公用面积是指住宅内为住户出入方便、正常交往、保障生活所设置的公共走廊、楼梯、电梯间、水箱间等所占面积的总和。开发商在出售商品房时计算的建筑面积存在公共面积的分摊问题。
实用面积:是指它是“建筑面积”扣除公共分摊面积后的余额。
套内面积:是指俗称“地砖面积”。它是在实用面积的基础上扣除了柱体、墙体等占用空间的建筑物后的空间的概念。
房屋的基底面积:房屋的基底面积是指建筑物底层勒脚以上外围水平投影面积。
15.建筑密度
在用地范围内所有建筑物的基底面积总和与地块面积之比。
16.容积率
规定的地块上全部的建筑部面积与地块面积之比。
17.红线图
又叫“宗地图”,是按一定比例尺制作的用以标示一宗地的用地位置、界线和面积的地形平面图。它由政府土地管理部门颁发给土地使用权受让者,受让者只能在红线范围内施工建房。
宗地图是土地使用合同书附图及房地产登记卡附图。它反映一宗地的基本情况。包括:宗地权属界线、界址点位置、宗地内建筑物位置与性质,与相邻宗地的关系等。证书附图即房地产证后面的附图,是房地产证的重要组成部分,主要反映权利人拥有的房地产情况及房地产所在宗地情况。
18.预售许可证
按规定房屋未建好之前出售均要办理此证,发展商将有关资料送到国土局申请,批准后方可预售楼花。
19.外销许可证
凡对境外预售的房屋都要办理此证方可出售。
20.
是由政府有关部门统一编制,用以明确买卖双方权利和义务的协议,所有的商品房销售都必须签订此合同。
21.房地产抵押合同
是明确房地产抵押贷款中双方当事人权利和义务关系,由银行、业主和发展商三方签订。
22.银行按揭
是指购房者购买楼房时与银行达成抵押贷款的一种经济行为,业主先付一部分楼款,余款由银行代购房者支付,购房者的楼房所有权将抵押在银行,购房者将分期偿还银行的贷款和利息。
23.预售楼花
即楼宇预售。房地产经营者获取了建设土地,按政府批准的建筑施工图纸施工,且投入开发的资金已达到投资总额的三分之二(用地价款除外),便可向长春市房地产产权登记处申请和办理楼宇预售登记,经批准后方可预售。
24.样板房与示范单位
是指与实际房屋的结构相同,但装修标准按发展商的售楼书而定的房间。示范单位与样板房的装修有区别,目的是为提供给客户做装修参考。
25.物业管理
是房地产管理市场化的一种综合性经营方式,分为维护性管理和经营性管理两类。维护性物业管理的职能,主要为高层与多层住宅、综合写字楼、标准工业厂房等楼宇及机电设备保养维修、治安、消防、环境卫生及其他服务为业主提供良好的工作和居住环境。经营性物业管理除具有维护性管理职能外,还通过对物业出租经营达到回收投资和获取利润的目的。
26.房地产评估
就是房地产估价师根据房地产的有关信息、数据,选择合适的估价方法,按照一定的估价程序,最后确定物业的价格和价值的过程。评估的主要方法有:1、市场比较法;2、收益还原法;3、剩余法;4、成本法。
27.银行本票
是付款人将款项交存银行,由银行签发给他凭此可以办理转帐结算或支取现金的票据。有效期为一个月。
28.银行汇票
是汇款人将款项交存当地银行,由银行签发给汇款人持往异地办理转帐结算或支取现金的票据。有效期为一个月。
29.银行支票
是银行的存款人签发给受款人办理转帐或委托开户银行将款项支付给受款人的票据。有效期为十天。
30.确权
确权是依照法律、政策的规定,经过房地产申报、权属调查、地籍勘丈、审核批准、登记注册、发放证书等登记规定程序,确认某一房地产的所有权、使用权的隶属关系和他项权利。
31.权属调查包括内容
房地产权属调查包括:审查土地来源是否合法、占地是否超出规定的范围;审查建筑物有没有加层、超面积、改结构、改用途等情况;确认房地产的权利人、权利性质、权属来源、取得时间、使用年限、权利状况、变化情况和用途、价值、等级、座落等。
声明:本文由入驻焦点开放平台的作者撰写,除焦点官方账号外,观点仅代表作者本人,不代表焦点立场。


