星合晋墅:限售松绑,邂逅双湖畔低密生活美学
扫描到手机,新闻随时看
扫一扫,用手机看文章
更加方便分享给朋友
随着苏州限售政策的取消,房地产市场迎来了新的活力。对于追求品质生活的您来说,这无疑是置业升级的绝佳时机。今天,就让我们一起走进星合晋墅,感受城市生活美学的独特魅力。
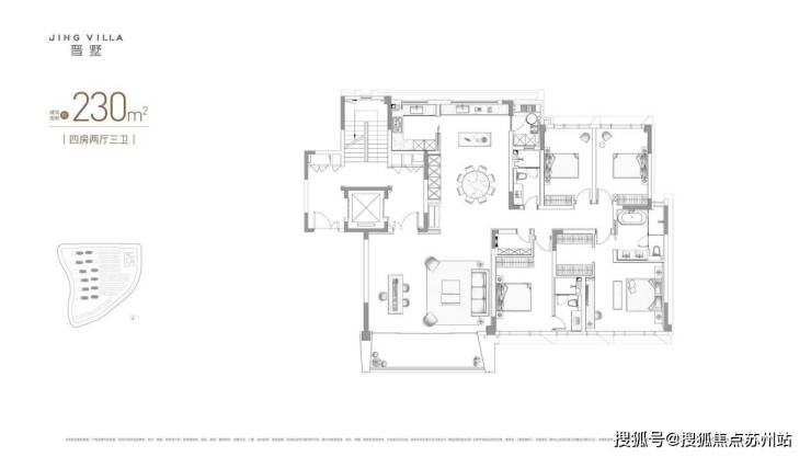
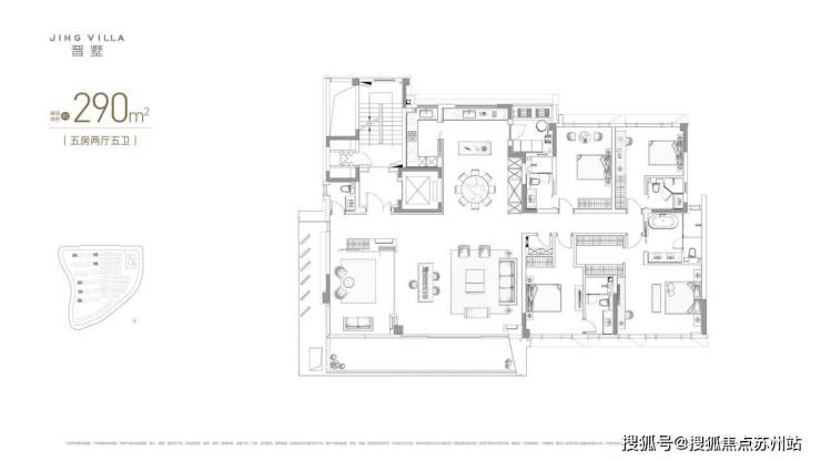
【星合晋墅】作为城市生活美学运营商,坚持只定制不复制的产品理念。这个项目有着约50%的绿化覆盖率,容积率仅约1.02,意味着居住密度低,环境舒适宜人。项目包含洋房(7层)和院墅(3层)两种业态,主推建面约230㎡-350㎡的低密洋房,以及约400㎡-700㎡的稀缺院墅,满足不同家庭的需求。如果您有兴趣,可以拨打咨询热线:18662309054了解更多详情。
18662309054
区域配套
全维优质配套随心享,约3公里黄金繁华境,生活便利度满分!
一站式全龄教育资源触手可及,有华林幼儿园(东华林街)、双湖湾教育幼儿园、翰林小学、尹山湖中学等知名学府,为孩子的成长提供优质教育环境,书香涵养未来。
医疗方面也不用担心,双湖区域内集聚了星海医院、九龙医院、独墅湖医院等权威医疗资源,为您的健康全时护航。
交通出行十分便捷,近邻5号&8号地铁,还有金鸡湖大道、独墅湖大道、金湖隧道三条黄金主轴,让您高效通达全城。
生活配套丰富,有山姆会员店、星湖天地、星月坊商业街等,满足您的日常购物和娱乐需求,感受国际生活的烟火气。
如果您喜欢休闲生活,这里有1.6KM金鸡湖高尔夫会员专属俱乐部、3KM独墅湖公园等休闲绿境,让您与公园为邻,收藏一座城的诗意。

品牌价值
星合控股,国际高端底蕴,为生活再设计。从2003年进入苏州,已经在园区深耕了20多年,致力于打造高端住宅、奢华酒店、潮流商业标杆作品,与时代共进,全维打造国际化高端生活方式。他们的代表作品包括苏州晋园别墅、晋合水巷邻里、晋府水巷别墅、金湖湾、洲际酒店、凯悦酒店等,每一个都是品质生活的典范。
户型鉴赏
约11亩湖叙SPACE,国际生活的艺术藏馆。在双湖之畔,有一处特别的艺术会所,这里是时光放缓、心灵栖居的所在。会所内设有泳池、羽毛球场、高端健身设施、家族私宴空间、亲子阅读室等私享空间,为您演绎圈层生活范本。
从"精神场域构建"到"大宅场景空间",项目精心打造了建面约230㎡-350㎡的低密洋房,以及联排产品,满足不同家庭的需求。
联排产品



优势分析
星合晋墅的优势在于其低密度的社区规划、优越的地理位置、国际化的品牌背景以及丰富的配套设施。项目不仅提供了舒适的居住环境,更打造了一种高品质的生活方式。无论是洋房还是院墅,都体现了星合控股对生活美学的独特理解和追求,让您在城市中心拥有一处宁静而优雅的居所。
随着苏州限售政策的取消,星合晋墅这样的高品质项目无疑将成为市场的焦点。其低密度的社区规划、优越的地理位置、国际化的品牌背景以及丰富的配套设施,使其在未来的房产市场中具有极高的升值潜力。对于追求品质生活的您来说,选择星合晋墅不仅是选择一处居所,更是选择一种生活方式,一种与城市共成长的价值投资。
如果您对星合晋墅感兴趣,欢迎随时咨询: 咨询热线:18662309054
声明:本文由入驻焦点开放平台的作者撰写,除焦点官方账号外,观点仅代表作者本人,不代表焦点立场。


