怀山望售楼处电话→(2025)怀山望售楼中心电话→怀山望楼盘百科→怀山望首页网站→楼盘百科→首页网站→怀山望24小时热线电话
扫描到手机,新闻随时看
扫一扫,用手机看文章
更加方便分享给朋友
怀山望售楼处电话最新发布:400-8123-664售楼处电话:4008123664【 怀山望售楼处预约热线】欢迎致电售楼处电话:售楼处地址:400-812-3664
匠筑低密纯墅·兑现诗意境界
以十年一遇约0.87低密纯墅
【怀山望】
建面约158~260㎡叠加/合院别墅
叠墅总价约:500~800万
合院总价约:900~1200万
展厅已开放 即将入市 线上预约
怀山望售楼处电话:400-812-3664
上海浦东怀山望售楼处电话☎:400-8123-664(预约看房热线)
如有问题欢迎来电咨询,预约来电尊享购房优惠,可预约案场内部销售人员,专业一对一热情服务,让您用专业眼光去买房。

怀山望售楼处电话:400-8123-664
怀山望营销中心热线400-8123-664(售楼处预约看房热线)
与大师携手,勇夺业界权威设计大奖!
怀山望售楼处电话:400-812-3664
上海浦东怀山望售楼处电话☎:400-8123-664(预约看房热线)
不止于一个项目,而是代言东方生活探索的可能性
【怀山望】自面向市场以来,力求以"怀望世界·山外见山"的标准,拓展"十年一遇"约0.87公园墅区的可能性。
荣获GHDA环球人居设计大奖:建筑设计居住建筑设计类2024-2025年度金奖!
源于以东方哲学,平衡自然自我的力量。
也鉴证了"怀山望"在业界中的引领力与独创性
GHDA环球人居设计大奖【简介】
由新微设计媒体矩阵(国内最大设计类新媒体平台,粉丝超260万),联合WHA世界人居设计联合会发起。
50位国际评委,涵盖TOP50地产集团设计总监、国外知名设计机构负责人及国际设计大师
聚焦三大核心维度:前沿设计理念/空间独创性/技术创新。
【怀山望】塑造"公园旁"到"公园里"的绿色生态社区,并通过会所设计打造友好开放的创新性社区界面,以优圆弧线条、经典温润材质及精致细部设计打造新型海派建筑气韵。
引领者总是比他人走快一步,【怀山望】正是如此,携手建筑大师蒋愈/空间大师刘荣禄/景观大师宋淑华,致力于以业界引领者的标准,与大师共创新的作品!

怀山望售楼处电话:400-812-3664
上海浦东怀山望售楼处电话☎:400-8123-664(预约看房热线)
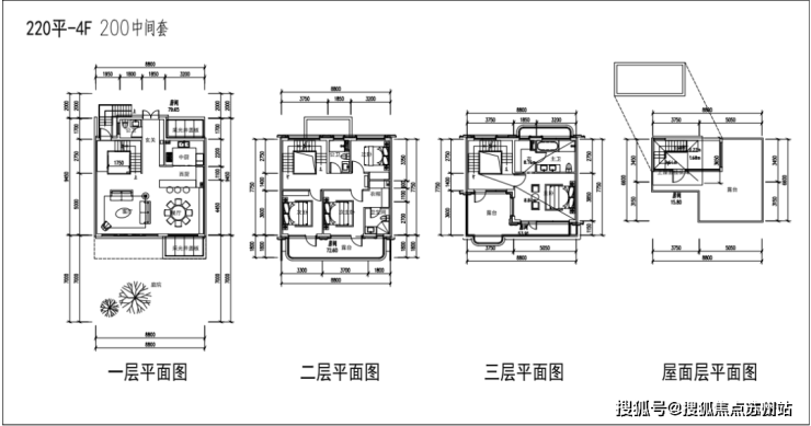
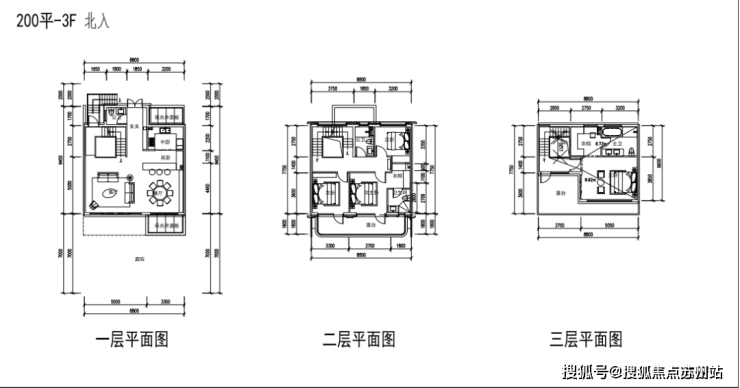
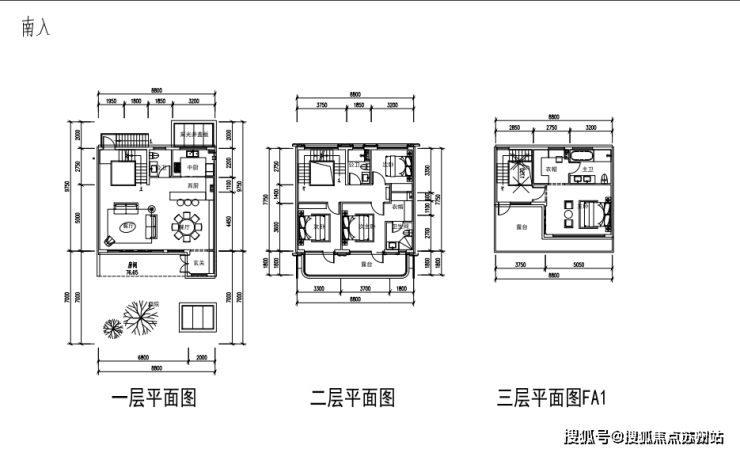
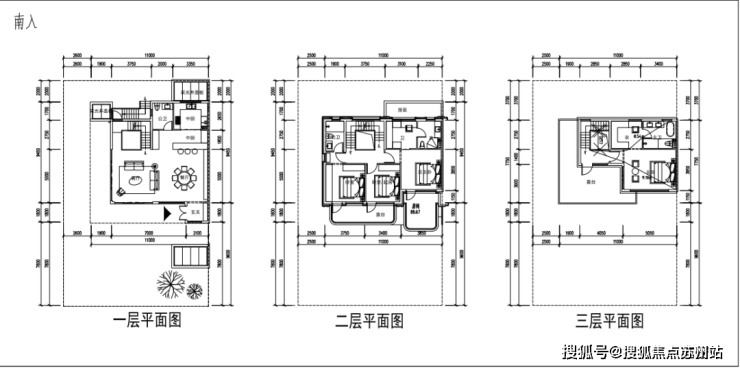
项目推售建面约156-180-200m²叠墅(4-6层)
建面约200-230-260m²联排
可售房源约415套,其中,叠墅332套,联排83套
预计首开176套!
4叠:中套160平、边套200平
下叠均独立电梯入户
上叠1梯2户、双开门
边套面宽9.3米、客厅6米
中间套面宽8米、客厅4.7米
6叠:中套156平、边套180平
边套带东西270度转角大露台
每叠面宽都是8.1米含南套房
联排:200-230-250-260平
地上3层地下1层
三开间朝南大面宽8-11米
厨卫均国际一线品牌
中央空调地暖新风系统
叠墅总价约500-800万
合院总价约900-1200万

展厅持续开放中,有兴趣的伙伴们,赶紧文中扫码,预约销售前来参观吧!
预计9月开放示范区,10月上旬开启入市认购!
怀山望售楼处电话:400-812-3664
上海浦东怀山望售楼处电话☎:400-8123-664(预约看房热线)

叠墅效果图



怀山望售楼处电话:400-812-3664
上海浦东怀山望售楼处电话☎:400-8123-664(预约看房热线)



6层叠墅户型平面图过程稿



怀山望售楼处电话:400-812-3664
上海浦东怀山望售楼处电话☎:400-8123-664(预约看房热线)




联排户型图过程稿



怀山望售楼处电话:400-812-3664
上海浦东怀山望售楼处电话☎:400-8123-664(预约看房热线)



怀山望售楼处电话:400-812-3664
上海浦东怀山望售楼处电话☎:400-8123-664(预约看房热线)





怀山望售楼处电话:400-812-3664
上海浦东怀山望售楼处电话☎:400-8123-664(预约看房热线)
从电梯/室外楼梯到室内(地下室除外),皆为精装一体化交付,装标采用国内外优选品牌。
智能化:华为鸿蒙智家(或同等品牌)
厨电:德国Miele(或同等品牌)
厨卫体系:国际优选品牌
主卫:配备镜柜及美妆冰箱/浴缸(大部分户型)
主卫洁具五金:汉斯格雅/唯宝(或同等品牌)
未端净水设备:怡口/3M(或同等品牌)

怀山望售楼处电话:400-812-3664
上海浦东怀山望售楼处电话☎:400-8123-664(预约看房热线)
空调新风地暖一体化
空调:大金(或同等品牌)
地暖:威能(或同等品牌)
新风:霍尼韦尔(或同等品牌)
叠加客餐厅地面:简一大理石瓷砖(或同等品牌)
联排客餐厅地面:天然大理石
项目信息
项目位于宣桥镇核心区东南侧的别墅组团,紧邻艺泰一品花园,距离16号线野生动物园站约2.8km,整个片区居住氛围浓厚,低密产品堪为当地的名片。
【怀山望】即【艺泰一品花园二期】品质非常值得期待,隔壁一期的艺泰一品花园,在惠南宣桥一直是标杆的存在。
当初就不惜重金力邀原“星河湾”设计团队,由美国WY国际设计机构担当规划设计,由景龙装饰设计公司担当室内设计,依据自然、环境、人文等因素潜心设计创新、打造出具有世界风范的国际级品质,独创南向卧室八角窗设计,270°观景尺度品位尊享;国际先进的酒店式服务理念,提供24小时全天候管家式物业服务;6000平米商业及专属会所......
怀山望售楼处电话:400-812-3664
上海浦东怀山望售楼处电话☎:400-8123-664(预约看房热线)这使艺泰一品花园完全突破区域限制,造就出浦东难得的高品质的精品之作,如今的【怀山望】不仅继续延续往期精工细作的高品质,还推陈出新,势必再塑惠南宣桥新标杆。
取之山水敬之上海
亚洲十大豪宅设计师
苏州桃花源/杭州凤起潮鸣/杭州武林壹号执笔者。
怀山望售楼处电话:400-812-3664
上海浦东怀山望售楼处电话☎:400-8123-664(预约看房热线)
擅用借景手法,将自然环境转化为居住体验,不止于剪裁山水,更是以超尺度展现曲水意境。
环园而置,引水入园
场地双面紧邻公园,达成完全的嵌入感,而约400米园轴与约2100m的集中园景,达成内园与外园呼应,游走其中营造收放感恢弘园林尺度,正是给了曲水入心的写意之境
蒋愈钟情于将社区变成生活场景,融入全龄精神配套,让社区超越单一居住功能,构建复合型社区。
一圆万般,俯仰大千
约1600m²的"禅圆会所",融合健身房/泳池/茶酒吧等功能,以其为圆心,画出诗意生活布局,让精神复合空间,变成精神场域界面。
怀山望售楼处电话:400-812-3664
上海浦东怀山望售楼处电话☎:400-8123-664(预约看房热线)
30x18米的悬浮景观廊架,从约9米的高度凌空而置,让走过曲水的每一位都能在峰谷的穿行中,感受不一样的风光。
蒋愈认为东方建筑的核心在于庭院,需满足"可赏、可游、可用",院里见东方
一墅立心,园中有院
布局上海难得的合院,让庭院成为东方意蕴底色,更丰富的曲径通幽,围绕"禅圆"形成新景观组团,一面是亲切的交流,一面是直击人心的峰谷。在自然过渡的"曲水"营造,松弛有了隐贵质感

取之海纳敬之栋感
百年中国的第一眼是上海
百年上海的第一眼是法式

怀山望售楼处电话:400-812-3664
上海浦东怀山望售楼处电话☎:400-8123-664(预约看房热线)蒋愈在传统与创新的辩证中重塑"东方居住意境",不仅是物理空间营造,更是关于文化认同与当代生活的哲学实践。因而注重在地化的同时,寻求东西方交融的和谐之道。

其更致力于复刻世界传统工法延续文化血脉,当高层现代成为美感的代表词,打造纯墅在有限的细节中寻求共鸣,回应上海海派传承中的精髓﹣﹣法式美学。
高技选新.艺术世纪
基于270°环幕全景舱,不止于窗墙比跃升,细化框线/屋顶及檐下空间,让光影雕琢立面,以三弧造型,同频西方苹果美学的大跨度玻面,通过纷繁的细节,平衡未来与经典。

怀山望售楼处电话:400-812-3664
上海浦东怀山望售楼处电话☎:400-8123-664(预约看房热线)
新独栋感.法式世纪
"三段式+古典黄金比例+合院孟莎顶",在轻重之间,找到美学与尊贵的平衡,纵横"骨架"提供分户感,以层台点缀变化,创造韵律。多色拼贴多材运用,细腻铝板手工感于石材的点缀中流淌,一眼震撼独栋感,更是质璞艺术感。
弧的境界·峯峦世纪
同频中心豪宅的高技墅造,以曲面重定生活边界,立面全采用Low-E三玻两腔中空玻璃,创造更静谧境界,展现更舒展的风景交融,三弧立面,会所圆弧廊架,曲水走向,以三位一体的弧线手法,写意出"峯峦曲水画廊"。

成品车库·高定精装设计
地库地面采用无机水磨石铺装;入口顶部设计不锈钢镂空星空顶与发光灯膜;门厅萤石壁灯内嵌墙面,增添精致细节与柔和层次。
怀山望售楼处电话:400-812-3664
上海浦东怀山望售楼处电话☎:400-8123-664(预约看房热线)
酒店式环岛·车马厅仪式·T台感车道
车马厅设环形车道,诠释高端住宅的非凡品味,定制渐进式入户仪式与灯光韵律。
怀山望售楼处电话:400-812-3664
上海浦东怀山望售楼处电话☎:400-8123-664(预约看房热线)
地下入户光厅,绘就光的质感叙事
叠墅入口光厅墙面运用金属饰面与仿石岩板,金属的精致与岩板的质感相得益彰。六叠首层电梯厅天花与地面采用弧形元素;墙面岩板搭配不锈钢线条,增添细节与品质。
【怀山望】与蒋愈,因怀淌理想,在"十年一遇"约0.87的低密墅区相遇,让"生活容器"变成"诗意容器",那是舒展,更是予人更丰富的想象。
怀山望售楼处电话:400-812-3664
上海浦东怀山望售楼处电话☎:400-8123-664(预约看房热线)
被誉为"江南最美米其林餐厅"之一——如院餐厅设计师及创始人﹣﹣刘荣禄。
将南宋传统木阁元素与现代生态建筑结合,运用低矮窄长的窗景截取室外植物园片段,营造"入卷如画"的东方意境。
怀山望售楼处电话:400-812-3664
上海浦东怀山望售楼处电话☎:400-8123-664(预约看房热线)宋淑华"凭爱意将西湖短暂私有"以"虽由人作,宛自天开"为核心理念,通过亭台楼阁、游廊花木等元素,营造出"移步换景"的沉浸式园林体验,将西子湖四季酒店变成杭州名片。
怀山望售楼处电话:400-812-3664
上海浦东怀山望售楼处电话☎:400-8123-664(预约看房热线)
怀山望
心有山水自成境
浦东.0.87低密纯墅.公园墅区立序作品入市在即!
生活配套
交通方面:项目距离16号野生动物园站约2.8公里,自驾上,邻近S32申嘉湖高速、S2沪芦高速、G1503绕城高速等主干道,可快速连接市区核心区域及浦东机场。周边还有南园1路、惠南3路、南新专线、1095路、1069路等数辆公交可供选择。

怀山望售楼处电话:400-812-3664
上海浦东怀山望售楼处电话☎:400-8123-664(预约看房热线)商业方面:周边约5公里的范围内分布着大润发、禹悦汇等综合购物中心,可提供购物休闲的多样化选择。

怀山望售楼处电话:400-812-3664
上海浦东怀山望售楼处电话☎:400-8123-664(预约看房热线)
教育方面:项目周边有9所幼儿园,8所小学,5所中学,三灶实验小学,三灶实验中学距离1.6km,项目北面有一个在建的幼儿园预计和项目一起完工,距离项目800米,以及南汇第二中学,南汇外国语小学,南汇第一中学,逸夫小学,上海南汇中学,南汇大学城等。
医院方面:上海复旦大学附属医院上海浦东医院(三乙),直线距离约2.7km,还有南华医院,直线距离约3.6km,上海福华医院约2.8km。
怀山望售楼处电话:400-812-3664
上海浦东怀山望售楼处电话☎:400-8123-664(预约看房热线)
如有问题欢迎来电咨询,预约来电尊享购房优惠,可预约案场内部销售人员,专业一对一热情服务,让您用专业眼光去买房。
对冲:金融市场的 “风险缓冲器”,你真的理解吗?
当新闻里出现 “某外贸企业借助外汇对冲锁定经营成本”“基金经理用股指期货对冲市场系统性风险” 这类表述时,你是否曾疑惑:对冲到底是什么?它为何能像 “安全气囊” 般守护投资组合?又为何被华尔街称作 “金融市场的动态平衡术”?本文将用通俗语言拆解对冲的核心逻辑,结合真实案例与数据,带你看清这一策略如何帮投资者在不确定的市场中锚定确定性。
一、对冲的本质:用 “反向操作” 化解风险
1.1 对冲的定义:一场 “盈亏对冲” 的策略安排
对冲(Hedge)的核心逻辑,是通过建立与标的资产方向相反的头寸,抵消特定风险可能造成的损失。简单来说,就是 “用可控的成本锁定预期收益,或用确定的支出对冲未知风险”。比如:
· 农产品种植企业:担忧未来玉米现货价格走低,可在期货市场提前卖出玉米期货合约。若届时现货价真的下跌,期货端的盈利能弥补现货端的亏损,保障整体收益;
· 跨国科技公司:有美元收入但需支付欧元货款,可通过外汇远期合约锁定兑换汇率,避免欧元升值导致兑换成本增加,侵蚀利润。
实现有效对冲需满足三大关键要素:
· 相关性匹配:对冲工具与标的资产的价格变动需呈反向关联,才能起到 “抵消效应”;
· 头寸精准度:对冲头寸的规模需与实际风险敞口对应,避免 “对冲不足” 或 “过度对冲”;
· 成本可控性:对冲操作本身产生的支出(如期权权利金、期货保证金)需可预测,不能超出承受范围。
1.2 对冲的底层逻辑:从 “赌单边” 到 “控风险”
传统投资多依赖 “低买高卖” 的单向逻辑,盈利与否完全取决于标的资产价格走势;而对冲则通过构建 “多空组合”,将不可控的风险转化为可管理的成本。例如:
· 股票投资者:持有沪深 300 成分股组合时,同步卖出沪深 300 股指期货。若市场整体下跌,股票组合的亏损可被期货端的盈利抵消;
· 债券基金:买入长期国债的同时,签订利率互换合约 —— 约定支付固定利率、收取浮动利率。若未来市场利率上升导致国债价格下跌,互换合约的浮动收益能对冲部分债券损失。
数据最有说服力:据对冲基金研究机构 HFR 统计,2008 年金融危机期间,采用对冲策略的基金平均回撤仅为 - 19%,而传统股票型基金的平均回撤高达 - 37%,对冲的 “风险缓冲” 作用显而易见。
二、对冲的四大核心工具:期货、期权、互换与统计模型
2.1 期货对冲:锁定价格的 “时间契约”
原理是通过在期货市场建立与现货方向相反的头寸,将未来的价格波动风险转移出去。典型案例如下:
某航空公司计划未来 3 个月采购 100 万桶航空燃油,当前油价为 80 美元 / 桶。为避免油价上涨推高成本,公司在期货市场买入 100 万桶燃油期货合约。若 3 个月后油价涨至 90 美元 / 桶,期货端可盈利(90-80)×100 万 = 1000 万美元,恰好抵消现货采购成本的上涨,实现 “成本锁定”。
这类对冲工具最适合大宗商品生产商、贸易商、能源企业等 —— 他们日常面临原材料或产品价格波动风险,期货能帮其提前锁定利润空间。
2.2 期权对冲:以小博大的 “风险保险”
核心是通过支付少量权利金,获得未来按约定价格买卖标的资产的权利(而非义务),相当于给资产上了 “保险”。例如:
某重仓科技股的投资者,持有 10 万股特斯拉股票(当前股价 200 美元 / 股),担心短期股价回调风险。他可买入 3 个月期、执行价 190 美元的看跌期权,支付权利金 5 美元 / 股(总成本 50 万美元)。若股价跌至 180 美元,期权端可盈利(190-180)×10 万 = 100 万美元,扣除权利金后净盈利 50 万美元,能部分覆盖股票组合的亏损。
期权对冲的最大优势的是 “损失有限、收益灵活”:最坏情况仅损失权利金,若市场走势符合预期,还能保留盈利空间。
2.3 互换合约:定制化的 “风险交换协议”
本质是交易双方约定在未来一段时间内交换现金流,常见于利率、汇率、信用风险的对冲,可根据需求 “量身定制”。比如:
某制造企业借入一笔 5 年期浮动利率贷款,利率为 “LIBOR+2%”。为避免未来 LIBOR 上升导致融资成本增加,企业与银行签订利率互换合约:约定企业每月支付 4% 的固定利率,同时收取银行支付的 LIBOR 浮动利率。若后续 LIBOR 升至 3%,企业实际融资成本为 “4%+2%-3%=3%”,远低于未对冲时 “3%+2%=5%” 的成本。
常见的互换类型包括利率互换、货币互换、信用违约互换(CDS)等,广泛应用于企业债务风险管理。
2.4 统计对冲:数据驱动的 “量化套利”
依托历史数据建模,寻找资产间价格的 “常态关联”,当价差偏离合理区间时,通过多空操作赚取回归收益。例如:
量化基金通过分析发现,股票 A 与股票 B 的价格长期高度相关(相关系数 0.9),且价差通常围绕均值波动。当两者价差超过历史均值 2 个标准差时,基金便会 “做多价格被低估的股票、做空价格被高估的股票”;待价差回归均值时平仓获利。据行业研究数据,这类配对交易策略的年化收益可达 8%-12%,夏普比率(衡量风险调整后收益的指标)超过 2.0,风险收益比优于不少传统策略。
实现统计对冲需借助回归分析、协整检验、机器学习模型等工具,对数据处理和模型构建能力要求较高。
三、对冲的实战场景:从个人投资到企业风险管理
3.1 个人投资者:用对冲降低组合波动
对持有股票组合的个人投资者而言,对冲的核心目标是 “抵御市场系统性下跌风险”,常见策略包括:
· 股指期货对冲:若担心 A 股整体下跌,可卖出与持仓市值匹配的沪深 300 或中证 500 股指期货合约,对冲指数下跌带来的亏损;
· 期权保护:买入对应指数或个股的认沽期权,支付少量权利金,为组合设置 “下跌止损线”;
· 跨资产配置:同时持有股票与债券 —— 股票涨时债券可能跌,股票跌时债券常避险,利用资产间的负相关性自然对冲风险。
据《上海证券报》统计,2022 年 A 股市场波动率达 25%,采用对冲策略的混合型基金平均回撤仅为 - 8%,远低于普通股票型基金 - 22% 的平均回撤,可见对冲对 “平滑收益曲线” 的作用。
3.2 企业风险管理:对冲是 “生存必修课”
对面临多维度风险的企业(尤其是跨国企业、大宗商品相关企业),对冲是保障经营稳定的关键:
· 外汇对冲:出口企业通过远期外汇合约锁定外币收入的兑换汇率,避免汇率波动吞噬利润;
· 利率对冲:有浮动利率债务的企业,通过利率互换将浮动利率转为固定利率,稳定融资成本;
· 商品对冲:原材料依赖进口的企业,在期货市场提前买入对应商品期货,锁定采购成本。
案例佐证:2022 年欧元兑美元汇率波动率达 12%,欧洲央行数据显示,采用外汇对冲的欧洲出口企业,其海外利润波动幅度比未采取对冲的企业减少 40%,经营稳定性显著提升。
3.3 金融机构:对冲基金的 “绝对收益” 逻辑
对冲基金的核心竞争力,就是通过各类对冲策略追求 “无论市场涨跌都能盈利” 的绝对收益,常见策略包括:
· 市场中性策略:同时做多低估股票、做空高估股票,剥离市场整体波动影响,赚取个股价差收益;
· 事件驱动策略:围绕企业并购、重组、业绩预告等事件布局,通过对冲市场风险,捕捉事件本身带来的股价波动机会;
· 全球宏观对冲:根据全球经济周期(如利率变化、通胀趋势)调整股票、债券、商品、外汇的配置比例,对冲单一市场风险。
HFR 数据显示,2000-2023 年,全球对冲基金行业年均回报率约 6.5%,波动率仅 8%;同期标普 500 指数年均回报率约 10%,但波动率高达 18%—— 对冲基金以更低的波动实现了相对稳定的收益。
四、对冲的争议与边界:并非 “万能解药”
4.1 对冲的局限性
对冲虽能控风险,但并非毫无代价,其局限性主要体现在三方面:
· 成本侵蚀收益:期权权利金、期货交易手续费、互换合约费用等,会直接减少投资收益;若市场未出现预期风险,对冲成本反而会成为 “额外支出”;
· 模型存在风险:统计对冲依赖历史数据构建模型,若市场结构发生变化(如政策调整、行业洗牌),模型可能失效,导致对冲效果不及预期;
· 机会成本较高:过度对冲会限制收益空间 —— 比如完全对冲的股票组合,市场上涨时也无法享受盈利,收益可能趋近于无风险利率。
4.2 对冲的适用边界
并非所有场景都适合对冲,需结合风险类型与投资目标判断:
· 风险类型:对冲对系统性风险(如市场整体下跌、利率大幅调整)效果显著,但对非系统性风险(如个股财务造假、企业破产)作用有限;
· 投资目标:追求 “绝对收益、低波动” 的投资者(如养老资金、稳健型基金)更适合对冲;而追求长期高成长的投资者(如创业投资、科技股基金),往往愿意承受短期波动以换取更高回报,对冲需求较低。
五、结语:对冲 —— 在不确定性中锚定确定性
对冲的本质,是金融市场中 “用可控代价应对未知风险” 的智慧:它不追求 “高收益”,而是通过提前布局,将不可预测的风险转化为可管理的变量。它不是投机工具,也不是盈利引擎,而是投资者在波动市场中守护资产的 “风险缓冲器”。
免责声明:本文内容仅作信息交流之用,不构成任何投资建议。市场有风险,投资需谨慎。对冲策略涉及专业金融知识,需结合个人风险承受能力、市场环境,并在专业指导下谨慎运用。
声明:本文由入驻焦点开放平台的作者撰写,除焦点官方账号外,观点仅代表作者本人,不代表焦点立场。


