规划确定!洋房+叠墅!断供已久!郭巷再爆纯新盘!两种户型首次曝光
扫描到手机,新闻随时看
扫一扫,用手机看文章
更加方便分享给朋友
在拿地一年半以后,位于郭巷板块的天鸿伟业&吴城置业97号地块项目规划批后发布了!

从规划来看,项目打造的是洋房和叠墅,这也是板块内比较少的产品类型。
位置上来看,项目位于郭巷板块,区域内目前在售也比较少,等了一年半以后规划才出炉,这个项目值得吗?

规划首曝!拿地已经一年半
天鸿伟业&吴城置业97号地块项目,即,苏地2023-WG-97号,位于吴中区郭巷街道东进路北侧、尹中路东侧,城镇住宅用地,占地面积68627.09平,是2023年12月23日,天鸿伟业&吴城置业以底价159215万元竞得,成交楼面价14500元/平。

天鸿伟业&吴城置业97号地块项目为城镇住宅用地,占地面积68627.09平,地上计容建筑面积为109803.32平,总建筑面积174093.26平,容积率1.6。
根据规划信息,项目拟建26栋住宅。

1,该项目的容积率为1.6,产品主要是叠墅和洋房;
2,该项目的产品为11栋叠墅和15栋洋房,其中洋房占比比较高,小区体量上来看也是比较大的;
3,项目拿地已经超过一年半,速度上是比较慢的,不过板块内目前也基本上没什么项目在售;
关于更多苏州楼市的楼盘信息,或者您想和其他购房小伙伴一起咨询讨论,欢迎扫描下方二维码,添加小胖君,加入小胖看房团~

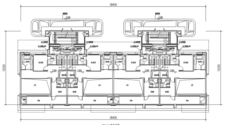
改善型的户型配置
项目公示了19#、13#的户型标准层示意图。










四房两卫的房屋套型;
四开间朝南,三联大阳台;
主卧带衣帽间和明卫;
北面独立生活阳台;

位置不错!近轨交
天鸿伟业&吴城置业97号地块项目,位于吴中区郭巷街道东进路北侧、尹中路东侧,周边来看,目前还是比较一般的,周边的工厂等还是比较多的,居住氛围不算很浓。
从区域内用地规划来看,未来还是一个居住片区。
北面是郭新河,东面是尹西三村,南面是前进路,西面是尹中路。

周边配套来看,目前还是主要依赖东面的尹山湖板块的。
交通上,南面有7号线尹山站,往东一站可换乘2号线,往西三站可换乘4号线。
自驾上面,小区西面就是吴东快速路,南面1.4公里是南湖快速路,可以直接连通独墅湖高教区。
大型商业上面,小区北面有旭辉美澜城的自带商业设施,可以满足日常的生活需求,大型商业上面,比较近的就是尹山湖板块的长申、尹山歌林公园和阳光天地等。咨询热线:4008800-736
声明:本文由入驻焦点开放平台的作者撰写,除焦点官方账号外,观点仅代表作者本人,不代表焦点立场。


