快讯!高铁新城首个别墅盘,绿城出品,面积约160-315㎡
扫描到手机,新闻随时看
扫一扫,用手机看文章
更加方便分享给朋友
苏州高铁新城核心区迎来首个低密墅级住区——苏地2025-WG-Z04号地块项目规划近日正式公示。该地块由苏州宏腾&江苏汇欣鑫于2025年3月以总价5.35亿元竞得,成交楼面价15828元/㎡,溢价率5.52%,为板块近4年首宗溢价成交宅地。

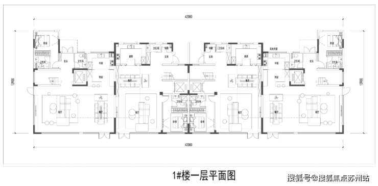
Z04项目容积率仅1.4,规划打造7栋3F合院、3栋6F叠加别墅及2栋11F四代洋房,户型面积段涵盖160-315㎡,定位高端改善市场。

👇预约了解👇咨询热线:18662309054
01

合院:(280-315㎡)采用大横厅+中西双厨设计,边户连通南侧花园,中间户南北双入户;

叠加别墅:(约250㎡)外立面大面积玻璃幕墙搭配延伸露台,通透性极佳;

四代洋房:(160-190㎡)采用奇偶错层露台,每户配置花园,外立面现代感突出。
装修标准:6层以上住宅须全装修交付,标准不低于2000元/㎡。
绿城代建:由绿城操刀设计,品牌加持提升产品力,外立面与景观规划均体现高品质。
02

地块位于高铁新城南部成熟片区,紧邻苏州北站、轨交2号线大湾站,一站即达高铁枢纽;周边集聚南师大苏州实验学校、吾悦广场、圆融广场、高铁新城文体中心(在建)等教育、商业及文体配套,生活便利度突出。
03

产品稀缺性
:Z04为板块唯一纯低密别墅盘,填补高端市场空白,与周边以高层、小高层为主的竞品形成显著差异。
绿城品牌溢价
:绿城代建加持,外立面大面积玻璃幕墙、错层露台设计及2000元/㎡精装标准,预计品质溢价显著。
售价潜力
:当前周边次新房均价约3.3万/㎡,而Z04的墅类产品(尤其合院)溢价空间更大。参考苏州同类低密项目(如园区湖东别墅售价超5万/㎡),Z04入市后或突破3.5万/㎡,挑战板块新高。
04
Z04号地块凭借稀缺产品力、绿城品牌背书及成熟配套,有望重塑高铁新城高端住宅价值标杆。若以合院3.8万/㎡、洋房3.3万/㎡测算,项目总货值或达15亿元,成为区域改善市场“现象级”产品。
咨询热线:18662309054
声明:本文由入驻焦点开放平台的作者撰写,除焦点官方账号外,观点仅代表作者本人,不代表焦点立场。


