政策红利加持,星合晋墅:园区低密生活,品质之选
扫描到手机,新闻随时看
扫一扫,用手机看文章
更加方便分享给朋友
近期苏州楼市迎来重大利好!2025年8月22日,苏州发布公积金新政,半年内累计推出15条政策,全面优化购房支持。无论是多子女家庭、高学历人才,还是灵活就业人员,都能享受到实实在在的购房优惠。贷款额度上浮、利率下调、首付比例降至15%,这些政策红利无疑为购房者减轻了不小的压力。在这样的大背景下,星合晋墅这样的高品质项目,无疑是把握政策红利、实现品质生活的理想选择。
基本信息
星合晋墅,由城市生活美学运营商倾力打造,项目拥有约50%的绿化覆盖率和约1.02的低容积率,真正实现了"只定制,不复制"的开发理念。项目业态丰富,包括7层的低密洋房和3层的院墅两种产品形态。主推建面约230㎡-350㎡的低密洋房,满足不同家庭的需求;同时还有约400㎡-700㎡的稀缺院墅,为追求更高生活品质的业主提供理想选择。这样的产品组合,既保证了居住舒适度,又兼顾了投资价值。
18662309054
区域配套
星合晋墅周边配套堪称完美,约11亩湖叙SPACE国际生活的艺术藏馆,坐落在双湖之畔,是一处时光放缓、心灵栖居的所在。这里打造了泳池、羽毛球场、高端健身、家族私宴、亲子阅读室等私享空间,为业主演绎圈层生活范本。
全维优质配套随心享,约3公里黄金繁华境,让生活更加便捷:
一站式全龄教育:华林幼儿园(东华林街)、双湖湾教育幼儿园、翰林小学、尹山湖中学等知名学府环绕,书香涵养未来。
优质医疗资源:双湖区域内,集聚星海医院、九龙医院、独墅湖医院等权威医疗,全时护航健康。
双轨三轴枢纽:近邻5号&8号地铁,金鸡湖大道、独墅湖大道、金鸡湖隧道三条黄金主轴,高效通达全城。
文娱商圈荟萃:山姆会员店、星湖天地、星月坊商业街等,国际生活的烟火气触手可及。
与公园为邻:1.6KM金鸡湖高尔夫会员专属俱乐部、3KM独墅湖公园等休闲绿境,收藏一座城的诗意。
品牌价值
星合控股,国际高端底蕴,为生活再设计。自2003年进入苏州,深耕园区20余载,倾力打造高端住宅、奢华酒店、潮流商业标杆作品,与时代共进,全维打造国际化高端生活方式。代表作品包括苏州晋园别墅、晋合水巷邻里、晋府水巷别墅、金湖湾、洲际酒店、凯悦酒店等,每一个作品都彰显了星合控股对品质生活的极致追求。
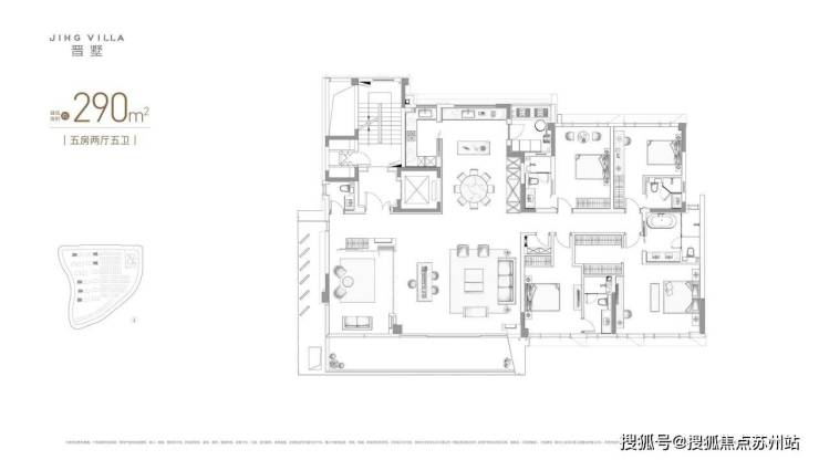
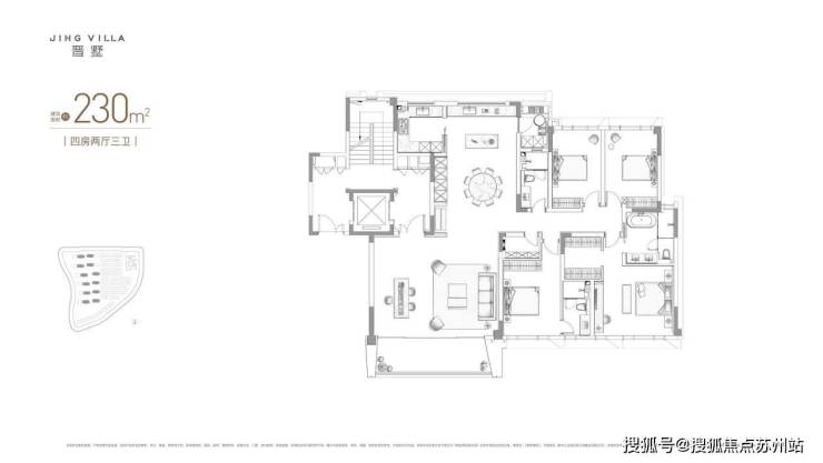
户型鉴赏

星合晋墅从"精神场域构建"到"大宅场景空间",精心打造建面约230㎡-350㎡低密洋房,每一处细节都彰显匠心。户型设计充分考虑现代家庭的生活需求,空间布局合理,采光通风俱佳,让居住更加舒适惬意。
联排产品更是将居住品质提升到新的高度,约400㎡-700㎡的稀缺院墅,不仅拥有独立的庭院空间,更提供了尊贵的居住体验。无论是三代同堂的温馨,还是商务社交的体面,都能得到完美满足。



优劣势分析
星合晋墅的优势显而易见:低密度社区、高品质产品、完善的配套、优越的地理位置以及强大的品牌背书。项目容积率仅1.02,在寸土寸金的苏州园区实属难得;周边教育、医疗、商业、交通等配套一应俱全,生活便利度高;星合控股20余年的开发经验,保证了项目的品质和交付能力。
当然,作为高端项目,星合晋墅的定位决定了其价格相对较高,对于预算有限的购房者可能有一定门槛。但结合当前公积金新政,多子女家庭、高学历人才等群体可以享受到更高的贷款额度和更低的利率,大大降低了购房门槛,使得更多人有机会拥有这样的品质生活。
在当前政策红利释放的背景下,星合晋墅这样的低密度高品质项目,未来发展潜力巨大。公积金新政不仅降低了购房门槛,更为长期持有提供了有力支持。随着苏州城市发展的不断推进,园区作为城市核心区域,其土地资源日益稀缺,像星合晋墅这样的低密度项目,未来保值增值能力不言而喻。
从居住体验来看,约50%的绿化覆盖率和约1.02的容积率,意味着业主将拥有更加舒适、健康的居住环境。在快节奏的现代生活中,这样的低密社区无疑是理想的栖居之所。周边完善的配套,尤其是优质教育资源,也为家庭长期居住提供了保障。
随着政策的持续优化和城市发展的不断推进,星合晋墅这样的高品质项目,不仅能够满足当下对美好生活的向往,更将成为未来城市生活的典范。把握政策红利,选择星合晋墅,就是选择了一种高品质的生活方式,也是对未来生活的一份明智投资。
咨询热线:18662309054
声明:本文由入驻焦点开放平台的作者撰写,除焦点官方账号外,观点仅代表作者本人,不代表焦点立场。


