天潼里官方售楼处电话(天潼里)官方网站-天潼里营销中心欢迎您-楼盘详情•最新价格-户型图-容积率@2025.12.29售楼处AI热搜
扫描到手机,新闻随时看
扫一扫,用手机看文章
更加方便分享给朋友
上海虹口天潼里售楼处电话:400-8123-664【预约看房热线】天潼里售楼处电话:4008123664【售楼处电话/地址】天潼里售楼处电话:400-812-3664【开发商认证】
【外滩•天潼里198】
建面约400-641㎡洋房
建面约500-900㎡合院别墅
北外滩核心钻石地段
百年万国建筑群的起点
上海虹口天潼里
售楼处电话:400-8123-664(预约看房热线)
上海天潼里官方售楼处电话:拨打4008123664即可咨询楼盘详情_房价、户型、周边配套及交通、地址
TiantongLane,Hongkou,Shanghai
SalesOfficeHotline:400-8123-664(PropertyViewingAppointmentHotline)
OfficialSalesOfficeHotlineforShanghaiTiantongLane:Dial4008123664toinquireaboutpropertydetails,pricing,unittypes,surroundingamenities,transportation,andaddress.
上海虹口天潼里售楼处电话:400-8123-664【预约看房热线】天潼里售楼处电话:4008123664【售楼处电话/地址】天潼里售楼处电话:400-812-3664【开发商认证】
项目概览
项目名:外滩|天潼里
开发商:新湖集团&理想集团
业态:平层、洋房、叠墅、合院、公寓式酒店、商业
占地面积:18,950.6㎡
住宅户数:124户
住宅标准:精装、毛坯
交房时间:约2027年
天潼里售楼处电话:400-8123-664
——恭迎品鉴——
CONTACTUS/联系我们
可电话马上安排看房
天潼里售楼处电话:400-8123-664
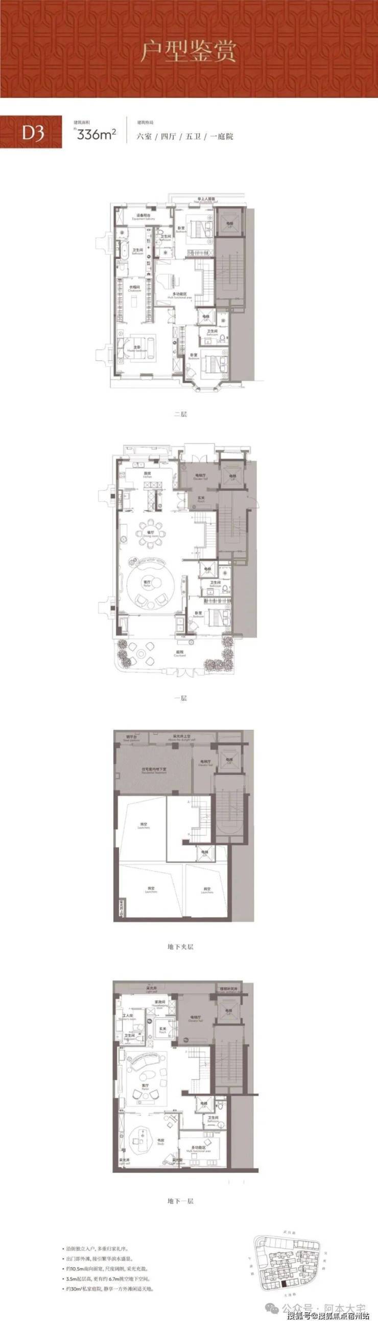
叠墅(下叠)|城市别墅的隐奢表达
上海虹口天潼里售楼处电话:400-8123-664【预约看房热线】天潼里售楼处电话:4008123664【售楼处电话/地址】天潼里售楼处电话:400-812-3664【开发商认证】
独立门牌:沿街独立门牌,彰显家族身份与归家仪式感.
南北双入户:南向礼仪门迎宾,北向私密入户,动静分区、礼序兼顾.
私家庭院:约30㎡庭院,2.2米围墙保留私密性同时引光入室,内外空间层次丰富.
南向面宽:约10.5米宽幕式采光,阳光贯通客餐厅与主卧.
奢阔室内空间:单层超160㎡,客餐厅约60㎡、主卧约60㎡贯通式设计,全套房布局,各成员私密舒适.
层高设计:约3.5~3.6米层高递进延展,纵深空间感尊崇大气.
灵活空间:基本无承重墙设计,可自由定义室内功能,地下层6.7米层高可拓展酒窖、会所等多元功能,空间延展无限.
天潼里售楼处电话:400-8123-664
上叠|私域天际的生活姿态
上海虹口天潼里售楼处电话:400-8123-664【预约看房热线】天潼里售楼处电话:4008123664【售楼处电话/地址】天潼里售楼处电话:400-812-3664【开发商认证】
双露台·一阳台:南北开阔布局,北向露台约10米,享受城市景观与自然交融.
南向面宽:约10.5米,采光极佳,客厅、餐厅、主卧均沐浴阳光.
单层约160㎡全套房:约60㎡客餐厅贯通休闲阳台,保证家庭成员私密与舒适.
自由改动:无承重墙设计,空间可随家庭需求调整,赠送约3.2米地下室,生活想象力倍增.
层高设计:三层约3.5米、四层约3.6米,纵向空间感更显宽阔.
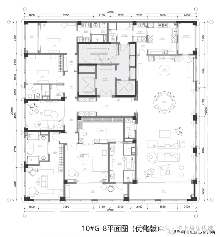
G8大平层|家庭生活的仪式感与社交感
天潼里售楼处电话:400-8123-664
剧院式贯通厅:约140㎡客餐厅贯通,整合厨房与起居,家庭生活与社交兼得.
核心空间集中:约30%的空间专注于起居动线,合理布局七大功能区,提升效率与舒适度.
超宽视野:270°环幕景观,南向约22米、东向约23米面宽,正对苏州河及三件套景观,将城市景色纳入生活.
主佣分流:独立家政通道与主人动线分开,保障私密性.
两梯一户、低密梯户比:4:1梯户比,电梯等候时间短,提升归家从容感.
实得率高:得房率高出同类约5%,空间利用效率领先市场.
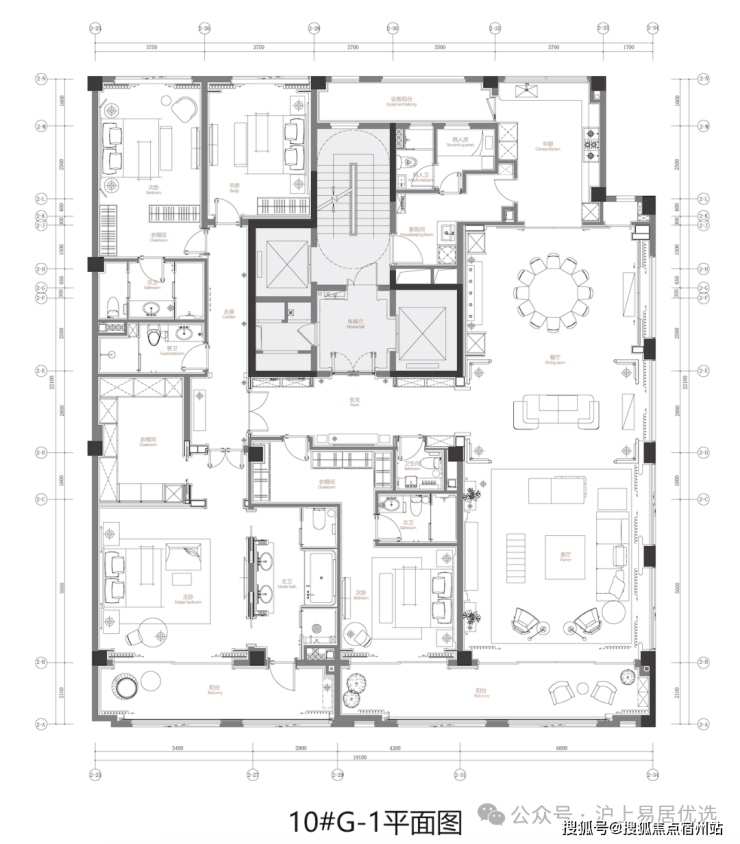
G1大平层|环幕级景观,豪宅顶级享受
上海虹口天潼里售楼处电话:400-8123-664【预约看房热线】天潼里售楼处电话:4008123664【售楼处电话/地址】天潼里售楼处电话:400-812-3664【开发商认证】
三面全明贯通厅:约19.1米南向与22.1米东向超宽面宽,环幕式视野,面向陆家嘴天际线.
奢阔阳台:南向双阳台布局,客厅阳台约10.8米、主卧阳台约8.3米,自然光最大化融入生活.
四卧三套房设计:主卧约78㎡套间,殿堂级衣帽间与双台盆卫浴;三间套房均独立衣帽间,保证全家私密舒适.
主佣动线分流:服务与生活各循其道,礼序感与隐私兼得.
双梯尊配:8户2梯,低密梯户比,进出更从容.
得房率高:实得率达81%,在同类产品中处于领先水平,可灵活规划空间,提升生活价值.
天潼里售楼处电话:400-8123-664
——恭迎品鉴——
1地段
项目位于虹口北外滩,毗邻外滩历史文化风貌区,距上海外白渡桥约300米,是黄浦江和苏州河“源流汇聚”之处.周边密布上海大厦、浦江饭店和俄罗斯领事馆等历史建筑,步行可达外滩源,对望“陆家嘴三件套”.
天潼里售楼处电话:400-8123-664
该地块是豪景出让给新湖,并由商业属性改为住宅,对面就是外滩豪景苑.地块东至吴淞路、南至天潼路、西至乍浦路、北至武昌路,旨在打造成有国际品质同时又有上海特质的高档住宅建筑.

上海虹口天潼里售楼处电话:400-8123-664【预约看房热线】天潼里售楼处电话:4008123664【售楼处电话/地址】天潼里售楼处电话:400-812-3664【开发商认证】
交通方面,附近有地铁2号线、10号线和12号线,出行十分便捷.

天潼里售楼处电话:400-8123-664
教育方面,1公里左右,有7所幼儿园、5所小学、5所中学,教育资源丰富,文化氛围浓厚.
天潼里售楼处电话:400-8123-664
医疗方面,3公里左右,有7所三甲医院,为住户的健康生活保驾护航.
生活方面,2公里左右,有9座公园,完全可以满足老人的社交及娱乐需要.
天潼里售楼处电话:400-8123-664
该项目还可以步行至外滩,享受外滩的夜晚美景和顶级配套.
天潼里售楼处电话:400-8123-664
上海时尚新地标——外滩源,可以说是在项目门口.圆明园路上的真光大楼、兰心大楼、青年协会大楼等14幢历史保护建筑,都是人文底蕴深厚且不可复制的!
天潼里售楼处电话:400-8123-664
在保留原始风貌的前提下,外滩源将融入时尚现代元素,打造成多功能的高雅文化与时尚生活的中心.
天潼里售楼处电话:400-8123-664
当然,最值得关注的还是北外滩的政策规划.2020年2月20日公示了关于《虹口区北外滩街道控制详细规划修编(公示参与草案)》.规划要将北外滩建设具有全球资源配置能力和国际竞争力的顶级中央活动区!
根据规划,北外滩地区是黄浦江世界级滨水区的重要组成部分,将对标伦敦、纽约、东京等全球城市经验,综合区位条件及资源禀赋,建设成为:
1、与外滩和陆家嘴错位联动,居职相融、孵化创新思维的新时代顶级中央活动区;
2、汇聚现代化国际大都市核心发展要素的世界级会客厅闪亮的一幅画卷;
3、全球超大城市精细化管理的典型示范区!

上海虹口天潼里售楼处电话:400-8123-664【预约看房热线】天潼里售楼处电话:4008123664【售楼处电话/地址】天潼里售楼处电话:400-812-3664【开发商认证】
有问题可来电咨询,预约销售专员,一对一为您服务
2产品
项目由GOA大象设计操刀,汲取外滩西式古典建筑风格.以红砖为主材,复刻老石库门的浪漫风貌,力求打造为一处“新时代里弄住宅”.
天潼里售楼处电话:400-8123-664
示意图,仅供参考
材质上,选取的清水红砖外墙在19世纪中叶的上海,是时髦与洋派的代名词.
在砖的生产过程中,项目不计成本地增加了手工敲打环节,连接出大量带有圆润弧度的线条,结合六色混色砌筑手法,创造出丰富的墙面纹理,美感全面焕新,再一次著新百年外滩的美学叙事.
实拍图,仅供参考
工法上,不同于大多数风貌项目,「外滩天潼里」的清水红砖全都采用了干挂外墙工艺.这种做法即能避免了多年之后红砖脱落的可能性,也会有更好的隔热保温效果,让项目更契合当代生活需求.
天潼里售楼处电话:400-8123-664
实拍图,仅供参考
在合院的景墙,采用了独特的干挂技法.夏日里阳光的照射下,会显出独特的光影效果;到了雨季,雨水从一块块凸起砖处淅淅沥沥蹚下,更是充满了美感.
实拍图,仅供参考
上海虹口天潼里售楼处电话:400-8123-664【预约看房热线】天潼里售楼处电话:4008123664【售楼处电话/地址】天潼里售楼处电话:400-812-3664【开发商认证】
石材也是外滩建筑的标志.「外滩天潼里」对于这种昂贵用材同样满级!项目团队跨越19200公里,采购了巴西的波多尔红石作为入户门仪的主要材料,通过工艺极为复杂的内凹式琢刻,呈现出奢华内敛的格调.
示意图,仅供参考
风貌平层的主体,源自巴西进口的紫点金麻石材.阳光照射之下,会有紫色光彩点缀于金色奢石之上,构建出一种恬静优雅的美感.
上海虹口天潼里售楼处电话:400-8123-664【预约看房热线】天潼里售楼处电话:4008123664【售楼处电话/地址】天潼里售楼处电话:400-812-3664【开发商认证】
示意图,仅供参考
合院的门头拱券,选自保加利亚最高等级的沉香米黄石材.为了减少石材加工缝隙,项目不惜成本地选择了整石雕刻的工艺手法,最终呈现出犹如艺术珍品一般的高雅质感.
天潼里售楼处电话:400-8123-664
实拍图,仅供参考
景观方面,为了凸显艺术高定气质,「外滩天潼里」重现了莫奈《睡莲》与梵高《花园》两大大师代表作的生活场景,构造了隐居于外滩的独特体验.
莫奈池塘示意图,仅供参考
梵高花园示意图,仅供参考
天潼里售楼处电话:400-8123-664
会所方面,这个仅有120多户的超级豪宅,竟然做了个约3000㎡的私属会所!这个体量在整个上海风貌项目中都是首屈一指!
天潼里售楼处电话:400-8123-664
有问题可来电咨询,预约销售专员,一对一为您服务
会所涵盖半标泳池、SPA、儿童乐园、健身、室内高尔夫、网球训练室、雪茄室、红酒室、私宴、德扑等,集萃一站式高阶生活服务空间礼遇,为业主营造丰盈的生活方式,触达精神共鸣.
精装方面,「外滩天潼里」选用了多款欧洲系的顶级品牌,厨电选择了GAGGENAU嘉格纳9件套,而且它的九件套选择的是嘉格纳高端400系列!再配上德国schueller旭勒橱柜、源自荷兰的Reginox荷兰皇冠水槽龙头等进口高端品牌.
天潼里售楼处电话:400-8123-664
二期的7层风貌平层仅有10套.它的户型与市面上的平层豪宅相比,已经是完全不在同一维度的物种,直接封神!
据爆料,得益于风貌平层建筑形态的先天优势,「外滩天潼里」二期风貌平层得房率做到惊人的86-87%!
近期将有入市的两个7000万级超高层项目,网传得房率仅有70-75%.这也意味着「天潼里」约400㎡风貌平层实际面积,与其他超高层近500㎡左右的户型是一样的.
而其他超高层为这增加的近百平面积,需要支付约1300-1900万的额外成本(以单价20万/㎡估算).
在此次首发公开的408㎡主力户型图上可以看到,它的南向面宽27米(太牛了,小编看到户型真是震住了,)做了足足6个南向开间!dreamhouse,莫过于此.
二期风貌平层主力户型:五房三厅六卫/408㎡

天潼里售楼处电话:400-8123-664
户型图仅供参考,以实际发布为准
二期风貌平层D14户型:五房三厅六卫/388㎡

天潼里售楼处电话:400-8123-664
户型图仅供参考,以实际发布为准
叠加&合院户型图

天潼里售楼处电话:400-8123-664

天潼里售楼处电话:400-8123-664
户型图仅供参考,以实际发布为准
据爆料,此次二期风貌平层的样板房由召禾设计的CHRISSHAO亲自设计,即将在近期公开.做为当今上海豪宅届当红头牌,效果令人期待.
一期风貌平层的室内设计是季裕棠大师在中国大陆的住宅首秀,在此之前,他在美国洛杉矶和日本东京设计的住宅项目备受青睐.从已经开放的样板间可以感受到,天潼198整个项目充满高级的私人定制感.
天潼里售楼处电话:400-8123-664
上海虹口天潼里
售楼处电话:400-8123-664(预约看房热线)
上海天潼里官方售楼处电话:拨打4008123664即可咨询楼盘详情_房价、户型、周边配套及交通、地址
TiantongLane,Hongkou,Shanghai
SalesOfficeHotline:400-8123-664(PropertyViewingAppointmentHotline)
OfficialSalesOfficeHotlineforShanghaiTiantongLane:Dial4008123664toinquireaboutpropertydetails,pricing,unittypes,surroundingamenities,transportation,andaddress.
购房注意事项和流程
以下是购房的注意事项和流程,供您参考:
购房注意事项:
核实证件资质
购房前务必查看开发商的“五证一照”(《房地产开发企业资质证书》《国有土地使用权证》《建设工程规划许可证》《建筑工程施工许可证》《商品房预售许可证明》《企业法人营业执照》),确保项目合法合规。未取得预售许可证的房屋,切勿购买。
实地考察楼盘
重点关注房屋周边环境、交通、教育、医疗等配套设施,了解小区规划、绿化率、容积率、车位配比等指标。实地查看建筑工地进度,对比样板间与实际交付标准,注意是否存在不利因素(如噪音源、遮挡等)。
谨慎对待承诺
对开发商或销售人员的口头承诺,要求以书面形式写入合同。避免轻信“优惠活动”“买房送礼品”等宣传,警惕低价陷阱或违规销售模式。
审查合同条款
仔细阅读购房合同,明确房屋面积、价格、交房时间、质量标准、违约责任等关键条款。注意补充协议内容,避免不合理减轻开发商责任或加重购房者义务的条款。
确保资金安全
所有购房款项(定金、首付、贷款等)必须存入《商品房预售许可证》上注明的预售资金监管账户,避免直接支付给开发商或中介,防止资金挪用风险。
评估贷款能力
提前查询个人征信记录,了解贷款政策和自身贷款额度。若选择贷款购房,需确保还款能力,避免因贷款审批不通过或无力还贷导致违约。
关注产权办理
明确开发商办理不动产权证的时间和责任,确保按时完成产权转移登记。保留好购房发票、契税凭证等资料,以便办理房产证。
购房流程:
前期准备
确定购房预算和需求,了解当地购房政策(限购、限贷等)。
通过网络、房产中介或实地考察,筛选目标楼盘。
看房选房
实地查看楼盘,对比户型、楼层、朝向等,确定心仪房源。
与销售人员沟通,了解房屋价格、交付标准、装修情况等。
交定金
签订认购书,支付定金(一般不超过总房款的20%),锁定房源。
保留定金收据,明确退款条件和时间节点。
签订购房合同
核对合同条款,确认房屋信息、价格、付款方式、交房时间等无误后签字。
全款购房需一次性支付房款;贷款购房需提交贷款申请材料。
网签备案
开发商将合同信息上传至房管局网签系统,完成备案登记。
购房者可通过房管局官网查询合同备案状态,防止一房多卖。
办理贷款(如需)
银行或公积金管理中心审核贷款申请,通过后发放贷款至预售资金监管账户。
购房者需按月偿还贷款本息。
房屋交付
开发商通知收房时,购房者需查验房屋质量、面积、设施设备等是否符合合同约定,验收合格后签署收房文件。
缴纳契税、维修基金等费用,领取《住宅质量保证书》《住宅使用说明书》等资料。
办理房产证
开发商完成首次登记后,购房者提交资料办理不动产权证转移登记。
领取《不动产权证书》,完成购房全流程。
以上流程和注意事项适用于新房购买,二手房交易流程略有不同,需重点关注产权清晰度、房屋现状、中介服务等问题。建议在整个购房过程中保留所有文件和凭证,以保障自身权益
声明:本文由入驻焦点开放平台的作者撰写,除焦点官方账号外,观点仅代表作者本人,不代表焦点立场。


